Faisons un tour d'horizon
Référence de l’annonce : 5880JUNDEL
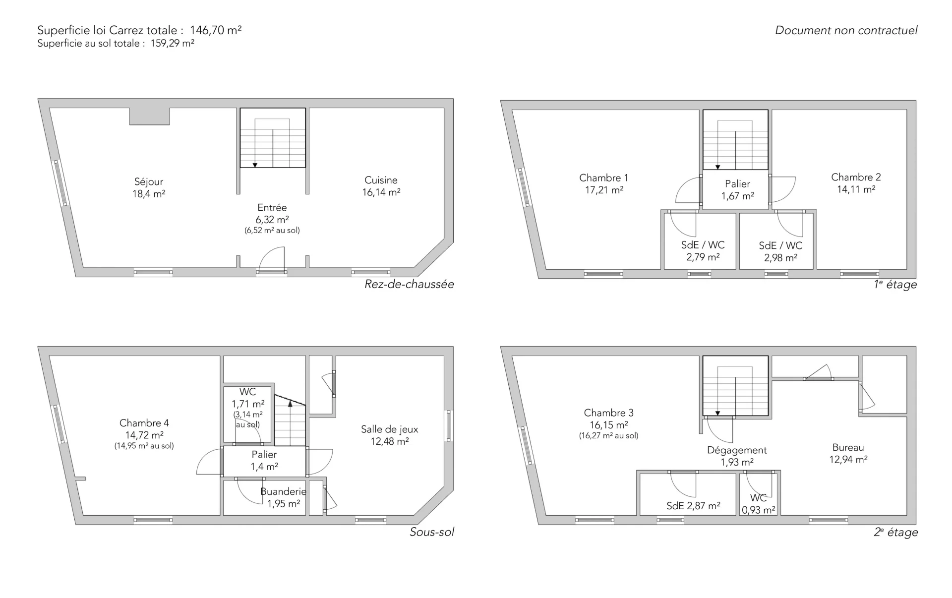
Située dans un passage privé en plein cœur des Abbesses, splendide maison entièrement rénovée d'une surface de 146.70m² loi Carrez (159,29m² habitable) et bénéficiant d'un grand jardin de près de 70m².
Ce bien comprend un espace de vie avec séjour d'un coté et d'une cuisine/salle à manger ouverte équipée de l'autre, 4 belles chambres, chacune avec sa salle de bains ou salle d'eau, un bureau (ou 5ème chambre) ainsi qu'une buanderie et une salle de jeux.
Enormément de charme, calme et emplacement de 1er choix en plein cœur des Abbesses.
- Habitable : 146,70 m² Total : 159,29 m²
- 8 pièces
- 4 chambres
- 1 salle de bains
- 2 salles de douche
Ce qui nous séduit
- Adresse très recherchée
On vous en dit plus
Réglementations & éléments financiers
Les informations sur les risques auxquels ce bien est exposé sont disponibles sur le site Géorisques : www.georisques.gouv.fr
| Diagnostics |
|---|
Consommation énergie finale : a - 230 kWh/m²/an.
Montant estimé des dépenses annuelles d’énergie pour un usage standard : entre 3 570,00 € et 4 850,00 € /an (abonnement compris).
Prix moyen des énergies indexées au 01/01/2023.
| Éléments financiers |
|---|
Taxe foncière : 2 148,00 € /an
Détails de l’intérieur & de l’extérieur
| Pièce | Surface | Détail |
|---|---|---|
| 1x Buanderie | 1.95 m² |
Étage : Sous-sol Revêtement : Parquet |
| 1x Palier | 1.4 m² |
Étage : Sous-sol Revêtement : Parquet |
| 1x Salle de jeux | 12.48 m² |
Étage : Sous-sol Revêtement : Parquet |
| 1x Toilettes | 1.71 m² |
Étage : Sous-sol Revêtement : Carrelage |
| 1x Chambre | 14.72 m² |
Étage : Sous-sol Revêtement : Parquet |
| 1x Entrée | 6.32 m² |
Étage : Rez-de-chaussée Revêtement : Parquet |
| 1x Séjour | 18.4 m² |
Étage : Rez-de-chaussée Revêtement : Parquet |
| 1x Cuisine | 16.14 m² |
Étage : Rez-de-chaussée Revêtement : Parquet |
| 1x Palier | 1.67 m² |
Étage : 1er Revêtement : Parquet |
| 1x Chambre | 17.21 m² |
Étage : 1er Revêtement : Parquet |
| 1x Chambre | 14.11 m² |
Étage : 1er Revêtement : Parquet |
| 1x Salle de douche / toilettes | 2.79 m² |
Étage : 1er Revêtement : Carrelage |
| 1x Salle de bains / toilettes | 2.98 m² |
Étage : 1er Revêtement : Carrelage |
| 1x Chambre | 16.15 m² |
Étage : 2ème Revêtement : Parquet |
| 1x Bureau | 12.94 m² |
Étage : 2ème Revêtement : Parquet |
| 1x Toilettes | 0.93 m² |
Étage : 2ème Revêtement : Carrelage |
| 1x Salle de douche | 2.87 m² |
Étage : 2ème Revêtement : Carrelage |
| 1x Dégagement | 1.93 m² |
Étage : 2ème Revêtement : Parquet |
Bâtiment & Copropriété
| Copropriété |
|---|
30 lots d'habitation
Procédure en cours : Non
Rencontrez votre agence
Simulateur de financement
Calculez le montant des mensualités de votre prêt immobilier correspondant à l'emprunt que vous souhaitez effectuer.
Prix du bien HAI
2 750 000 €
€
par mois
Vous devez vendre pour acheter ?
Nos consultants immobiliers se tiennent à votre disposition pour réaliser une estimation de la valeur de votre bien. Toutes nos estimations sont offertes.
Je fais estimer mon bienUn lieu de vie à votre image
Junot vous fait visiter les quartiers dans lesquels nos agences vous accueillent, et vous présente les spécificités et bonnes adresses.
Parcourir les quartiers











