Faisons un tour d'horizon
Référence de l’annonce : 3625BRECHA
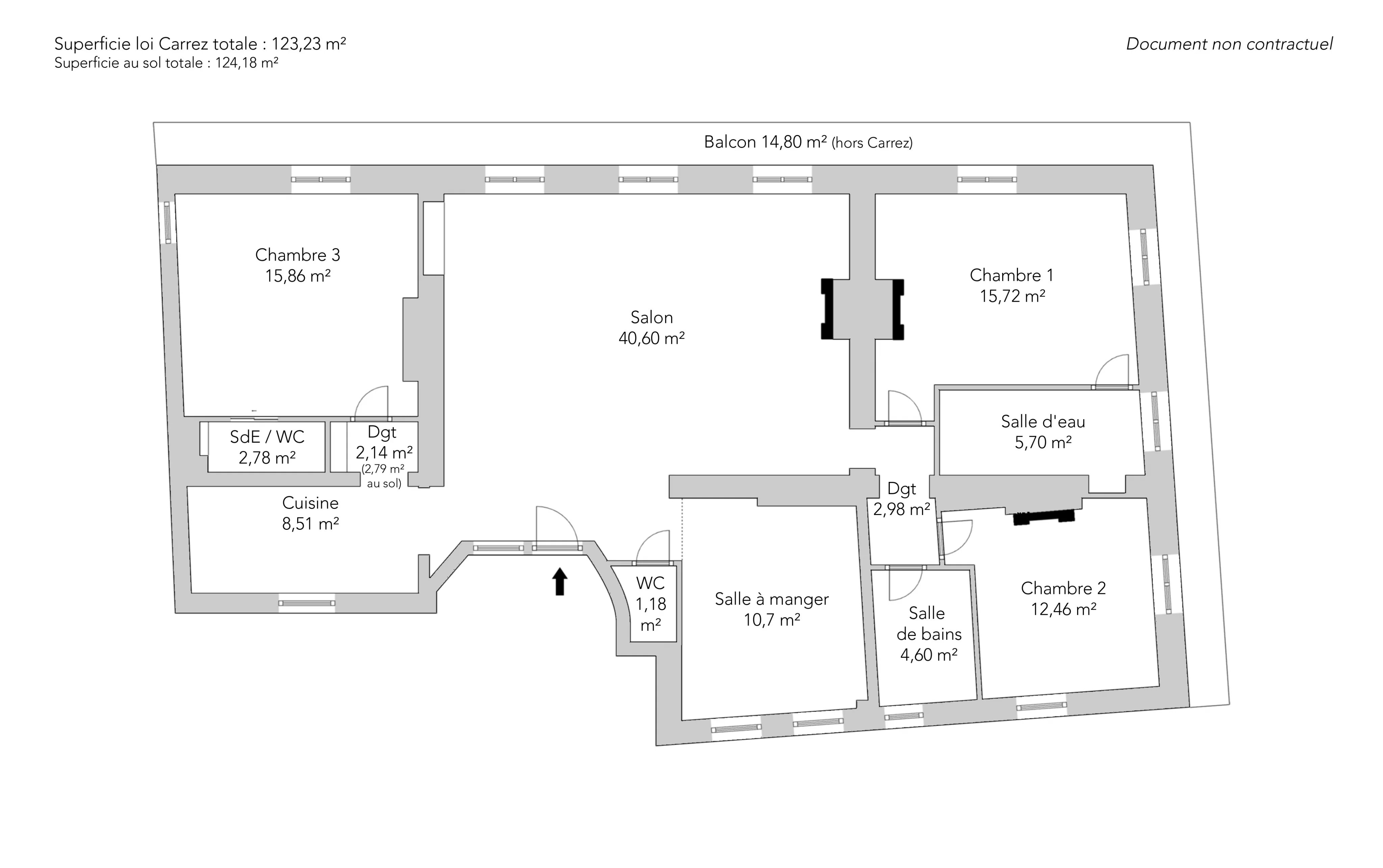
Idéalement situé rue Chaptal, au sein d'un immeuble entièrement rénové, au quatrième étage par ascenseur (seul à l'étage), un appartement en parfait état d'une surface de 123,23m² loi Carrez. Son plan sans perte d'espace se compose d'un vaste séjour ouvrant sur un balcon filant ainsi qu'une vue dégagée sur le Sacré Coeur, d'une salle à manger attenante, d'une cuisine séparée, de trois chambres chacune en-suite, et de trois toilettes au total. Vous serez séduits par son emplacement recherché, sa belle clarté ainsi que son charme. Sectorisation Condorcet. Appartement climatisable.
- Habitable : 123,23 m² Total : 124,18 m²
- 5 pièces
- 3 chambres
- 2 salles de douche
- Étage 4/5
- Cheminée
- Exposition Est, Nord
- Excellent état
Ce qui nous séduit
- Balcon/Terrasse
- Adresse très recherchée
- Gardien
- Lumineux
- Calme
- Traversant
- Ascenseur
- Cave
- Vue dégagée
On vous en dit plus
Réglementations & éléments financiers
Les informations sur les risques auxquels ce bien est exposé sont disponibles sur le site Géorisques : www.georisques.gouv.fr
| Diagnostics |
|---|
Consommation énergie finale : a - 185 kWh/m²/an.
Montant estimé des dépenses annuelles d’énergie pour un usage standard : entre 2 230,00 € et 3 040,00 € /an (abonnement compris).
Prix moyen des énergies indexées au 01/01/2021.
| Éléments financiers |
|---|
Taxe foncière : 3 610,00 € /an
Détails de l’intérieur & de l’extérieur
| Pièce | Surface | Détail |
|---|---|---|
| 1x Cave | ||
| 1x Chambre | 15.72 m² |
Étage : 4ème Revêtement : Parquet |
| 1x Balcon | 14.8 m² | Étage : 4ème |
| 1x Séjour | 40.6 m² |
Étage : 4ème Exposition : Nord Revêtement : Parquet Plafond : 2.7m |
| 1x Cuisine | 8.51 m² |
Étage : 4ème Revêtement : Carrelage Plafond : 2.7m |
| 1x Dégagement | 2.14 m² | Étage : 4ème |
| 1x Salle à manger | 10.7 m² |
Étage : 4ème Revêtement : Parquet |
| 1x Salle de douche / toilettes | 2.78 m² |
Étage : 4ème Revêtement : Carrelage |
| 1x Chambre | 12.46 m² |
Étage : 4ème Revêtement : Parquet |
| 1x Toilettes | 1.18 m² |
Étage : 4ème Revêtement : Carrelage |
| 1x Dégagement | 2.98 m² |
Étage : 4ème Revêtement : Parquet |
| 1x Chambre | 15.86 m² |
Étage : 4ème Revêtement : Parquet |
| 1x Salle de douche | 5.7 m² |
Étage : 4ème Revêtement : Carrelage |
Prestations
Bâtiment & Copropriété
| Bâtiment |
|---|
-
Construit en : 1800
-
Nombre d'étages : 5
| Copropriété |
|---|
27 lots d'habitation
Montant moyen annuel de la quote part de charges courantes : 4 920 €
Procédure en cours : Non
Rencontrez votre agence
Simulateur de financement
Calculez le montant des mensualités de votre prêt immobilier correspondant à l'emprunt que vous souhaitez effectuer.
Prix du bien HAI
2 195 000 €
€
par mois
Vous devez vendre pour acheter ?
Nos consultants immobiliers se tiennent à votre disposition pour réaliser une estimation de la valeur de votre bien. Toutes nos estimations sont offertes.
Je fais estimer mon bienUn lieu de vie à votre image
Junot vous fait visiter les quartiers dans lesquels nos agences vous accueillent, et vous présente les spécificités et bonnes adresses.
Parcourir les quartiers











