Faisons un tour d'horizon
Référence de l’annonce : 5913JUNBEA
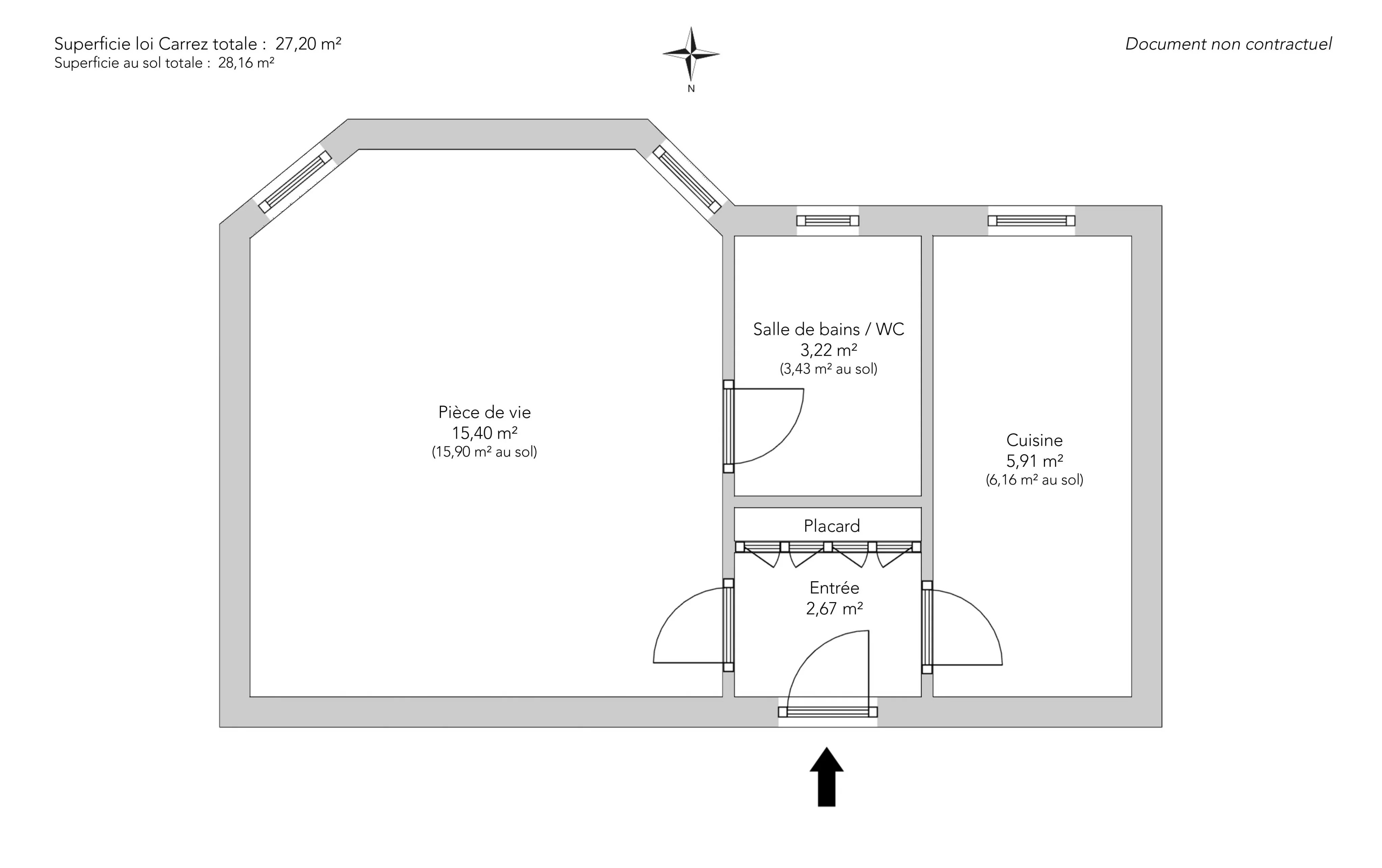
Rue Cortot. Au sein d'une des plus jolies rues montmartroises, superbe studio de 27,20m² loi Carrez et 28,16m² au sol situé au premier étage par ascenseur d'un immeuble des années 30 bien tenu.
Le plan optimisé, sans perte de place, comporte une entrée, une pièce de vie, une cuisine indépendante et une spacieuse salle de bains avec toilettes. Cet appartement bénéficie d’un environnement charmant au calme absolu.
Une cave complète cette offre.
EXCLUSIVITÉ.
- Habitable : 27,20 m² Total : 28,16 m²
- 1 pièce
- 1 chambre
- 1 salle de bains
- Étage 1/7
- Exposition Sud
- Excellent état
Ce qui nous séduit
- Adresse très recherchée
- Calme
- Ascenseur
- Cave
On vous en dit plus
Réglementations & éléments financiers
Les informations sur les risques auxquels ce bien est exposé sont disponibles sur le site Géorisques : www.georisques.gouv.fr
| Diagnostics |
|---|
Consommation énergie finale : a - 181 kWh/m²/an.
Montant estimé des dépenses annuelles d’énergie pour un usage standard : entre 570,00 € et 830,00 € /an (abonnement compris).
Prix moyen des énergies indexées au 01/01/2023.
| Éléments financiers |
|---|
Taxe foncière : 735,00 € /an
Détails de l’intérieur & de l’extérieur
| Pièce | Surface | Détail |
|---|---|---|
| 1x Cave | ||
| 1x Entrée | 2.67 m² | Étage : 1er |
| 1x Chambre | 15.4 m² | Étage : 1er |
| 1x Salle de bains / toilettes | 3.22 m² | Étage : 1er |
| 1x Cuisine | 5.91 m² | Étage : 1er |
Prestations
Bâtiment & Copropriété
| Bâtiment |
|---|
-
Construit en : 1925
-
Type : Pierre
-
Nombre d'étages : 7
| Copropriété |
|---|
75 lots d'habitation
Montant moyen annuel de la quote part de charges courantes : 1 588 €
Procédure en cours : Non
Rencontrez votre agence
Simulateur de financement
Calculez le montant des mensualités de votre prêt immobilier correspondant à l'emprunt que vous souhaitez effectuer.
Prix du bien HAI
325 000 €
€
par mois
Vous devez vendre pour acheter ?
Nos consultants immobiliers se tiennent à votre disposition pour réaliser une estimation de la valeur de votre bien. Toutes nos estimations sont offertes.
Je fais estimer mon bienUn lieu de vie à votre image
Junot vous fait visiter les quartiers dans lesquels nos agences vous accueillent, et vous présente les spécificités et bonnes adresses.
Parcourir les quartiers











