Let's take an overview
Ad reference : 856JFPFRA
A few steps from the Luxembourg garden.
Remarkable location in a quiet courtyard. Apartement like a private home. On the first floor by a private staircase of a beautiful 19th-century building with concierge.
Enter through a bright iving room, a kitchen with pantry, a bedroom and a shower room with toilet.
- Habitable : 507,73 Sq Ft Total : 531,95 Sq Ft
- 6 rooms
- 1 bedroom
- 1 shower room
- Floor 1/6
- Fireplace
- Orientation South
- Excellent condition
What seduced us
- Highly sought-after address
- Guardian
- Luminous
- Calm
- Elevator
We say more
Regulations & financial information
Information on the risks to which this property is exposed is available on the Géorisques website. : www.georisques.gouv.fr
| Diagnostics |
|---|
| Financial elements |
|---|
Interior & exterior details
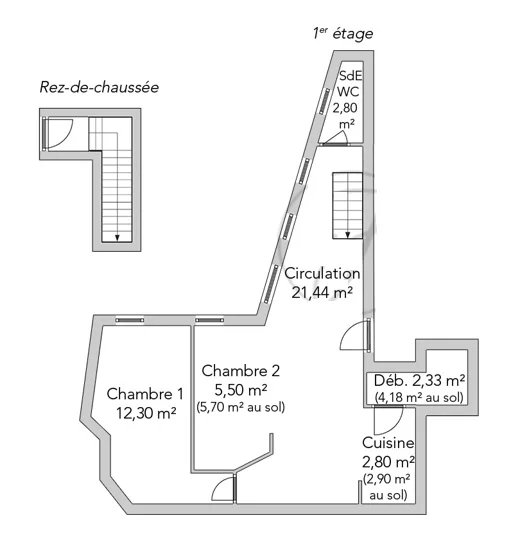
| Room | Surface | Detail |
|---|---|---|
| 1x Clearance | 230.78 Sq Ft | Floor : 1st |
| 1x Bedroom | 132.4 Sq Ft | Floor : 1st |
| 1x Room | 59.2 Sq Ft | Floor : 1st |
| 1x Kitchen | 30.14 Sq Ft | Floor : 1st |
| 1x Clearance | 25.08 Sq Ft | Floor : 1st |
| 1x Shower room/toilet | 30.14 Sq Ft | Floor : 1st |
Services
Building & Co-ownership
| Building |
|---|
-
Built in : 1859
-
Number of floors : 6
-
Quality level : Normal
| Co-ownership |
|---|
20 housing lots
Procedure in progress : Non
Meet your agency
Simulator financing
Calculate the amount of the monthly payments on your home loan corresponding to the loan you wish to make.
FAI property price
675 000 €
€
per month
Do you have to sell to buy?
Our real estate consultants are at your disposal to estimate the value of your property. All our estimates are free of charge.
Estimate my propertyA living space to suit you
Junot takes you on a tour of the neighborhoods in which our agencies welcome you, and presents the specific features and good addresses.
Explore the neighborhoods













