Let's take an overview
Ad reference : 3320BRECOU
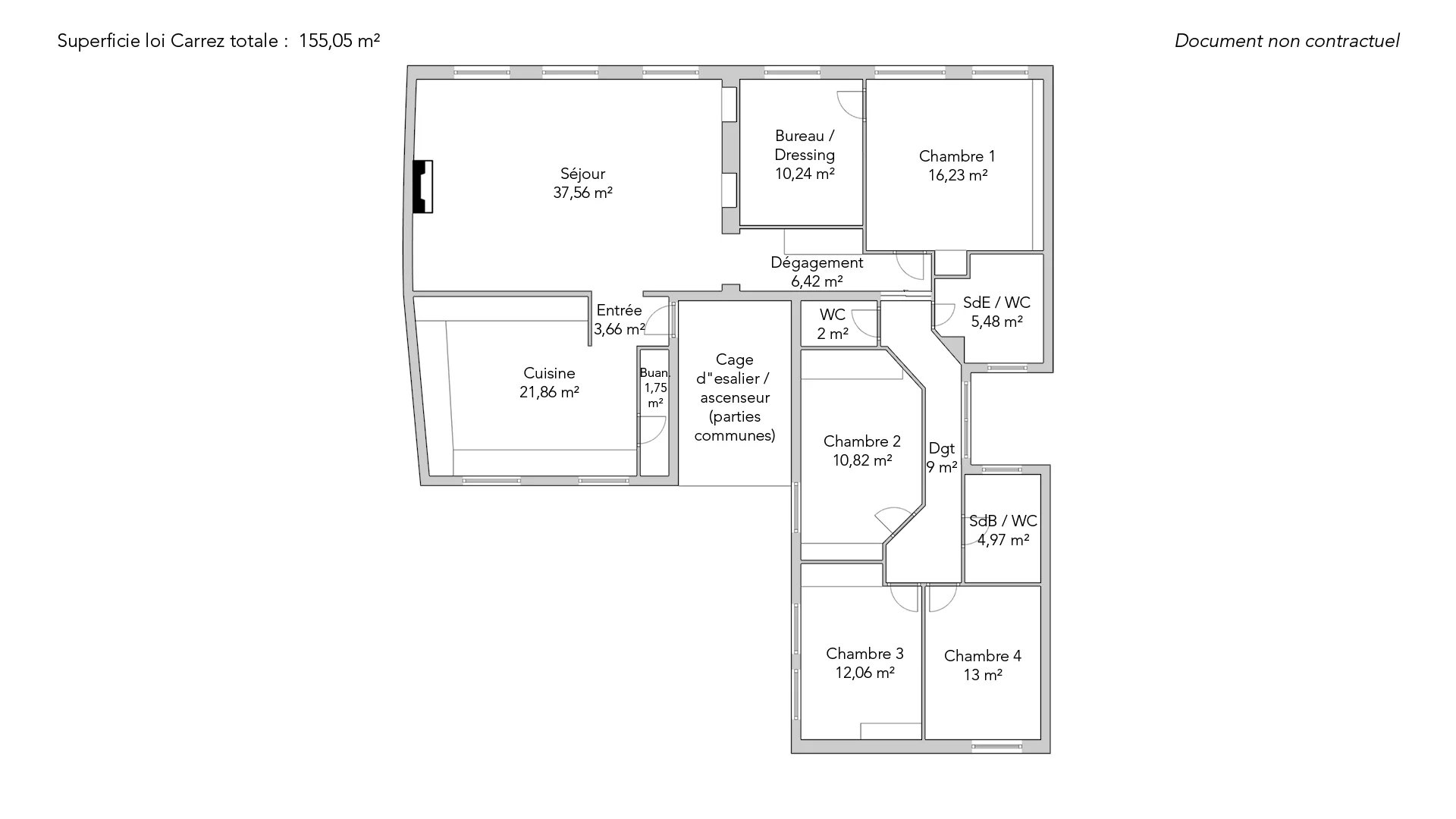
Very well located, on the edge of the Marais district, in a beautiful Haussmanian building with well-maintained common areas, on the third floor with elevator, a very attractive family apartment renovated to a very high standard. It comprises a large east-facing living room opening onto a balcony, a large fitted and equipped kitchen/dining room, an en suite bedroom with dressing room/office (additional bedroom possible) and bathroom, three other bedrooms with bathroom and toilet in a quiet courtyard location, a laundry room and separate toilet. You'll be seduced by the quality of its features, its compact floor plan and its suitability for large families in a sought-after address. A cellar completes this offer.
- Habitable : 1 668,94 Sq Ft
- 5 rooms
- 4 bedrooms
- 1 bathroom
- 1 shower room
- Floor 2/6
- Orientation East
- Excellent condition
What seduced us
- Balcony/Terrace
- Highly sought-after address
- Calm
- Crossing
- Elevator
We say more
Regulations & financial information
Information on the risks to which this property is exposed is available on the Géorisques website. : www.georisques.gouv.fr
| Diagnostics |
|---|
Final energy consumption : D - 222 kWh/m²/an.
Estimated annual energy costs for standard use: between 3 050,00 € and 4 160,00 € /year (including subscription).
Average energy price indexed to 01/01/2021.
| Financial elements |
|---|
Property tax : 2 678,00 € /an
Interior & exterior details
| Room | Surface | Detail |
|---|---|---|
| 1x Entrance | 39.4 Sq Ft | Floor : 2nd |
| 1x Kitchen | 235.3 Sq Ft | Floor : 2nd |
| 1x Laundry room | 18.84 Sq Ft | Floor : 2nd |
| 1x Stay | 404.29 Sq Ft | Floor : 2nd |
| 1x Clearance | 69.1 Sq Ft | Floor : 2nd |
| 1x Bedroom | 174.7 Sq Ft | Floor : 2nd |
| 1x Dressing room | 110.22 Sq Ft | Floor : 2nd |
| 1x Bathroom | 58.99 Sq Ft | Floor : 2nd |
| 1x Clearance | 96.88 Sq Ft | Floor : 2nd |
| 1x Bathroom | 53.5 Sq Ft | Floor : 2nd |
| 1x Bedroom | 116.47 Sq Ft | Floor : 2nd |
| 1x Bedroom | 129.81 Sq Ft | Floor : 2nd |
| 1x Bedroom | 139.93 Sq Ft | Floor : 2nd |
| 1x Bathroom | 21.53 Sq Ft | Floor : 2nd |
| 1x Balcony | 91.49 Sq Ft | Floor : 2nd |
Services
Building & Co-ownership
| Building |
|---|
-
Built in : 1876
-
Number of floors : 6
| Co-ownership |
|---|
110 housing lots
Average annual amount of the share of current charges : 2 920 €
Procedure in progress : Non
Meet your agency
Simulator financing
Calculate the amount of the monthly payments on your home loan corresponding to the loan you wish to make.
FAI property price
1 890 000 €
€
per month
Do you have to sell to buy?
Our real estate consultants are at your disposal to estimate the value of your property. All our estimates are free of charge.
Estimate my propertyA living space to suit you
Junot takes you on a tour of the neighborhoods in which our agencies welcome you, and presents the specific features and good addresses.
Explore the neighborhoods











