Let's take an overview
Ad reference : 3332GREBOL
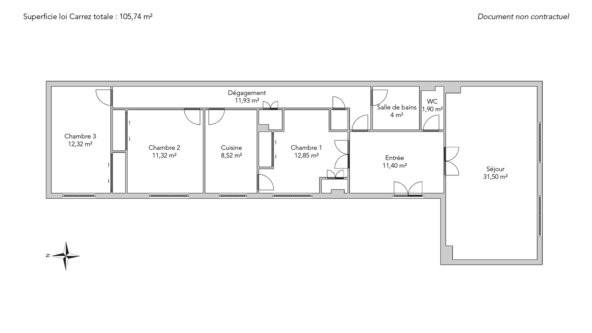
This dual-aspect apartment measuring 105.74sqm Carrez law and 106.19sqm (floor space) is located on the third floor with lift access in a beautiful 1956 condominium.
Facing south, this property in need of refurbishment comprises an entrance hall, a bright double living room, three bedrooms facing west over the courtyard, a separate kitchen, a bathroom and separate toilets.
Its flexible layout allows for the creation of a fourth bedroom with a kitchen opening onto the living room, a second shower room or additional toilets.
Ideally located in a sought-after neighbourhood, a stone's throw from La Rochefoucauld school, Rue Saint-Dominique and the banks of the Seine, this property offers an ideal living environment for a family.
Liberal professions are permitted.
A cellar completes this property.
- Habitable : 1 138,17 Sq Ft Total : 1 143,02 Sq Ft
- 5 rooms
- 4 bedrooms
- 1 bathroom
- Floor 3/8
- Orientation South
- To renovate
What seduced us
- Crossing
- Elevator
- Cellar
We say more
Regulations & financial information
Information on the risks to which this property is exposed is available on the Géorisques website. : www.georisques.gouv.fr
| Diagnostics |
|---|
Final energy consumption : D - 229 kWh/m²/an.
Estimated annual energy costs for standard use: between 1 618,00 € and 2 188,00 € /year (including subscription).
Average energy price indexed to 01/01/2021.
| Financial elements |
|---|
Property tax : 2 329,00 € /an
Interior & exterior details
| Room | Surface | Detail |
|---|---|---|
| 1x Bedroom | ||
| 1x Cellar | 38.21 Sq Ft | Floor : Basement |
| 1x Entrance | 122.71 Sq Ft | Floor : 3rd |
| 1x Double reception | 339.06 Sq Ft | Floor : 3rd |
| 1x Kitchen | 91.71 Sq Ft | Floor : 3rd |
| 1x Bedroom | 138.32 Sq Ft | Floor : 3rd |
| 1x Bedroom | 121.85 Sq Ft | Floor : 3rd |
| 1x Bedroom | 132.61 Sq Ft | Floor : 3rd |
| 1x Bathroom | 43.06 Sq Ft | Floor : 3rd |
| 1x Bathroom | 20.45 Sq Ft | Floor : 3rd |
| 1x Clearance | 128.41 Sq Ft | Floor : 3rd |
Services
Building & Co-ownership
| Building |
|---|
-
Built in : 1959
-
Type : Concrete
-
Number of floors : 8
| Co-ownership |
|---|
52 housing lots
Average annual amount of the share of current charges : 2 760 €
Procedure in progress : Non
Meet your agency
Simulator financing
Calculate the amount of the monthly payments on your home loan corresponding to the loan you wish to make.
FAI property price
1 390 000 €
€
per month
Do you have to sell to buy?
Our real estate consultants are at your disposal to estimate the value of your property. All our estimates are free of charge.
Estimate my propertyA living space to suit you
Junot takes you on a tour of the neighborhoods in which our agencies welcome you, and presents the specific features and good addresses.
Explore the neighborhoods












