Faisons un tour d'horizon
Référence de l’annonce : 3332GREBOL
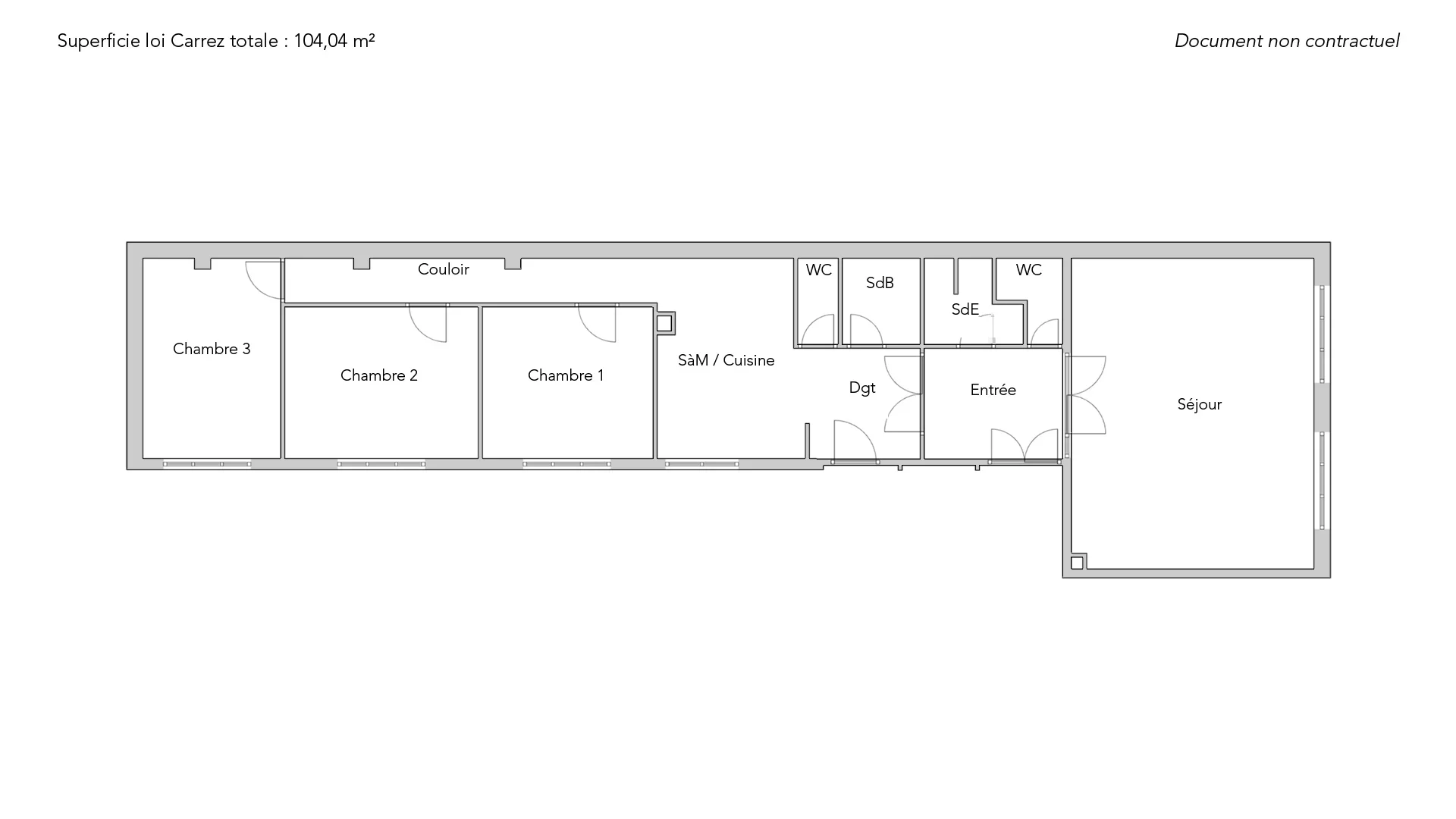
Cet appartement traversant de 105,74m² loi Carrez et 106,19m² au sol se situe au troisième étage avec ascenseur d’une belle copropriété de 1956.
Exposé plein sud, ce bien à rafraîchir comprend une entrée, un double séjour lumineux, trois chambres sur cour exposées à l’ouest, une cuisine indépendante, une salle de bains et des toilettes séparées.
Son plan modulable permet la création d'une quatrième chambre avec une cuisine ouverte sur le séjour, d’une deuxième salle de douche ou de toilettes supplémentaires.
Idéalement situé dans un quartier recherché, à deux pas de l’école La Rochefoucauld, de la rue Saint-Dominique et des quais de Seine, ce bien offre un cadre de vie idéal pour une famille.
La profession libérale est autorisée.
Une cave complète ce bien.
- Habitable : 105,74 m² Total : 106,19 m²
- 5 pièces
- 4 chambres
- 1 salle de bains
- Étage 3/8
- Exposition Sud
- À rénover
Ce qui nous séduit
- Traversant
- Ascenseur
- Cave
On vous en dit plus
Réglementations & éléments financiers
Les informations sur les risques auxquels ce bien est exposé sont disponibles sur le site Géorisques : www.georisques.gouv.fr
| Diagnostics |
|---|
Consommation énergie finale : D - 229 kWh/m²/an.
Montant estimé des dépenses annuelles d’énergie pour un usage standard : entre 1 618,00 € et 2 188,00 € /an (abonnement compris).
Prix moyen des énergies indexées au 01/01/2021.
| Éléments financiers |
|---|
Taxe foncière : 2 329,00 € /an
Détails de l’intérieur & de l’extérieur
| Pièce | Surface | Détail |
|---|---|---|
| 1x Chambre | ||
| 1x Cave | 3.55 m² | Étage : Sous-sol |
| 1x Entrée | 11.4 m² | Étage : 3ème |
| 1x Double réception | 31.5 m² | Étage : 3ème |
| 1x Cuisine | 8.52 m² | Étage : 3ème |
| 1x Chambre | 12.85 m² | Étage : 3ème |
| 1x Chambre | 11.32 m² | Étage : 3ème |
| 1x Chambre | 12.32 m² | Étage : 3ème |
| 1x Salle de bains | 4 m² | Étage : 3ème |
| 1x Toilettes | 1.9 m² | Étage : 3ème |
| 1x Dégagement | 11.93 m² | Étage : 3ème |
Prestations
Bâtiment & Copropriété
| Bâtiment |
|---|
-
Construit en : 1959
-
Type : Béton
-
Nombre d'étages : 8
| Copropriété |
|---|
52 lots d'habitation
Montant moyen annuel de la quote part de charges courantes : 2 760 €
Procédure en cours : Non
Rencontrez votre agence
Simulateur de financement
Calculez le montant des mensualités de votre prêt immobilier correspondant à l'emprunt que vous souhaitez effectuer.
Prix du bien HAI
1 390 000 €
€
par mois
Vous devez vendre pour acheter ?
Nos consultants immobiliers se tiennent à votre disposition pour réaliser une estimation de la valeur de votre bien. Toutes nos estimations sont offertes.
Je fais estimer mon bienUn lieu de vie à votre image
Junot vous fait visiter les quartiers dans lesquels nos agences vous accueillent, et vous présente les spécificités et bonnes adresses.
Parcourir les quartiers












