Let's take an overview
Ad reference : 2895WAGDAH
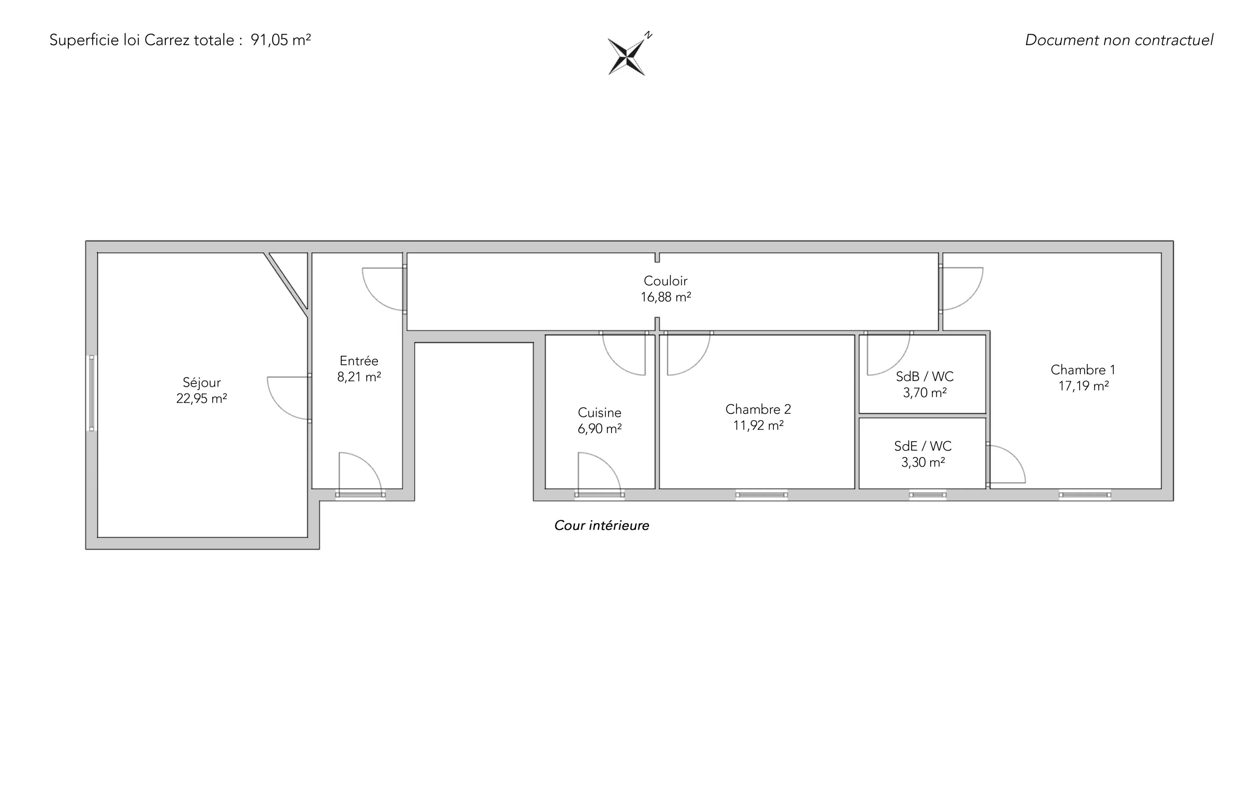
In a quiet street in the 17th arrondissement, in an old, guarded and very well-maintained building, this 91.05sqm Carrez apartment is located on the first floor.
The layout is fluid, with a space-saving plan: the entrance opens onto a pleasant southwest-facing living room on the street, the independent kitchen is fully equipped and opens onto a pretty inner courtyard, two courtyard-facing bedrooms ensure absolute calm, a bathroom with toilet, and a shower room adjoining the master bedroom, with toilet.
Endowed with old-world charm, the apartment combines classic character (parquet flooring, moldings, fireplace), a functional layout and absolute calm.
The coherent floor plan makes this property a warm and inviting place to live, as well as an ideal place to work.
A cellar and a 5m² storage room on the seventh floor with elevator complete this offer.
Liberal professions authorized.
- Habitable : 980,05 Sq Ft Total : 1 033,87 Sq Ft
- 3 rooms
- 2 bedrooms
- 1 bathroom
- 1 shower room
- Fireplace
- Orientation South West
- Excellent condition
What seduced us
- Guardian
- Calm
- Crossing
- Elevator
- Cellar
We say more
Regulations & financial information
Information on the risks to which this property is exposed is available on the Géorisques website. : www.georisques.gouv.fr
| Diagnostics |
|---|
Final energy consumption : a - 202 kWh/m²/an.
Estimated annual energy costs for standard use: between 1 790,00 € and 2 460,00 € /year (including subscription).
Average energy price indexed to 01/01/2023.
| Financial elements |
|---|
Property tax : 800,00 € /an
Interior & exterior details
| Room | Surface | Detail |
|---|---|---|
| 1x Cellar | Floor : Basement | |
| 1x Entrance | 88.37 Sq Ft | Floor : Ground floor |
| 1x Stay | 247.03 Sq Ft |
Floor : Ground floor Exposure : South West |
| 1x Bedroom | 185.03 Sq Ft | Floor : Ground floor |
| 1x Bedroom | 128.31 Sq Ft | Floor : Ground floor |
| 1x Bathroom/toilet | 39.83 Sq Ft | Floor : Ground floor |
| 1x Shower room/toilet | 35.52 Sq Ft | Floor : Ground floor |
| 1x Kitchen | 74.27 Sq Ft | Floor : Ground floor |
| 1x Clearance | 181.69 Sq Ft | Floor : Ground floor |
| 1x Clearance | 53.82 Sq Ft | Floor : 7th |
Services
Building & Co-ownership
| Building |
|---|
-
Built in : 1913
-
Number of floors : 7
| Co-ownership |
|---|
33 housing lots
Average annual amount of the share of current charges : 3 600 €
Procedure in progress : Non
Meet your agency
Simulator financing
Calculate the amount of the monthly payments on your home loan corresponding to the loan you wish to make.
FAI property price
899 000 €
€
per month
Do you have to sell to buy?
Our real estate consultants are at your disposal to estimate the value of your property. All our estimates are free of charge.
Estimate my propertyA living space to suit you
Junot takes you on a tour of the neighborhoods in which our agencies welcome you, and presents the specific features and good addresses.
Explore the neighborhoods










