Let's take an overview
Ad reference : 3496BRESAT
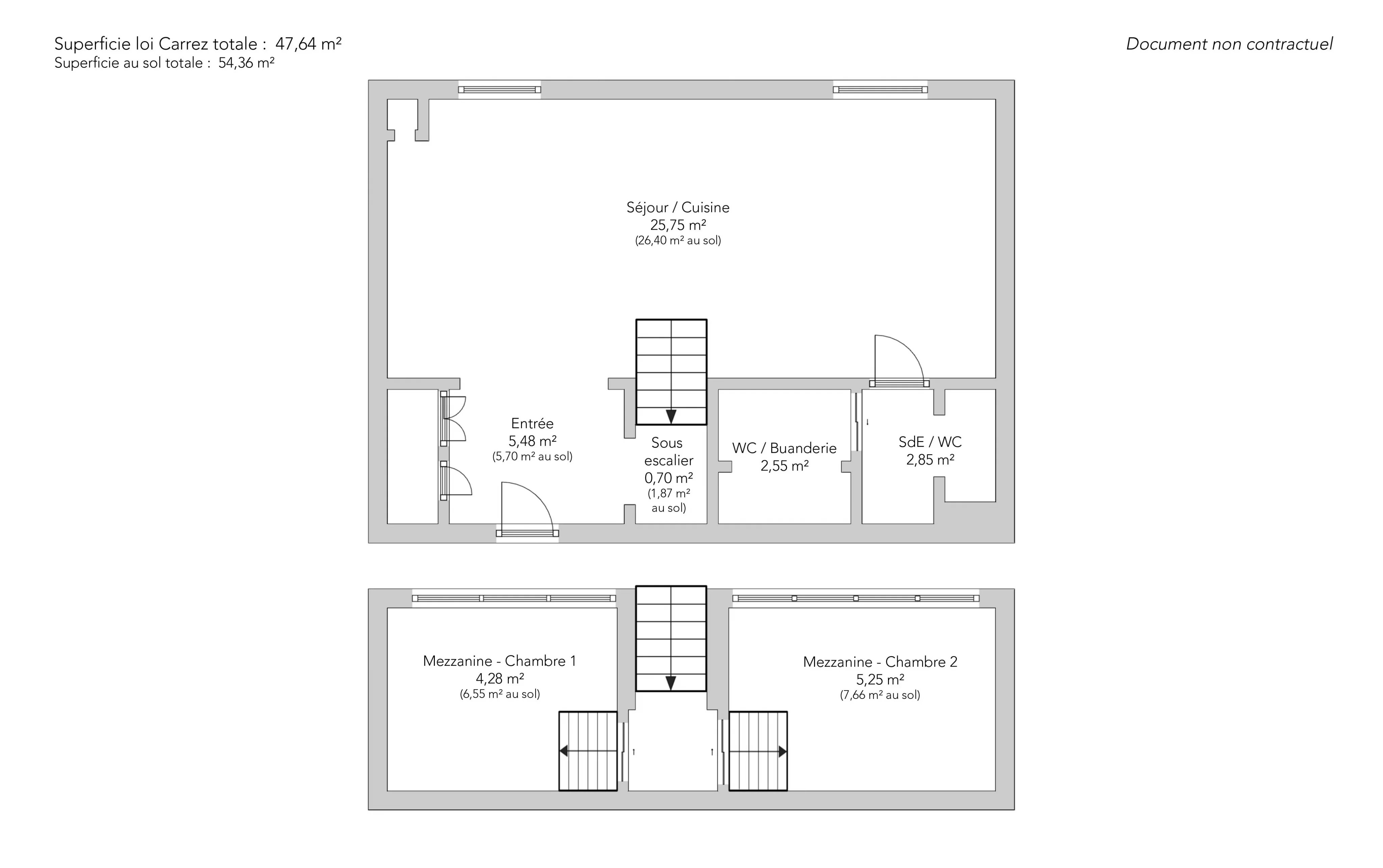
On the fifth and top floor with elevator of a renovated old building, secured with janitor, digicode, videophone, an apartment comprising a vast living room with custom-built kitchen, equipped, with high ceilings, south-facing with superb view over rooftops and monuments. Two bedrooms overlooking the living room with storage space, a shower room, laundry area and toilet. Plenty of made-to-measure storage space, entrance cupboards.
Authorized access to the building's terrace.
- Habitable : 512,79 Sq Ft Total : 585,13 Sq Ft
- 3 rooms
- 2 bedrooms
- 1 shower room
- Floor 5/5
- Orientation South
- Good condition
What seduced us
- Exceptional view
- Highly sought-after address
- Exceptional services
- Last floor
- Guardian
- Historical monument view
- Luminous
- Calm
- Elevator
We say more
Regulations & financial information
Information on the risks to which this property is exposed is available on the Géorisques website. : www.georisques.gouv.fr
| Diagnostics |
|---|
Final energy consumption : a - 72 kWh/m²/an.
Estimated annual energy costs for standard use: between 660,00 € and 950,00 € /year (including subscription).
| Financial elements |
|---|
Property tax : 1 305,00 € /an
Interior & exterior details
| Room | Surface | Detail |
|---|---|---|
| 1x Entrance | 58.99 Sq Ft | Floor : 5th |
| 1x Living room/kitchen | 277.17 Sq Ft | Floor : 5th |
| 1x Bedroom | 46.07 Sq Ft | Floor : 5th |
| 1x Bedroom | 56.51 Sq Ft | Floor : 5th |
| 1x Shower room/toilet | 30.68 Sq Ft | Floor : 5th |
| 1x Laundry room | 27.45 Sq Ft | Floor : 5th |
| 1x Landing | 8.4 Sq Ft | Floor : 5th |
| 1x Stairs | 7.53 Sq Ft | Floor : 5th |
Services
Building & Co-ownership
| Building |
|---|
-
Type : Rock
-
Number of floors : 5
| Co-ownership |
|---|
67 housing lots
Average annual amount of the share of current charges : 1 356 €
Procedure in progress : Non
Meet your agency
Simulator financing
Calculate the amount of the monthly payments on your home loan corresponding to the loan you wish to make.
FAI property price
660 000 €
€
per month
Do you have to sell to buy?
Our real estate consultants are at your disposal to estimate the value of your property. All our estimates are free of charge.
Estimate my propertyA living space to suit you
Junot takes you on a tour of the neighborhoods in which our agencies welcome you, and presents the specific features and good addresses.
Explore the neighborhoods












