Let's take an overview
Ad reference : 3462BTLGAR
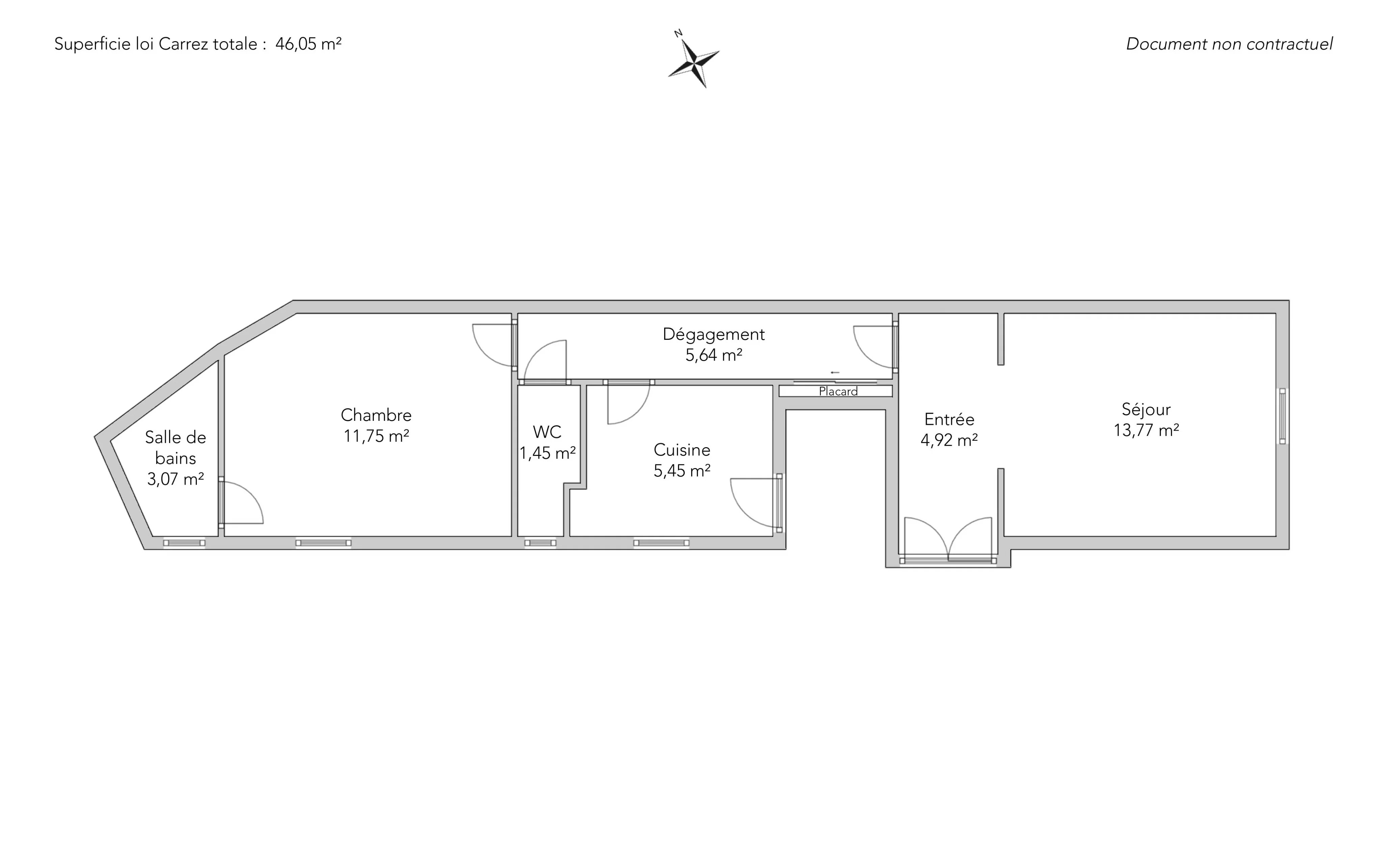
In a beautiful, well-maintained period building, discover this 46.05 sq m (Carrez Law) one-bedroom apartment offering significant potential for appreciation.
Located on the ground floor of a quality condominium, this apartment, ripe for complete renovation, boasts an optimal layout with no wasted space.
It comprises a bright living room, a quiet bedroom overlooking the courtyard, a separate kitchen (with the possibility of opening it up), a shower room, and a separate toilet.
The charm of the original features is undeniable: original parquet flooring, elegant moldings, and a fireplace lend this property a rare character, ideal for a bespoke renovation project.
- Habitable : 495,68 Sq Ft
- 2 rooms
- 1 bedroom
- 1 bathroom
- Fireplace
- To renovate
We say more
Regulations & financial information
Information on the risks to which this property is exposed is available on the Géorisques website. : www.georisques.gouv.fr
| Diagnostics |
|---|
Final energy consumption : G - 422 kWh/m²/an.
Logement à consommation énergétique excessive : classe G
Estimated annual energy costs for standard use: between 1 770,00 € and 2 450,00 € /year (including subscription).
Average energy price indexed to 01/01/2023.
| Financial elements |
|---|
Interior & exterior details
| Room | Surface | Detail |
|---|---|---|
| 1x Entrance | 52.96 Sq Ft | Floor : Ground floor |
| 1x Stay | 148.22 Sq Ft | Floor : Ground floor |
| 1x Clearance | 60.71 Sq Ft | Floor : Ground floor |
| 1x Kitchen | 58.66 Sq Ft | Floor : Ground floor |
| 1x Bedroom | 126.48 Sq Ft | Floor : Ground floor |
| 1x Bathroom | 33.05 Sq Ft | Floor : Ground floor |
| 1x Bathroom | 15.61 Sq Ft | Floor : Ground floor |
Services
Building & Co-ownership
| Building |
|---|
-
Built in : 1919
-
Number of floors : 7
-
Quality level : Normal
| Co-ownership |
|---|
Average annual amount of the share of current charges : 1 556 €
Procedure in progress : Non
Meet your agency
Simulator financing
Calculate the amount of the monthly payments on your home loan corresponding to the loan you wish to make.
FAI property price
340 000 €
€
per month
Do you have to sell to buy?
Our real estate consultants are at your disposal to estimate the value of your property. All our estimates are free of charge.
Estimate my propertyA living space to suit you
Junot takes you on a tour of the neighborhoods in which our agencies welcome you, and presents the specific features and good addresses.
Explore the neighborhoods












