Faisons un tour d'horizon
Référence de l’annonce : 3329MARGRA/
Au cœur de la rue des Martyrs et de ses commerces.
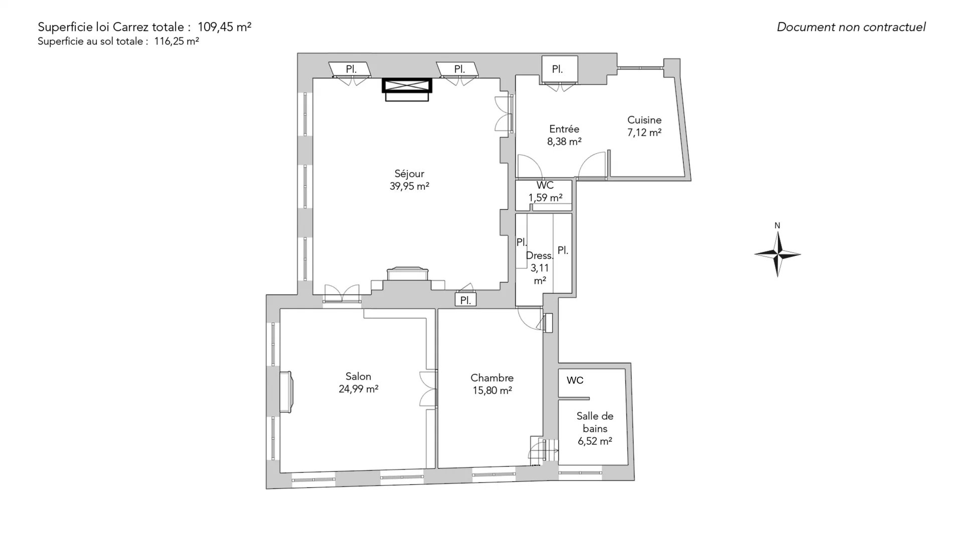
Dans une copropriété entièrement rénovée, appartement d'exception baigné de soleil de 109,84m² loi Carrez situé au premier étage par escalier.
Ce bien lumineux comprend une entrée, une cuisine ouverte intégralement équipée, un espace buanderie, un splendide double séjour à la hauteur sous plafond de 3,80 mètres, au parquet Versailles, à la vue dégagée sur jardin et exposé plein ouest, un salon, une chambre avec dressing (possibilité deuxième salle de douche), une salle de douche avec toilettes et des toilettes invités.
Ce bien saura séduire par son emplacement exceptionnel, la qualité de sa copropriété, ses volumes incroyables, son ensoleillement assuré grâce à ses expositions ouest, sud et nord, ses cheminées fonctionnelles et son charme de l'ancien préservé.
Une cave complète cette offre.
Local à vélos et poussettes.
EXCLUSIVITÉ.
- Habitable : 109,84 m² Total : 116,64 m²
- 4 pièces
- 2 chambres
- 1 salle de douche
- Étage 1/5
- Cheminée
- Exposition Nord, Ouest, Sud
- Excellent état
Ce qui nous séduit
- Vue exceptionnelle
- Adresse très recherchée
- Lumineux
- Calme
- Traversant
- Cave
- Vue dégagée
On vous en dit plus
Réglementations & éléments financiers
Les informations sur les risques auxquels ce bien est exposé sont disponibles sur le site Géorisques : www.georisques.gouv.fr
| Diagnostics |
|---|
Consommation énergie finale : D - 190 kWh/m²/an.
Montant estimé des dépenses annuelles d’énergie pour un usage standard : entre 2 010,00 € et 2 770,00 € /an (abonnement compris).
Prix moyen des énergies indexées au 01/01/2021.
| Éléments financiers |
|---|
Taxe foncière : 1 453,00 € /an
Détails de l’intérieur & de l’extérieur
| Pièce | Surface | Détail |
|---|---|---|
| 1x Cave | 6.2 m² |
Étage : Sous-sol Revêtement : Terre battue |
| 1x Cuisine | 15.71 m² |
Étage : 1er Exposition : Nord Revêtement : Pierre Plafond : 2.9m |
| 1x Séjour | 39.95 m² |
Étage : 1er Exposition : Ouest Revêtement : Parquet Plafond : 3.8m |
| 1x Chambre | 24.99 m² |
Étage : 1er Exposition : Ouest Revêtement : Parquet Plafond : 2.91m |
| 1x Chambre | 15.8 m² |
Étage : 1er Exposition : Sud Revêtement : Parquet Plafond : 2.95m |
| 1x Dressing | 4.18 m² |
Étage : 1er Revêtement : Parquet Plafond : 2.95m |
| 1x Salle de douche / toilettes | 6.52 m² |
Étage : 1er Exposition : Sud Revêtement : Béton Plafond : 2.05m |
| 1x Placard | 0.98 m² |
Étage : 1er Revêtement : Carrelage |
| 1x Toilettes | 1.71 m² |
Étage : 1er Revêtement : Carrelage Plafond : 2.9m |
Prestations
Bâtiment & Copropriété
| Bâtiment |
|---|
-
Construit en : 1900
-
Type : Pierre
-
Nombre d'étages : 5
-
Niveau de qualité : Standing
| Copropriété |
|---|
51 lots d'habitation
Montant moyen annuel de la quote part de charges courantes : 2 760 €
Procédure en cours : Non
Rencontrez votre agence
Simulateur de financement
Calculez le montant des mensualités de votre prêt immobilier correspondant à l'emprunt que vous souhaitez effectuer.
Prix du bien HAI
2 250 000 €
€
par mois
Vous devez vendre pour acheter ?
Nos consultants immobiliers se tiennent à votre disposition pour réaliser une estimation de la valeur de votre bien. Toutes nos estimations sont offertes.
Je fais estimer mon bienUn lieu de vie à votre image
Junot vous fait visiter les quartiers dans lesquels nos agences vous accueillent, et vous présente les spécificités et bonnes adresses.
Parcourir les quartiers












