Faisons un tour d'horizon
Référence de l’annonce : 3243BTLSLA
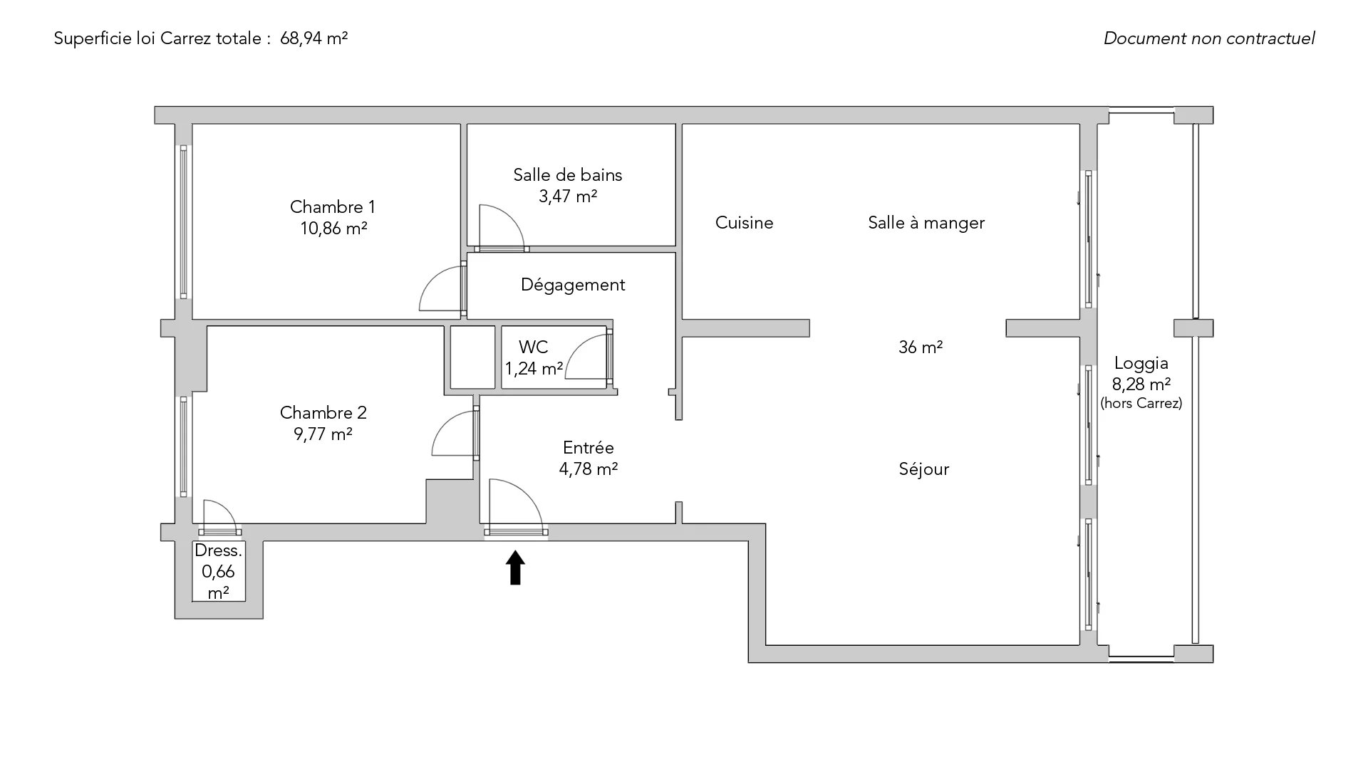
Au calme absolu, tant sur les chambres que sur le séjour, cet appartement de 69m² Carrez, a été entièrement rénové et réagencé en 2023. Son plan sans perte d'espace est agencé comme suit : Une entrée avec penderie et rangements, un espace de vie d’environ 36m² qui comprend une cuisine équipée et ouverte sur la salle à manger, un salon. L’ensemble de cet espace donne de plain-pied par de grandes baies vitrées en double vitrage et volets roulants électriques sur la loggia dinatoire de 9m² dans la verdure et sans vis-à-vis.
Deux chambres au calme surplombent le jardin de la copropriété. L’une dispose d’un petit dressing. Une salle de douche avec une vasque, faisant également office de buanderie. Une toilette séparée.
Un local à vélos et à poussettes. Une cave. Possibilité de louer un parking dans la copropriété.
- Habitable : 73,00 m² Total : 77,00 m²
- 4 pièces
- 2 chambres
- 1 salle de douche
- Étage 1/8
- Exposition Est, Ouest
- Excellent état
Ce qui nous séduit
- Gardien
- Calme
- Traversant
- Ascenseur
- Cave
- Vue dégagée
On vous en dit plus
Réglementations & éléments financiers
Les informations sur les risques auxquels ce bien est exposé sont disponibles sur le site Géorisques : www.georisques.gouv.fr
| Diagnostics |
|---|
Consommation énergie finale : G - 10384 kWh/m²/an.
Montant estimé des dépenses annuelles d’énergie pour un usage standard : entre 930,00 € et 1 310,00 € /an (abonnement compris).
Prix moyen des énergies indexées au 01/01/2021.
| Éléments financiers |
|---|
Taxe foncière : 1 600,00 € /an
Détails de l’intérieur & de l’extérieur
| Pièce | Surface | Détail |
|---|---|---|
| 1x Cave |
Étage : -2 Revêtement : Béton |
|
| 1x Entrée | 4.78 m² |
Étage : 1er Revêtement : Parquet |
| 1x Salle à manger/Cuisine | 19 m² |
Étage : 1er Exposition : Nord-ouest Revêtement : Carreau ciment |
| 1x Séjour | 16 m² |
Étage : 1er Exposition : Nord-ouest Revêtement : Parquet Plafond : 2.7m |
| 1x Chambre | 12 m² |
Étage : 1er Exposition : Est Revêtement : Parquet |
| 1x Chambre | 12 m² |
Étage : 1er Exposition : Est Revêtement : Parquet |
| 1x Salle de douche | 4 m² |
Étage : 1er Revêtement : Carreau ciment |
| 1x Toilettes | 2 m² | Étage : 1er |
| 1x Loggia |
Étage : 1er Exposition : Nord-ouest |
Prestations
Bâtiment & Copropriété
| Bâtiment |
|---|
-
Construit en : 1975
-
Type : Béton armé
-
Nombre d'étages : 8
-
Niveau de qualité : Grand ensemble
| Copropriété |
|---|
Montant moyen annuel de la quote part de charges courantes : 3 000 €
Procédure en cours : Non
Rencontrez votre agence
Simulateur de financement
Calculez le montant des mensualités de votre prêt immobilier correspondant à l'emprunt que vous souhaitez effectuer.
Prix du bien HAI
825 000 €
€
par mois
Vous devez vendre pour acheter ?
Nos consultants immobiliers se tiennent à votre disposition pour réaliser une estimation de la valeur de votre bien. Toutes nos estimations sont offertes.
Je fais estimer mon bienUn lieu de vie à votre image
Junot vous fait visiter les quartiers dans lesquels nos agences vous accueillent, et vous présente les spécificités et bonnes adresses.
Parcourir les quartiers










