Faisons un tour d'horizon
Référence de l’annonce : 1127POIBON
Dans une copropriété calme, sécurisée et parfaitement entretenue, découvrez cet appartement traversant situé au troisième étage par escalier.
Il se compose d’un séjour baigné de lumière, agrémenté d’une cuisine ouverte aménagée et équipée, idéale pour les moments de convivialité.
L’espace nuit comprend une chambre principale avec de nombreux rangements, une seconde chambre, ainsi qu’une salle de bains disposant à la fois d’une baignoire et d’une douche.
Vous serez séduits par son agencement sans perte d’espace, sa luminosité et le calme de son environnement.
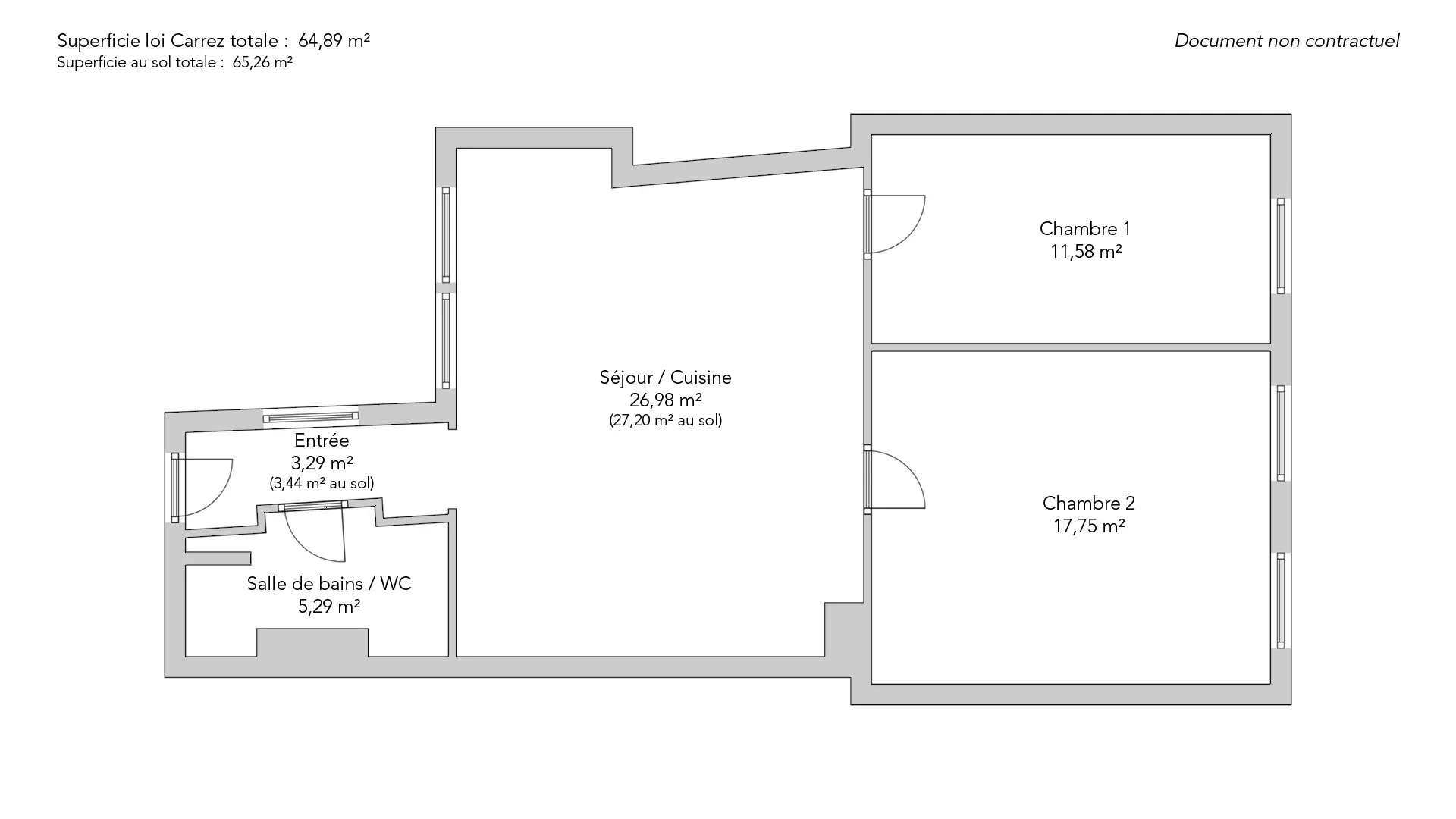
- Habitable : 64,89 m² Total : 65,63 m²
- 3 pièces
- 2 chambres
- 1 salle de bains
- Étage 3/4
- Exposition Est, Ouest
- Bon état
Ce qui nous séduit
- Lumineux
- Calme
On vous en dit plus
Réglementations & éléments financiers
Les informations sur les risques auxquels ce bien est exposé sont disponibles sur le site Géorisques : www.georisques.gouv.fr
| Diagnostics |
|---|
Consommation énergie finale : C - 122 kWh/m²/an.
Montant estimé des dépenses annuelles d’énergie pour un usage standard : entre 1 120,00 € et 1 560,00 € /an (abonnement compris).
Prix moyen des énergies indexées au 01/01/2021.
| Éléments financiers |
|---|
Taxe foncière : 964,00 € /an
Détails de l’intérieur & de l’extérieur
| Pièce | Surface | Détail |
|---|---|---|
| 1x Entrée | 3.29 m² |
Étage : 3ème Exposition : Ouest Revêtement : Parquet |
| 1x Séjour/cuisine | 26.98 m² |
Étage : 3ème Exposition : Ouest Revêtement : Parquet |
| 1x Chambre | 11.58 m² |
Étage : 3ème Exposition : Est Revêtement : Parquet |
| 1x Chambre | 17.75 m² |
Étage : 3ème Exposition : Est Revêtement : Parquet |
| 1x Salle de bains / toilettes | 5.29 m² |
Étage : 3ème Exposition : Ouest Revêtement : Parquet |
Prestations
Bâtiment & Copropriété
| Bâtiment |
|---|
-
Construit en : 1880
-
Type : Pierre
-
Nombre d'étages : 4
| Copropriété |
|---|
24 lots d'habitation
Montant moyen annuel de la quote part de charges courantes : 3 100 €
Procédure en cours : Non
Rencontrez votre agence
Simulateur de financement
Calculez le montant des mensualités de votre prêt immobilier correspondant à l'emprunt que vous souhaitez effectuer.
Prix du bien HAI
798 000 €
€
par mois
Vous devez vendre pour acheter ?
Nos consultants immobiliers se tiennent à votre disposition pour réaliser une estimation de la valeur de votre bien. Toutes nos estimations sont offertes.
Je fais estimer mon bienUn lieu de vie à votre image
Junot vous fait visiter les quartiers dans lesquels nos agences vous accueillent, et vous présente les spécificités et bonnes adresses.
Parcourir les quartiers












