Faisons un tour d'horizon
Référence de l’annonce : 3494STGMIC
En plein cœur de la Nouvelle Athènes.
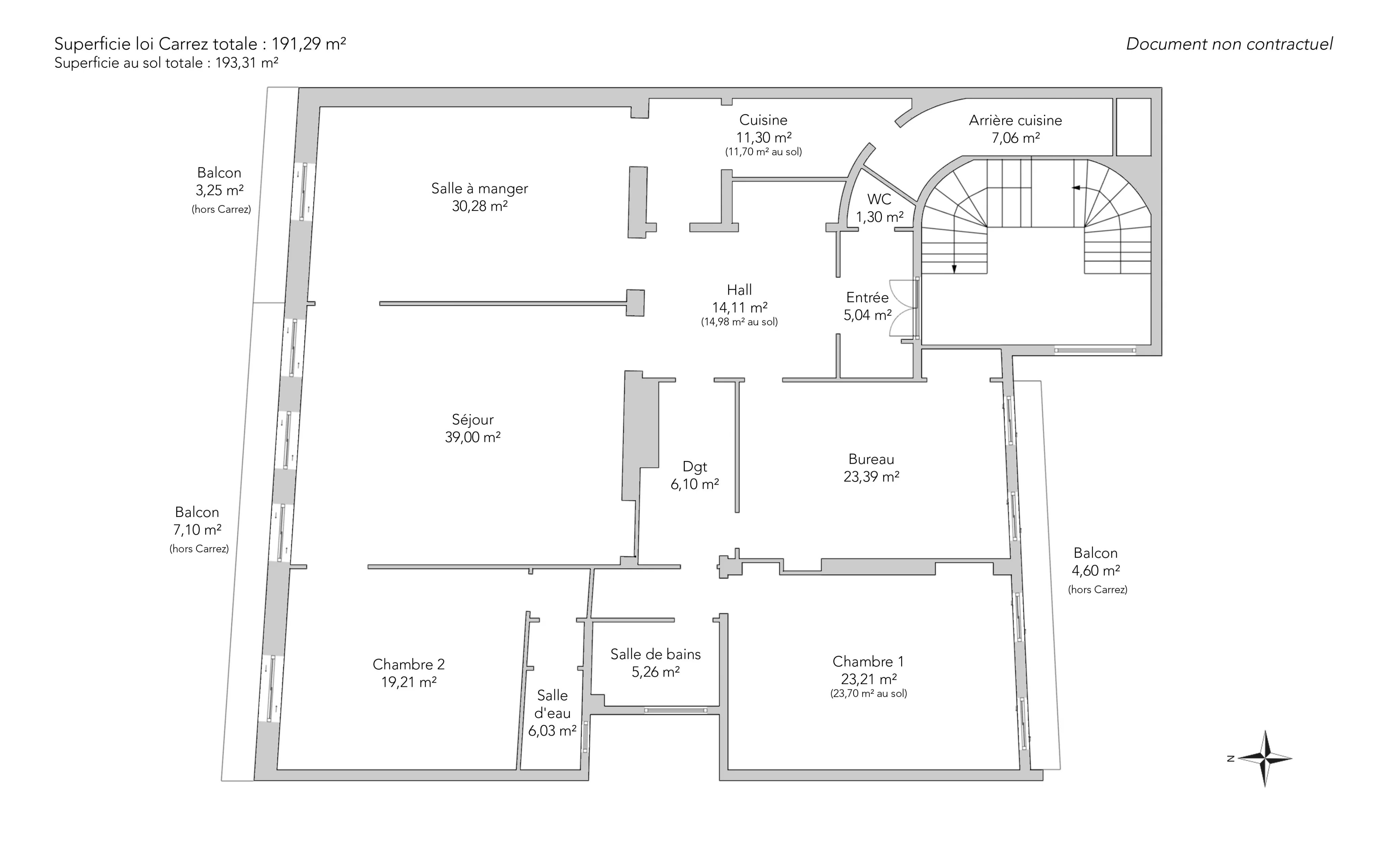
Au sein d'un superbe immeuble en pierre de taille fin XIXe avec gardienne à demeure, au quatrième étage par ascenseur, appartement familial et de réception de 191,29m² loi Carrez.
Lumineux, il comprend une galerie d'entrée, un spacieux salon avec cheminée, une salle à manger donnant sur la rue La Bruyère, une cuisine dînatoire indépendante, trois chambres, une salle de bains avec toilettes, une salle de douche et des toilettes séparées.
Ce bien saura séduire par sa situation très recherchée, son calme absolu, sa belle lumière, son charme ancien préservé (parquet en point de Hongrie, moulures et cheminées), ses balcons et ses beaux volumes.
Un emplacement de parking et une cave à proximité complètent cette offre.
Sectorisation Condorcet.
EXCLUSIVITÉ.
- Habitable : 191,29 m² Total : 193,31 m²
- 5 pièces
- 3 chambres
- 1 salle de bains
- 1 salle de douche
- Étage 4/5
- Cheminée
- Exposition Nord, Sud
- Excellent état
Ce qui nous séduit
- Balcon/Terrasse
- Adresse très recherchée
- Gardien
- Lumineux
- Calme
- Traversant
- Ascenseur
On vous en dit plus
Réglementations & éléments financiers
Les informations sur les risques auxquels ce bien est exposé sont disponibles sur le site Géorisques : www.georisques.gouv.fr
| Diagnostics |
|---|
Consommation énergie finale : a - 152 kWh/m²/an.
Montant estimé des dépenses annuelles d’énergie pour un usage standard : entre 2 630,00 € et 3 620,00 € /an (abonnement compris).
Prix moyen des énergies indexées au 01/01/2023.
| Éléments financiers |
|---|
Taxe foncière : 3 334,00 € /an
Détails de l’intérieur & de l’extérieur
| Pièce | Surface | Détail |
|---|---|---|
| 1x Entrée | 19.15 m² |
Étage : 4ème Revêtement : Parquet |
| 1x Séjour | 39 m² |
Étage : 4ème Revêtement : Parquet |
| 1x Salle à manger | 30.28 m² |
Étage : 4ème Revêtement : Parquet |
| 1x Cuisine | 11.3 m² |
Étage : 4ème Revêtement : Carrelage |
| 1x Chambre | 23.21 m² |
Étage : 4ème Revêtement : Parquet |
| 1x Chambre | 19.21 m² |
Étage : 4ème Revêtement : Parquet |
| 1x Chambre | 23.39 m² |
Étage : 4ème Revêtement : Parquet |
| 1x Balcon | 4.6 m² | Étage : 4ème |
| 1x Balcon | 7.1 m² | Étage : 4ème |
| 1x Salle de douche | 6.03 m² |
Étage : 4ème Revêtement : Carrelage |
| 1x Salle de bains / toilettes | 5.26 m² |
Étage : 4ème Revêtement : Carrelage |
| 1x Dégagement | 6.1 m² |
Étage : 4ème Revêtement : Parquet |
| 1x Toilettes | 1.3 m² |
Étage : 4ème Revêtement : Carrelage |
| 1x Débarras | 7.06 m² | Étage : 4ème |
| 1x Balcon | 3.25 m² | Étage : 4ème |
Prestations
Bâtiment & Copropriété
| Bâtiment |
|---|
-
Construit en : 1880
-
Type : Pierre de taille
-
Nombre d'étages : 5
-
Niveau de qualité : Luxe
| Copropriété |
|---|
26 lots d'habitation
Montant moyen annuel de la quote part de charges courantes : 6 000 €
Procédure en cours : Non
Rencontrez votre agence
Simulateur de financement
Calculez le montant des mensualités de votre prêt immobilier correspondant à l'emprunt que vous souhaitez effectuer.
Prix du bien HAI
2 900 000 €
€
par mois
Vous devez vendre pour acheter ?
Nos consultants immobiliers se tiennent à votre disposition pour réaliser une estimation de la valeur de votre bien. Toutes nos estimations sont offertes.
Je fais estimer mon bienUn lieu de vie à votre image
Junot vous fait visiter les quartiers dans lesquels nos agences vous accueillent, et vous présente les spécificités et bonnes adresses.
Parcourir les quartiers








