Faisons un tour d'horizon
Référence de l’annonce : 2890MONREI
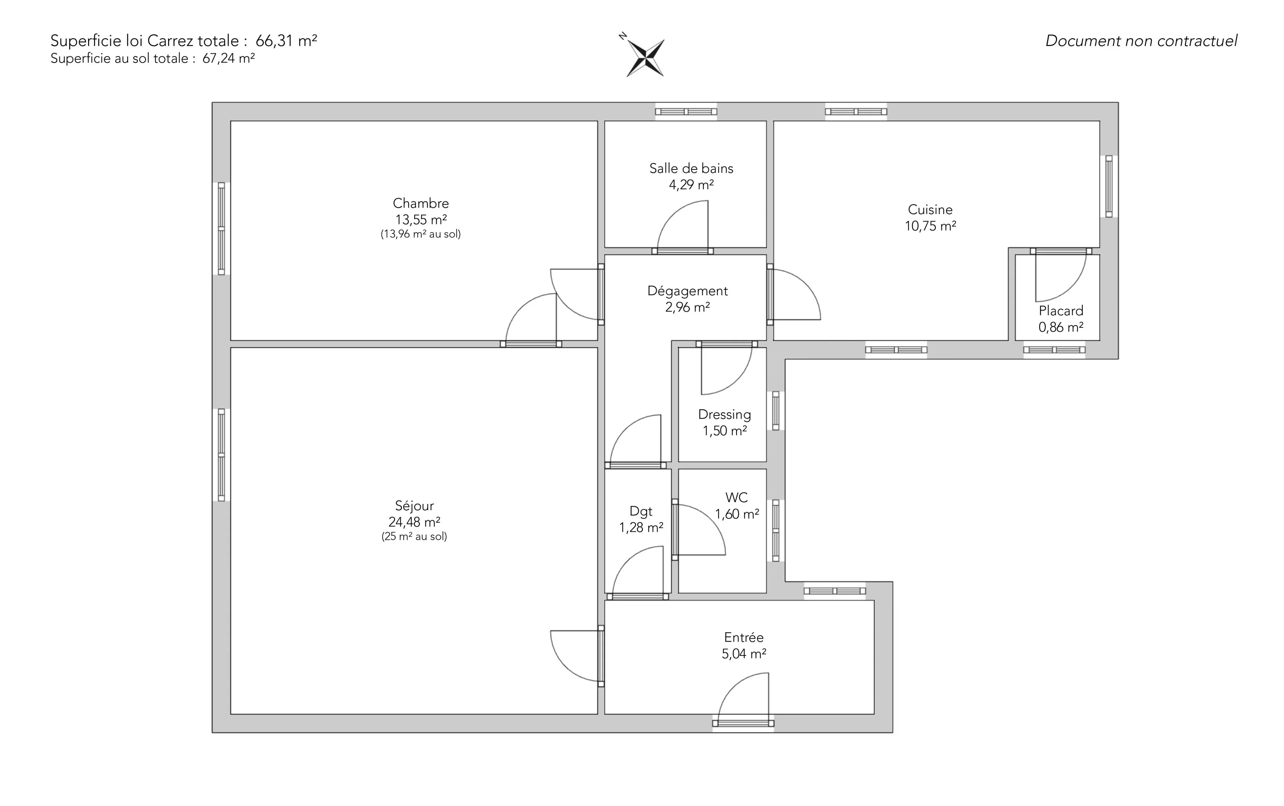
Situé au premier étage d’un élégant immeuble en pierre de taille avec ascenseur, cet appartement de 66,31m² loi Carrez offre un cadre de vie agréable à deux pas des commerces et des transports.
L’appartement se compose d’une entrée, d’un séjour avec une belle hauteur sous plafond de 3,20 m, d’une cuisine dînatoire, d’une chambre, d’une salle de bains, d’un dressing et de toilettes séparées.
Au calme absolu, ce bien reflète le charme de l’ancien avec son parquet, ses jolies moulures et sa cheminée, apportant une touche d’authenticité.
Une cave complète ce bien.
- Habitable : 66,31 m²
- 3 pièces
- 2 chambres
- 1 salle de bains
- Étage 1/6
- Cheminée
- Exposition Nord-ouest
- À rénover
Ce qui nous séduit
- Calme
- Ascenseur
- Cave
On vous en dit plus
Réglementations & éléments financiers
Les informations sur les risques auxquels ce bien est exposé sont disponibles sur le site Géorisques : www.georisques.gouv.fr
| Diagnostics |
|---|
| Éléments financiers |
|---|
Détails de l’intérieur & de l’extérieur
| Pièce | Surface | Détail |
|---|---|---|
| 1x Entrée | 5.04 m² | |
| 1x Dégagement | 1.28 m² | |
| 1x Séjour | 24.48 m² | |
| 1x Chambre | 13.55 m² | |
| 1x Salle de bains | 4.29 m² | |
| 1x Toilettes | 1.6 m² | |
| 1x Cuisine | 10.75 m² | |
| 1x Dressing | 1.5 m² | |
| 1x Dégagement | 2.96 m² | |
| 1x Placard | 0.86 m² | |
| 1x Cave | ||
| 1x Chambre |
Prestations
Bâtiment & Copropriété
| Bâtiment |
|---|
-
Construit en : 1900
-
Nombre d'étages : 6
-
Niveau de qualité : Normal
| Copropriété |
|---|
44 lots d'habitation
Montant moyen annuel de la quote part de charges courantes : 2 400 €
Procédure en cours : Oui
Rencontrez votre agence
Simulateur de financement
Calculez le montant des mensualités de votre prêt immobilier correspondant à l'emprunt que vous souhaitez effectuer.
Prix du bien HAI
590 000 €
€
par mois
Vous devez vendre pour acheter ?
Nos consultants immobiliers se tiennent à votre disposition pour réaliser une estimation de la valeur de votre bien. Toutes nos estimations sont offertes.
Je fais estimer mon bienUn lieu de vie à votre image
Junot vous fait visiter les quartiers dans lesquels nos agences vous accueillent, et vous présente les spécificités et bonnes adresses.
Parcourir les quartiers













