Faisons un tour d'horizon
Référence de l’annonce : 3560BRECHV
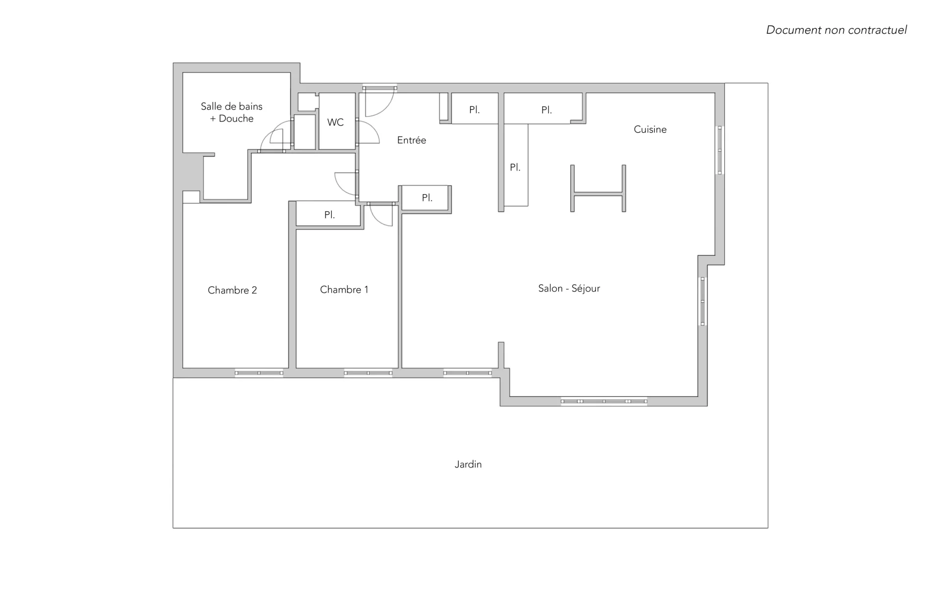
Idéalement situé à deux pas du square Gardette et de l’Atelier des Lumières, dans une résidence de standing de 2004 parfaitement entretenue avec gardienne, cet appartement, au calme absolu de 92,75m² loi Carrez donne sur un magnifique jardin paysager privatif de 220 m², exposé sud-ouest. Il offre : une entrée avec rangements, un agréable séjour/salle à manger, une cuisine équipée semi-ouverte, deux chambres, dont une suite parentale avec dressing, une salle de bains avec baignoire et douche ainsi que des toilettes séparées.
Son plan modulable permet d'envisager l'aménagement d'une troisième chambre et d'une seconde salle de bains.
Un double box et une cave en sous-sol, accessibles par ascenseur, complètent ce bien.
Local à vélos.
- Habitable : 93,00 m² Total : 166,50 m²
- 3 pièces
- 2 chambres
- 1 salle de bains
- Exposition Nord-ouest
- Bon état
Ce qui nous séduit
- Jardin
- Gardien
- Calme
- Parking
- Ascenseur
- Cave
On vous en dit plus
Réglementations & éléments financiers
Les informations sur les risques auxquels ce bien est exposé sont disponibles sur le site Géorisques : www.georisques.gouv.fr
| Diagnostics |
|---|
Consommation énergie finale : a - 74 kWh/m²/an.
Montant estimé des dépenses annuelles d’énergie pour un usage standard : entre 1 250,00 € et 1 700,00 € /an (abonnement compris).
Prix moyen des énergies indexées au 01/01/2023.
| Éléments financiers |
|---|
Taxe foncière : 2 681,00 € /an
Détails de l’intérieur & de l’extérieur
| Pièce | Surface | Détail |
|---|---|---|
| 1x Cave | Étage : Sous-sol | |
| 1x Parking | Étage : -3 | |
| 1x Placard | 3.3 m² | Étage : Rez-de-jardin |
| 1x Séjour | 35.05 m² |
Étage : Rez-de-jardin Revêtement : Parquet Plafond : 2.5m |
| 1x Cuisine américaine | 15.55 m² |
Étage : Rez-de-jardin Plafond : 2.5m |
| 1x Chambre | 9.65 m² |
Étage : Rez-de-jardin Revêtement : Moquette |
| 1x Chambre | 14.55 m² |
Étage : Rez-de-jardin Revêtement : Moquette |
| 1x Salle de bains | 6 m² |
Étage : Rez-de-jardin Revêtement : Carrelage |
| 1x Toilettes | 1.25 m² | Étage : Rez-de-jardin |
| 1x Entrée | 7.4 m² |
Étage : Rez-de-jardin Revêtement : Parquet |
| 1x Jardin | 220 m² | Étage : Rez-de-jardin |
Prestations
Bâtiment & Copropriété
| Bâtiment |
|---|
-
Construit en : 2004
-
Nombre d'étages : 5
-
Niveau de qualité : Normal
| Copropriété |
|---|
95 lots d'habitation
Montant moyen annuel de la quote part de charges courantes : 2 320 €
Procédure en cours : Non
Rencontrez votre agence
Simulateur de financement
Calculez le montant des mensualités de votre prêt immobilier correspondant à l'emprunt que vous souhaitez effectuer.
Prix du bien HAI
1 490 000 €
€
par mois
Vous devez vendre pour acheter ?
Nos consultants immobiliers se tiennent à votre disposition pour réaliser une estimation de la valeur de votre bien. Toutes nos estimations sont offertes.
Je fais estimer mon bienUn lieu de vie à votre image
Junot vous fait visiter les quartiers dans lesquels nos agences vous accueillent, et vous présente les spécificités et bonnes adresses.
Parcourir les quartiers












