Let's take an overview
Ad reference : 3364STGBERGRA
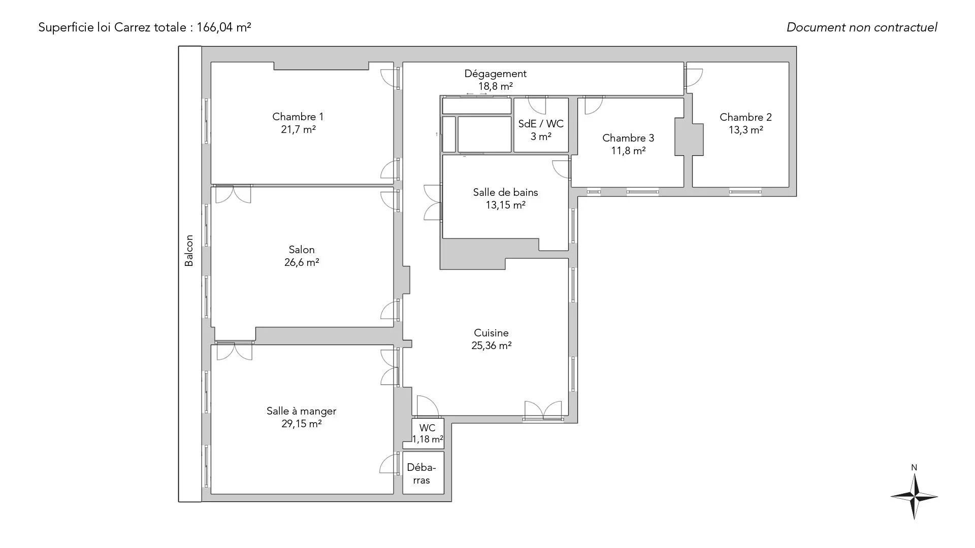
On the sixth floor by elevator of a magnificent condominium that has been refurbished and is guarded, attractive family apartment with a balcony.
It comprises a large, fully-equipped kitchen-dining room, an adjoining west-facing living room with a balcony overlooking the sky and Sacré-Cœur, a bedroom with a storeroom (shower room possible), a bedroom overlooking rue Drouot, a bathroom with laundry facilities and a guest toilet.
On the courtyard side, in absolute calm, there are two bedrooms and a shower room with toilet.
A cellar completes this property.
Its central location, well-maintained condominium, high floor, sunny west, east and south exposures, 2.94 m high ceilings, perfect condition, unobstructed views of the sky, rooftops and Sacré-Coeur and its exterior are sure to win you over.
RARE.
- Habitable : 1 808,34 Sq Ft
- 6 rooms
- 3 bedrooms
- 1 bathroom
- 1 shower room
- Floor 6/8
- Orientation East , West, South
- Good condition
What seduced us
- Balcony/Terrace
- Guardian
- Luminous
- Crossing
- Elevator
- Cellar
- Open view
We say more
Regulations & financial information
Information on the risks to which this property is exposed is available on the Géorisques website. : www.georisques.gouv.fr
| Diagnostics |
|---|
Final energy consumption : a - 219 kWh/m²/an.
Estimated annual energy costs for standard use: between 3 220,00 € and 4 390,00 € /year (including subscription).
Average energy price indexed to 01/01/2023.
| Financial elements |
|---|
Property tax : 2 466,00 € /an
Interior & exterior details
| Room | Surface | Detail |
|---|---|---|
| 1x Cellar |
Floor : Basement Coating : Clay |
|
| 1x Stay | 286.32 Sq Ft |
Floor : 6th Exposure : West Coating : Parquet Ceiling : 2.94m |
| 1x Dining room | 313.77 Sq Ft |
Floor : 6th Exposure : West Coating : Parquet Ceiling : 2.94m |
| 1x Balcony | 106.56 Sq Ft |
Floor : 6th Coating : Rock |
| 1x Equipped kitchen | 272.97 Sq Ft |
Floor : 6th Exposure : East Coating : Parquet Ceiling : 2.94m |
| 1x Bedroom | 233.58 Sq Ft |
Floor : 6th Exposure : West Coating : Parquet |
| 1x Bedroom | 143.16 Sq Ft |
Floor : 6th Exposure : South Coating : Parquet |
| 1x Bedroom | 127.01 Sq Ft |
Floor : 6th Exposure : South Coating : Parquet |
| 1x Bathroom | 141.55 Sq Ft |
Floor : 6th Exposure : East Coating : Floor tile |
| 1x Corridor | 202.36 Sq Ft |
Floor : 6th Coating : Parquet |
| 1x Shower room/toilet | 32.29 Sq Ft |
Floor : 6th Coating : Floor tile |
| 1x Bathroom | 12.7 Sq Ft |
Floor : 6th Coating : Floor tile |
| 1x Clearance | 21.53 Sq Ft |
Floor : 6th Coating : Parquet |
Services
Building & Co-ownership
| Building |
|---|
-
Built in : 2007
-
Type : cut stone
-
Number of floors : 8
-
Quality level : Standing
| Co-ownership |
|---|
104 housing lots
Average annual amount of the share of current charges : 8 292 €
Procedure in progress : Non
Meet your agency
Simulator financing
Calculate the amount of the monthly payments on your home loan corresponding to the loan you wish to make.
FAI property price
2 490 000 €
€
per month
Do you have to sell to buy?
Our real estate consultants are at your disposal to estimate the value of your property. All our estimates are free of charge.
Estimate my propertyA living space to suit you
Junot takes you on a tour of the neighborhoods in which our agencies welcome you, and presents the specific features and good addresses.
Explore the neighborhoods










