Faisons un tour d'horizon
Référence de l’annonce : 3364STGBERGRA
Au sixième étage par ascenseur d'une magnifique copropriété réhabilitée, sécurisée et gardiennée, bel appartement familial et traversant disposant d'un balcon filant.
Il comprend une grande cuisine - salle à manger intégralement équipée, un salon attenant exposé plein ouest bénéficiant d'un balcon avec une vue ciel et Sacré-Cœur, une chambre avec un débarras (possibilité d'y installer une salle de douche), une chambre donnant sur la rue Drouot, une salle de bains avec son espace buanderie et de toilettes invités.
Côté cour, au calme absolu, se trouvent deux chambres, une salle de douche avec ses toilettes et des rangements intégrés.
Une cave complète ce bien.
Il saura séduire par son emplacement central, sa copropriété parfaitement entretenue, son étage élevé, son ensoleillement assuré avec ses expositions ouest, est et sud, ses volumes avec sa hauteur sous plafond de 2,94 mètres, son parfait état, ses vues dégagées sur le ciel, les toits et le Sacré-Cœur et son extérieur.
RARE.
- Habitable : 168,00 m²
- 6 pièces
- 3 chambres
- 1 salle de bains
- 1 salle de douche
- Étage 6/8
- Exposition Est, Ouest, Sud
- Bon état
Ce qui nous séduit
- Balcon/Terrasse
- Gardien
- Lumineux
- Traversant
- Ascenseur
- Cave
- Vue dégagée
On vous en dit plus
Réglementations & éléments financiers
Les informations sur les risques auxquels ce bien est exposé sont disponibles sur le site Géorisques : www.georisques.gouv.fr
| Diagnostics |
|---|
Consommation énergie finale : a - 219 kWh/m²/an.
Montant estimé des dépenses annuelles d’énergie pour un usage standard : entre 3 220,00 € et 4 390,00 € /an (abonnement compris).
Prix moyen des énergies indexées au 01/01/2023.
| Éléments financiers |
|---|
Taxe foncière : 2 466,00 € /an
Détails de l’intérieur & de l’extérieur
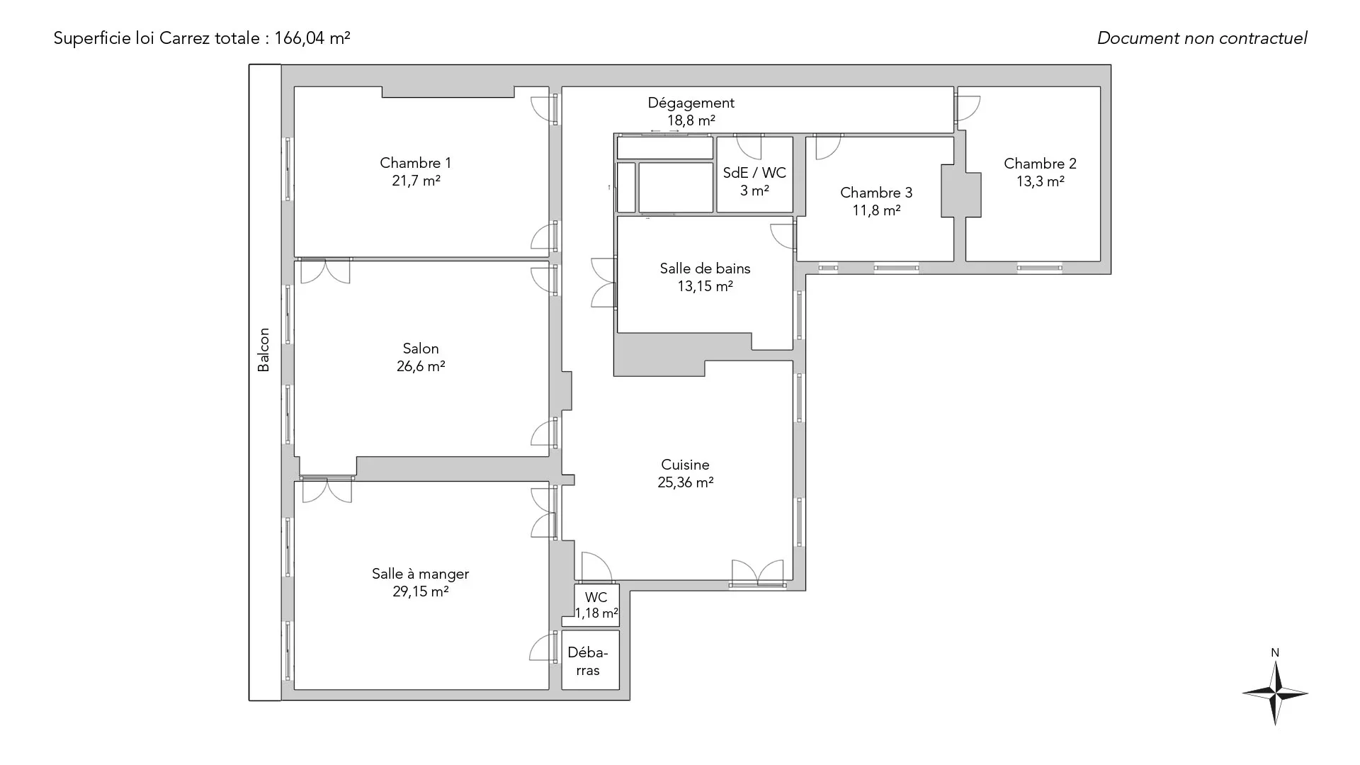
| Pièce | Surface | Détail |
|---|---|---|
| 1x Cave |
Étage : Sous-sol Revêtement : Terre battue |
|
| 1x Séjour | 26.6 m² |
Étage : 6ème Exposition : Ouest Revêtement : Parquet Plafond : 2.94m |
| 1x Salle à manger | 29.15 m² |
Étage : 6ème Exposition : Ouest Revêtement : Parquet Plafond : 2.94m |
| 1x Balcon | 9.9 m² |
Étage : 6ème Revêtement : Pierre |
| 1x Cuisine équipée | 25.36 m² |
Étage : 6ème Exposition : Est Revêtement : Parquet Plafond : 2.94m |
| 1x Chambre | 21.7 m² |
Étage : 6ème Exposition : Ouest Revêtement : Parquet |
| 1x Chambre | 13.3 m² |
Étage : 6ème Exposition : Sud Revêtement : Parquet |
| 1x Chambre | 11.8 m² |
Étage : 6ème Exposition : Sud Revêtement : Parquet |
| 1x Salle de bains | 13.15 m² |
Étage : 6ème Exposition : Est Revêtement : Carrelage |
| 1x Couloir | 18.8 m² |
Étage : 6ème Revêtement : Parquet |
| 1x Salle de douche / toilettes | 3 m² |
Étage : 6ème Revêtement : Carrelage |
| 1x Toilettes | 1.18 m² |
Étage : 6ème Revêtement : Carrelage |
| 1x Débarras | 2 m² |
Étage : 6ème Revêtement : Parquet |
Prestations
Bâtiment & Copropriété
| Bâtiment |
|---|
-
Construit en : 2007
-
Type : Pierre de taille
-
Nombre d'étages : 8
-
Niveau de qualité : Standing
| Copropriété |
|---|
104 lots d'habitation
Montant moyen annuel de la quote part de charges courantes : 8 292 €
Procédure en cours : Non
Rencontrez votre agence
Simulateur de financement
Calculez le montant des mensualités de votre prêt immobilier correspondant à l'emprunt que vous souhaitez effectuer.
Prix du bien HAI
2 490 000 €
€
par mois
Vous devez vendre pour acheter ?
Nos consultants immobiliers se tiennent à votre disposition pour réaliser une estimation de la valeur de votre bien. Toutes nos estimations sont offertes.
Je fais estimer mon bienUn lieu de vie à votre image
Junot vous fait visiter les quartiers dans lesquels nos agences vous accueillent, et vous présente les spécificités et bonnes adresses.
Parcourir les quartiers










