Faisons un tour d'horizon
Référence de l’annonce : 5703JASVAN
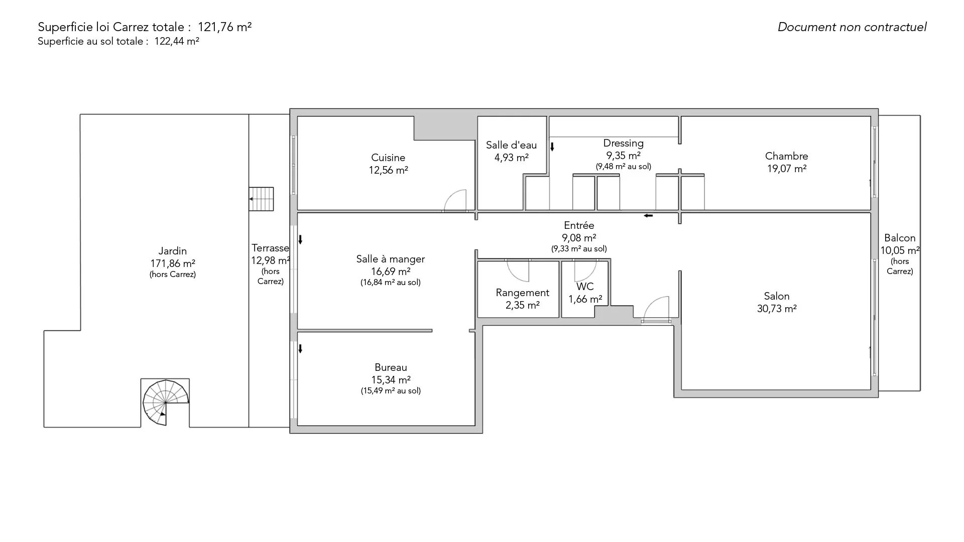
Situé au cœur du village d'Auteuil, appartement de 121,76m² loi Carrez en rez-de-jardin au sein d'une copropriété moderne et sécurisée.
Il comporte une entrée qui dessert un salon ouvrant sur un balcon, abritée par la verdure côté rue, une salle à manger et une cuisine ouvrant sur un magnifique jardin de 171,86m² sans vis-à-vis.
Côté nuit, une chambre master en suite avec dressing et salle de bains, ainsi qu'un bureau (possibilité d'une deuxième chambre).
2 caves complètent ce bien.
Une place de parking et un box sont proposés en supplément.
Adresse prisée et calme absolu dans un havre de verdure.
Professions libérales autorisées.
EXCLUSIVITÉ
- Habitable : 121,76 m² Total : 122,44 m²
- 4 pièces
- 2 chambres
- 1 salle de bains
- Exposition Sud-est, Nord-ouest
- À rafraîchir
Ce qui nous séduit
- Balcon/Terrasse
- Jardin
- Adresse très recherchée
- Gardien
- Calme
- Ascenseur
- Cave
On vous en dit plus
Réglementations & éléments financiers
Les informations sur les risques auxquels ce bien est exposé sont disponibles sur le site Géorisques : www.georisques.gouv.fr
| Diagnostics |
|---|
Consommation énergie finale : E - 308 kWh/m²/an.
Montant estimé des dépenses annuelles d’énergie pour un usage standard : entre 3 120,00 € et 4 270,00 € /an (abonnement compris).
Prix moyen des énergies indexées au 01/01/2021.
| Éléments financiers |
|---|
Taxe foncière : 4 000,00 € /an
Détails de l’intérieur & de l’extérieur
| Pièce | Surface | Détail |
|---|---|---|
| 2x Cave | ||
| 1x Jardin | 171.86 m² | Étage : Rez-de-jardin |
| 1x Terrasse | 12.98 m² | Étage : Rez-de-jardin |
| 1x Balcon | 10.05 m² | Étage : Rez-de-jardin |
| 1x Entrée | 9.08 m² | Étage : Rez-de-jardin |
| 1x Salon | 30.73 m² | Étage : Rez-de-jardin |
| 1x Salle à manger | 16.69 m² | Étage : Rez-de-jardin |
| 1x Cuisine | 12.56 m² | Étage : Rez-de-jardin |
| 1x Chambre | 19.07 m² | Étage : Rez-de-jardin |
| 1x Chambre | 15.34 m² | Étage : Rez-de-jardin |
| 1x Dressing | 9.35 m² | Étage : Rez-de-jardin |
| 1x Dressing | 2.35 m² | Étage : Rez-de-jardin |
| 1x Salle de bains | 4.93 m² | Étage : Rez-de-jardin |
| 1x Toilettes | 1.66 m² | Étage : Rez-de-jardin |
Prestations
Bâtiment & Copropriété
| Bâtiment |
|---|
-
Construit en : 1976
-
Nombre d'étages : 6
| Copropriété |
|---|
16 lots d'habitation
Montant moyen annuel de la quote part de charges courantes : 8 864 €
Procédure en cours : Non
Rencontrez votre agence
Simulateur de financement
Calculez le montant des mensualités de votre prêt immobilier correspondant à l'emprunt que vous souhaitez effectuer.
Prix du bien HAI
1 695 000 €
€
par mois
Vous devez vendre pour acheter ?
Nos consultants immobiliers se tiennent à votre disposition pour réaliser une estimation de la valeur de votre bien. Toutes nos estimations sont offertes.
Je fais estimer mon bienUn lieu de vie à votre image
Junot vous fait visiter les quartiers dans lesquels nos agences vous accueillent, et vous présente les spécificités et bonnes adresses.
Parcourir les quartiers













