Faisons un tour d'horizon
Référence de l’annonce : 2787MONRAF
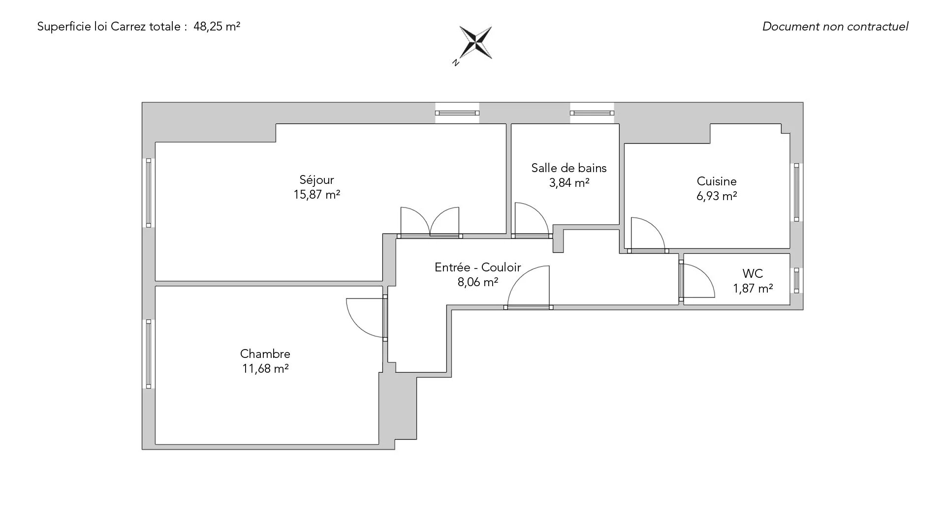
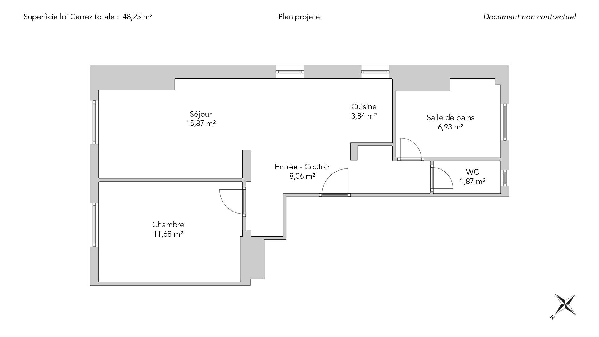
Au cinquième étage par ascenseur d'un immeuble ancien avec gardien, lumineux appartement de 48,25m² loi Carrez.
Son plan en étoile propose : une entrée, un séjour/salle à manger, une chambre, une cuisine, une salle de bains ainsi que des toilettes séparées.
Une cave et un débarras complètent ce bien.
Local à vélos dans la cour.
EXCLUSIVITÉ.
- Habitable : 48,25 m²
- 2 pièces
- 1 chambre
- 1 salle de bains
- Étage 5/6
- Cheminée
- Exposition Nord-est
- À rafraîchir
Ce qui nous séduit
- Lumineux
- Calme
- Ascenseur
- Cave
On vous en dit plus
Réglementations & éléments financiers
Les informations sur les risques auxquels ce bien est exposé sont disponibles sur le site Géorisques : www.georisques.gouv.fr
| Diagnostics |
|---|
Consommation énergie finale : C - 179 kWh/m²/an.
Logement à consommation énergétique excessive : classe F
Montant estimé des dépenses annuelles d’énergie pour un usage standard : entre 1 540,00 € et 2 130,00 € /an (abonnement compris).
Prix moyen des énergies indexées au 01/01/2023.
| Éléments financiers |
|---|
Taxe foncière : 1 148,00 € /an
Détails de l’intérieur & de l’extérieur
| Pièce | Surface | Détail |
|---|---|---|
| 1x Local à vélos | ||
| 1x Local à vélos | ||
| 1x Cave | Étage : Sous-sol | |
| 1x Débarras | Étage : Rez-de-chaussée | |
| 1x Entrée | 8.06 m² | Étage : 5ème |
| 1x Chambre | 11.68 m² | Étage : 5ème |
| 1x Séjour | 15.87 m² | Étage : 5ème |
| 1x Salle de bains | 3.84 m² | Étage : 5ème |
| 1x Cuisine | 6.93 m² | Étage : 5ème |
| 1x Toilettes | 1.87 m² | Étage : 5ème |
Prestations
Bâtiment & Copropriété
| Bâtiment |
|---|
-
Construit en : 1905
-
Type : Pierre de taille
-
Nombre d'étages : 6
-
Niveau de qualité : Normal
| Copropriété |
|---|
90 lots d'habitation
Montant moyen annuel de la quote part de charges courantes : 2 076 €
Procédure en cours : Non
Rencontrez votre agence
Simulateur de financement
Calculez le montant des mensualités de votre prêt immobilier correspondant à l'emprunt que vous souhaitez effectuer.
Prix du bien HAI
470 000 €
€
par mois
Vous devez vendre pour acheter ?
Nos consultants immobiliers se tiennent à votre disposition pour réaliser une estimation de la valeur de votre bien. Toutes nos estimations sont offertes.
Je fais estimer mon bienUn lieu de vie à votre image
Junot vous fait visiter les quartiers dans lesquels nos agences vous accueillent, et vous présente les spécificités et bonnes adresses.
Parcourir les quartiers












