Faisons un tour d'horizon
Référence de l’annonce : 3476STGMIC
En haut de la rue Ravignan, à l'angle de la rue des Trois Frères, superbe deux pièces au deuxième étage d'un immeuble ancien régulièrement entretenu.
Cet appartement a bénéficié d'une rénovation d'architecte et propose un plan idéal, une décoration soignée et une vue dégagée sur les rues environnantes, la Place Émile Goudeau et au loin, Paris.
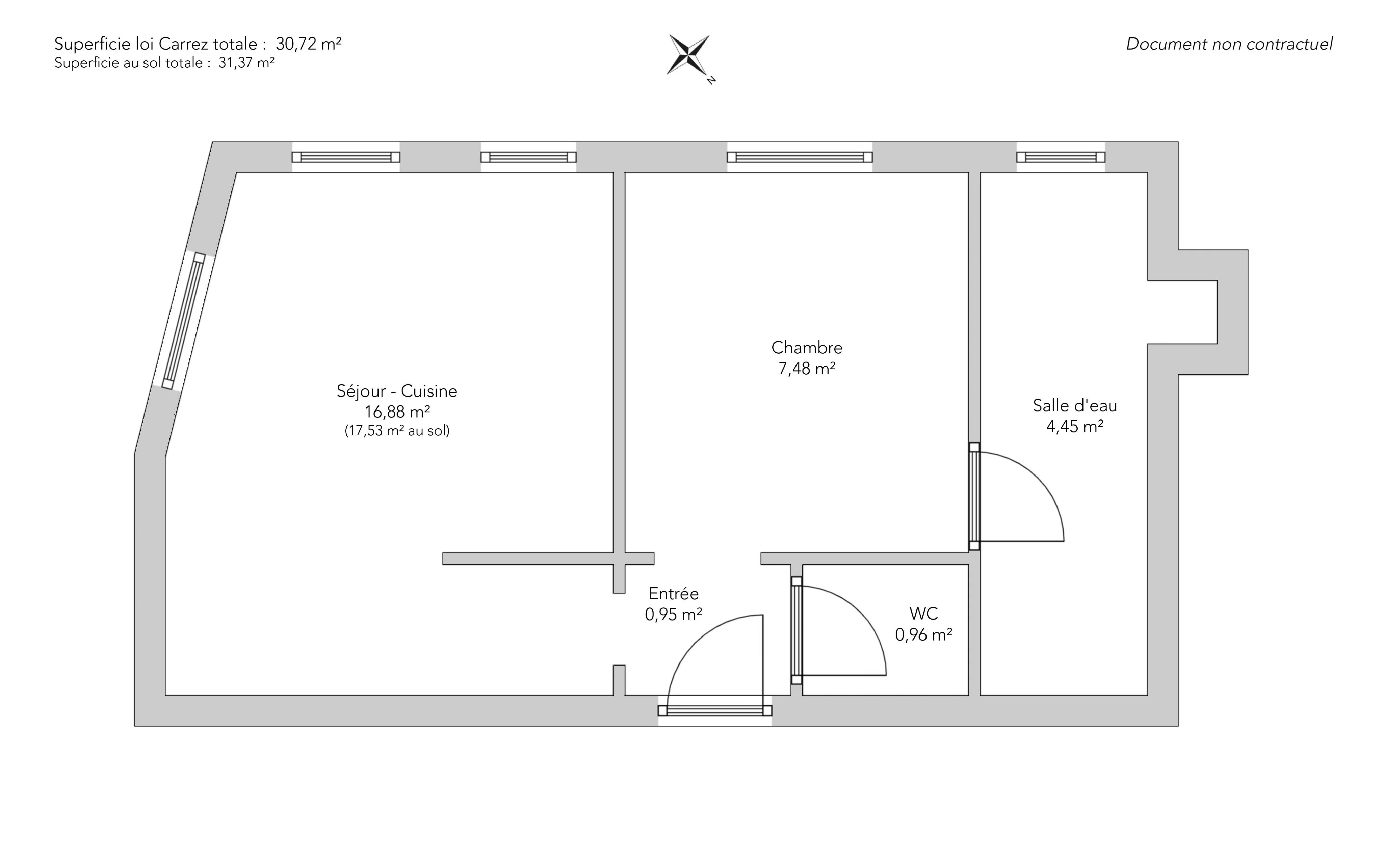
Depuis l'entrée, la pièce de vie en angle bénéficie de trois fenêtres et intègre la cuisine ouverte, aménagée. Côté nuit, une belle chambre en suite avec rangements intégrés ; élégante salle de douche décorée de miroirs, zelliges et robinetterie à l'anglaise. Toilettes indépendantes.
Ce bien bénéficie d'un ensoleillement maximal grâce à son exposition sud-ouest et ses cinq fenêtres.
Parfait pied-à-terre ou premier achat, au cœur d'un quartier vivant et iconique.
EXCLUSIVITÉ
- Habitable : 30,72 m² Total : 31,37 m²
- 2 pièces
- 1 chambre
- 1 salle de douche
- Étage 2/5
- Exposition Sud-ouest
- Bon état
Ce qui nous séduit
- Vue exceptionnelle
- Lumineux
- Vue dégagée
On vous en dit plus
Réglementations & éléments financiers
Les informations sur les risques auxquels ce bien est exposé sont disponibles sur le site Géorisques : www.georisques.gouv.fr
| Diagnostics |
|---|
Consommation énergie finale : C - 159 kWh/m²/an.
Montant estimé des dépenses annuelles d’énergie pour un usage standard : entre 920,00 € et 1 250,00 € /an (abonnement compris).
Prix moyen des énergies indexées au 01/01/2021.
| Éléments financiers |
|---|
Taxe foncière : 456,00 € /an
Détails de l’intérieur & de l’extérieur
| Pièce | Surface | Détail |
|---|---|---|
| 1x Entrée | 0.95 m² |
Étage : 2ème Revêtement : Parquet |
| 1x Séjour/cuisine | 16.88 m² |
Étage : 2ème Revêtement : Parquet |
| 1x Chambre | 7.48 m² |
Étage : 2ème Revêtement : Parquet |
| 1x Salle de douche | 4.45 m² |
Étage : 2ème Revêtement : Parquet |
| 1x Toilettes | 0.96 m² |
Étage : 2ème Revêtement : Parquet |
Prestations
Bâtiment & Copropriété
| Bâtiment |
|---|
-
Construit en : 1850
-
Type : Pierre, Ossature bois
-
Nombre d'étages : 5
-
Niveau de qualité : Luxe
| Copropriété |
|---|
37 lots d'habitation
Montant moyen annuel de la quote part de charges courantes : 900 €
Procédure en cours : Non
Rencontrez votre agence
Simulateur de financement
Calculez le montant des mensualités de votre prêt immobilier correspondant à l'emprunt que vous souhaitez effectuer.
Prix du bien HAI
465 000 €
€
par mois
Vous devez vendre pour acheter ?
Nos consultants immobiliers se tiennent à votre disposition pour réaliser une estimation de la valeur de votre bien. Toutes nos estimations sont offertes.
Je fais estimer mon bienUn lieu de vie à votre image
Junot vous fait visiter les quartiers dans lesquels nos agences vous accueillent, et vous présente les spécificités et bonnes adresses.
Parcourir les quartiers













