Faisons un tour d'horizon
Référence de l’annonce : 2989ABBLEV/1711CHM
À la lisière des 6e et 7e arrondissements, entre le boulevard Saint-Germain et la rue du Bac, en face de Beaupassage. Découvrez ce magnifique appartement familial de 200,56m² loi Carrez, situé au troisième étage par ascenseur d’un élégant immeuble Art-déco avec gardien.
Ce bien aux volumes généreux s’ouvre sur une galerie d’entrée qui mène à un vaste double séjour lumineux exposé ouest, une salle à manger et une cuisine dÏnatoire indépendante. Sur cour totalement calme, l’espace nuit comporte une suite parentale avec salle de bains, trois chambres indépendantes, une salle de bains supplémentaire, une buanderie et des toilettes.
Entièrement rénové avec des matériaux de qualité (climatisation, rangements sur-mesure, etc.), cet appartement a préservé tout le charme de l’ancien: parquet, cheminée et grandes fenêtres offrant une belle luminosité.
Deux caves complètent ce bien rare.
Possibilité d’acquérir un double emplacement box accessible depuis l'immeuble ainsi que quatre chambres de service en supplément.
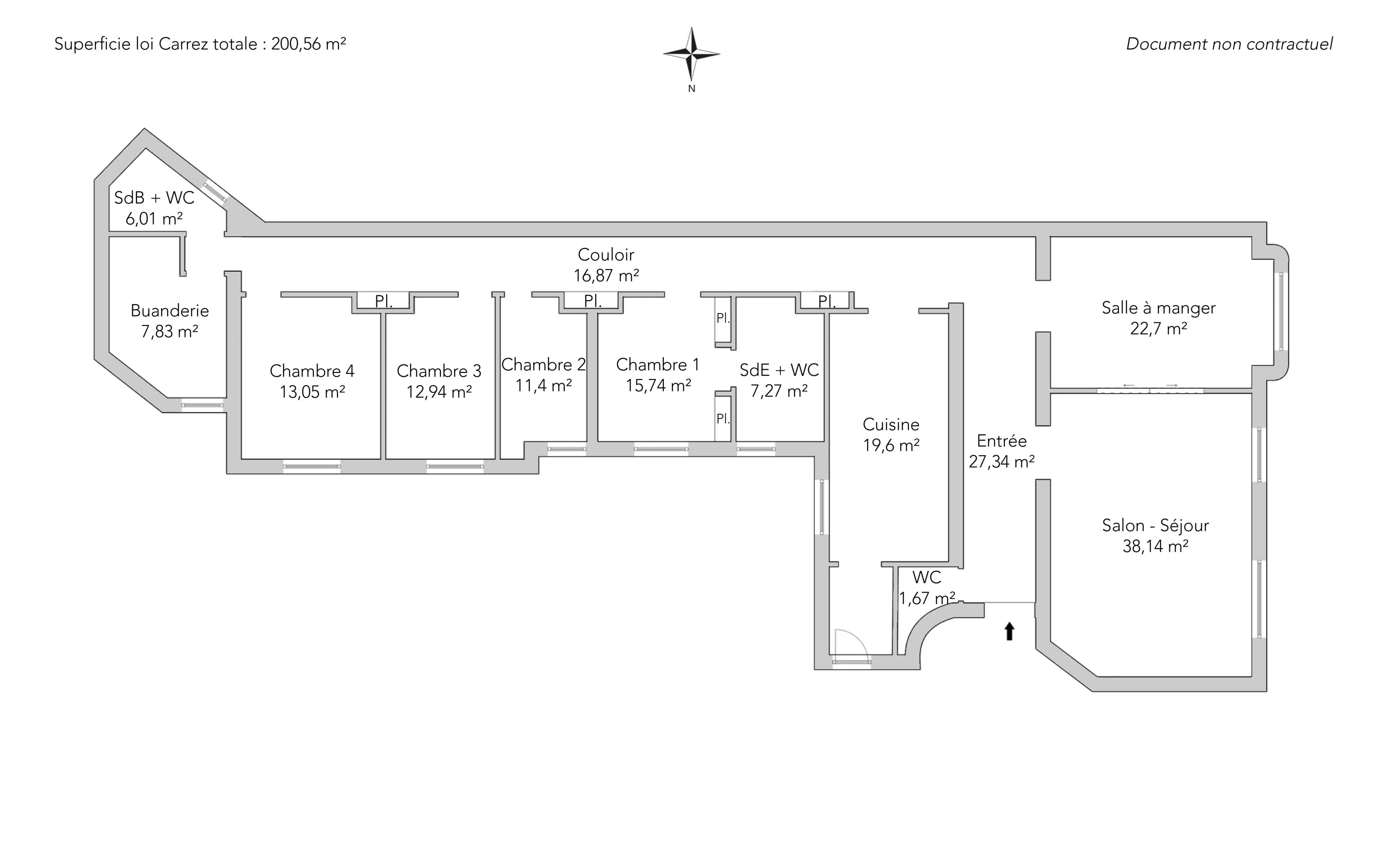
- Habitable : 200,56 m²
- 6 pièces
- 4 chambres
- 1 salle de bains
- 1 salle de douche
- Étage 3/8
- Cheminée
- Exposition Ouest
- Bon état
Ce qui nous séduit
- Adresse très recherchée
- Gardien
- Lumineux
- Traversant
- Ascenseur
- Cave
- Vue dégagée
On vous en dit plus
Réglementations & éléments financiers
Les informations sur les risques auxquels ce bien est exposé sont disponibles sur le site Géorisques : www.georisques.gouv.fr
| Diagnostics |
|---|
Montant estimé des dépenses annuelles d’énergie pour un usage standard : entre 4 450,00 € et 6 070,00 € /an (abonnement compris).
| Éléments financiers |
|---|
Taxe foncière : 4 639,00 € /an
Détails de l’intérieur & de l’extérieur
| Pièce | Surface | Détail |
|---|---|---|
| 2x Cave | ||
| 1x Entrée | 27.34 m² |
Étage : 3ème Revêtement : Parquet |
| 1x Double réception | 38.14 m² |
Étage : 3ème Exposition : Ouest Revêtement : Parquet Plafond : 2.95m |
| 1x Salle à manger | 22.7 m² |
Étage : 3ème Exposition : Ouest Revêtement : Parquet |
| 1x Cuisine | 19.6 m² |
Étage : 3ème Revêtement : Carrelage |
| 1x Chambre | 15.74 m² |
Étage : 3ème Revêtement : Parquet |
| 1x Salle de douche / toilettes | 7.27 m² |
Étage : 3ème Revêtement : Carrelage |
| 1x Chambre | 11.4 m² |
Étage : 3ème Revêtement : Parquet |
| 1x Chambre | 12.94 m² |
Étage : 3ème Revêtement : Parquet |
| 1x Chambre | 13.05 m² |
Étage : 3ème Revêtement : Parquet |
| 1x Couloir | 16.87 m² |
Étage : 3ème Exposition : Ouest Revêtement : Parquet |
| 1x Buanderie | 7.83 m² |
Étage : 3ème Revêtement : Parquet |
| 1x Salle de bains / toilettes | 6.01 m² |
Étage : 3ème Revêtement : Carrelage |
| 1x Toilettes | 1.67 m² |
Étage : 3ème Revêtement : Carrelage |
Prestations
Bâtiment & Copropriété
| Bâtiment |
|---|
-
Construit en : 1930
-
Type : Pierre, Pierre de taille
-
Nombre d'étages : 8
-
Niveau de qualité : Standing
| Copropriété |
|---|
33 lots d'habitation
Montant moyen annuel de la quote part de charges courantes : 9 876 €
Procédure en cours : Non
Rencontrez votre agence
Simulateur de financement
Calculez le montant des mensualités de votre prêt immobilier correspondant à l'emprunt que vous souhaitez effectuer.
Prix du bien HAI
3 990 000 €
€
par mois
Vous devez vendre pour acheter ?
Nos consultants immobiliers se tiennent à votre disposition pour réaliser une estimation de la valeur de votre bien. Toutes nos estimations sont offertes.
Je fais estimer mon bienUn lieu de vie à votre image
Junot vous fait visiter les quartiers dans lesquels nos agences vous accueillent, et vous présente les spécificités et bonnes adresses.
Parcourir les quartiers










