Faisons un tour d'horizon
Référence de l’annonce : 3289GREGEN
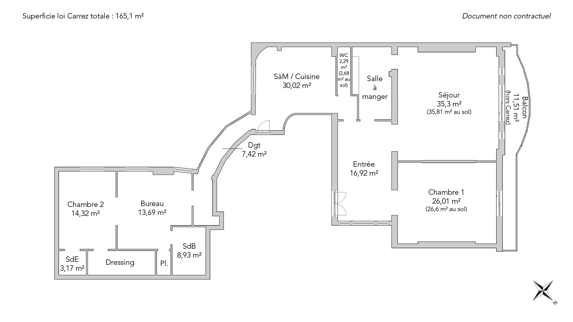
Dans un immeuble remarquable avec gardienne et ascenseur situé à une adresse prestigieuse et très recherchée, ce splendide appartement de réception de 163,40m² loi Carrez bénéficie d'un balcon de 11,51m² et d'une magnifique vue sur la tour Eiffel.
Il comprend une entrée, une somptueuse pièce de vie ouverte sur le balcon, une première chambre sur le balcon, une très belle cuisine équipée et sa salle à manger attenante, une vaste chambre avec son espace bureau et qui offre une vue sur la tour Eiffel, deux salles de bains, des toilettes indépendantes ainsi que de nombreux rangements. Possibilité de recréer une troisième chambre.
Une cave et un débarras complètent cette offre rare.
- Habitable : 163,40 m² Total : 174,91 m²
- 6 pièces
- 3 chambres
- 1 salle de bains
- 1 salle de douche
- Étage 5/7
- Cheminée
- Exposition Nord-ouest
- Bon état
Ce qui nous séduit
- Vue exceptionnelle
- Balcon/Terrasse
- Adresse très recherchée
- Prestations exceptionnelles
- Gardien
- Vue monument historique
- Lumineux
- Calme
- Traversant
- Ascenseur
- Vue dégagée
On vous en dit plus
Réglementations & éléments financiers
Les informations sur les risques auxquels ce bien est exposé sont disponibles sur le site Géorisques : www.georisques.gouv.fr
| Diagnostics |
|---|
Consommation énergie finale : a - 150 kWh/m²/an.
Montant estimé des dépenses annuelles d’énergie pour un usage standard : entre 2 630,00 € et 3 600,00 € /an (abonnement compris).
Prix moyen des énergies indexées au 01/01/2023.
| Éléments financiers |
|---|
Taxe foncière : 4 162,00 € /an
Détails de l’intérieur & de l’extérieur
| Pièce | Surface | Détail |
|---|---|---|
| 1x Entrée | 16.92 m² | Étage : 5ème |
| 1x Chambre | 26.01 m² | Étage : 5ème |
| 1x Séjour | 35.3 m² | Étage : 5ème |
| 1x Salle à manger/Cuisine | 30.02 m² | Étage : 5ème |
| 1x Toilettes | 2.29 m² | Étage : 5ème |
| 1x Dégagement | 7.42 m² | Étage : 5ème |
| 1x Toilettes | 1.27 m² | Étage : 5ème |
| 1x Salle de bains | 8.93 m² | Étage : 5ème |
| 1x Chambre | 13.69 m² | Étage : 5ème |
| 1x Dressing | 4.06 m² | Étage : 5ème |
| 1x Chambre | 14.32 m² | Étage : 5ème |
| 1x Salle de douche | 3.17 m² | Étage : 5ème |
| 1x Débarras | Étage : 5ème | |
| 1x Balcon | Étage : 5ème |
Prestations
Bâtiment & Copropriété
| Bâtiment |
|---|
-
Construit en : 1906
-
Nombre d'étages : 7
| Copropriété |
|---|
61 lots d'habitation
Montant moyen annuel de la quote part de charges courantes : 10 176 €
Procédure en cours : Non
Rencontrez votre agence
Simulateur de financement
Calculez le montant des mensualités de votre prêt immobilier correspondant à l'emprunt que vous souhaitez effectuer.
Prix du bien HAI
4 200 000 €
€
par mois
Vous devez vendre pour acheter ?
Nos consultants immobiliers se tiennent à votre disposition pour réaliser une estimation de la valeur de votre bien. Toutes nos estimations sont offertes.
Je fais estimer mon bienUn lieu de vie à votre image
Junot vous fait visiter les quartiers dans lesquels nos agences vous accueillent, et vous présente les spécificités et bonnes adresses.
Parcourir les quartiers










