
Faisons un tour d'horizon
Référence de l’annonce : 3306ABBRAV
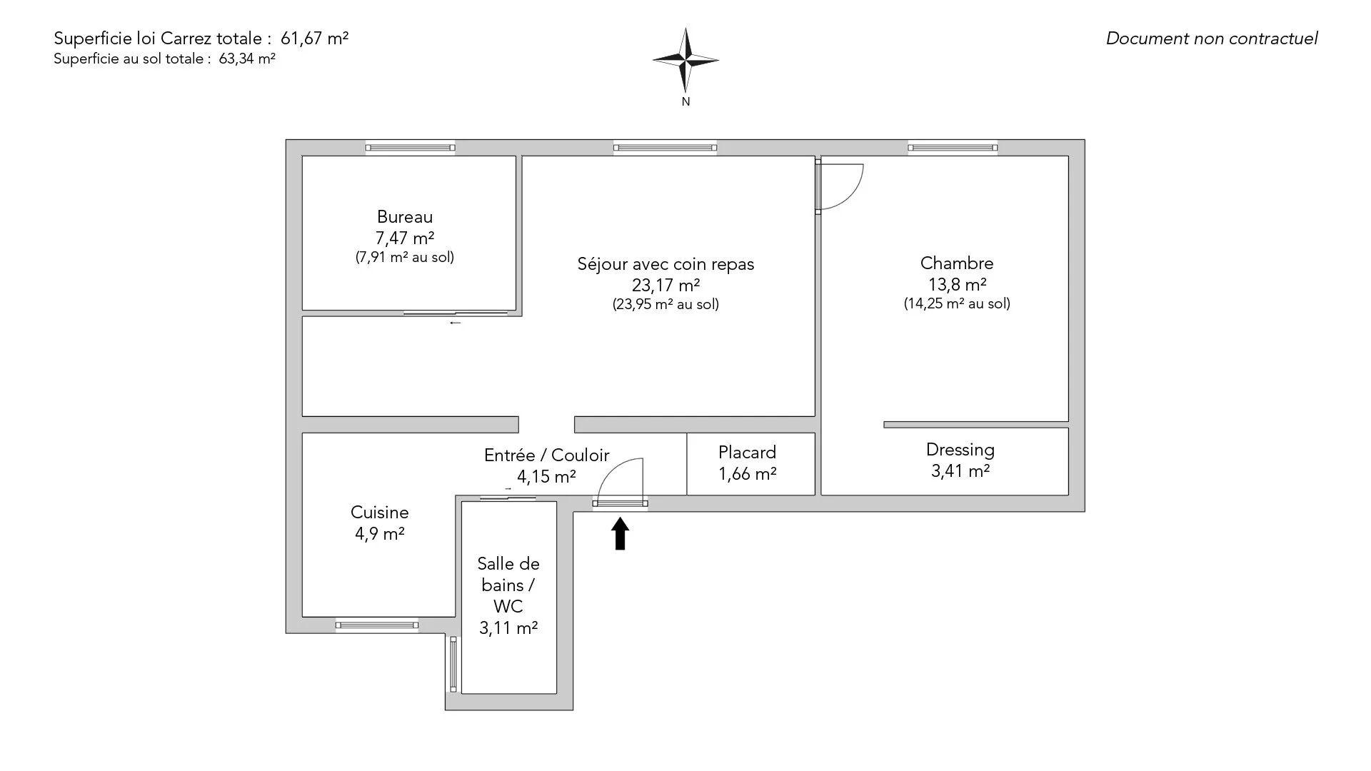
Au sein d’une charmante copropriété arborée et gardiennée ce magnifique appartement de 61,67m² loi Carrez et 63,34m² au sol est en bon état général, exposé plein sud.
Il se compose d’un séjour baigné de lumière, une cuisine équipée, une grande chambre avec dressing, un bureau pourrait être réaménagé en deuxième chambre, une salle de bains avec toilettes.
Il dispose également de beaux volumes et de nombreux rangements. Emplacement privilégié et très recherché, à proximité de nombreux commerces et restaurants.
Une cave complète ce bien.
- Habitable : 61,67 m² Total : 63,34 m²
- 3 pièces
- 2 chambres
- 1 salle de bains
- Étage 3/4
- Exposition Sud
- Bon état
Ce qui nous séduit
- Adresse très recherchée
- Gardien
- Lumineux
- Traversant
- Cave
- Vue dégagée
On vous en dit plus
Réglementations & éléments financiers
Les informations sur les risques auxquels ce bien est exposé sont disponibles sur le site Géorisques : www.georisques.gouv.fr
Diagnostics |
---|
Consommation énergie finale : C - 178 kWh/m²/an.
Logement à consommation énergétique excessive : classe F
Montant estimé des dépenses annuelles d’énergie pour un usage standard : entre 1 940,00 € et 2 660,00 € /an (abonnement compris).
Éléments financiers |
---|
Taxe foncière : 1 120,00 € /an
Détails de l’intérieur & de l’extérieur
Pièce | Surface | Détail |
---|---|---|
1x Cave | ||
1x Entrée | 4.15 m² |
Étage : 3ème Revêtement : Parquet |
1x Placard | 1.66 m² |
Étage : 3ème Revêtement : Parquet |
1x Salle de bains / toilettes | 3.11 m² |
Étage : 3ème Revêtement : Carrelage |
1x Cuisine | 4.9 m² |
Étage : 3ème Revêtement : Carrelage |
1x Séjour | 23.17 m² |
Étage : 3ème Exposition : Sud Revêtement : Parquet Plafond : 2.6m |
1x Chambre | 7.47 m² |
Étage : 3ème Revêtement : Parquet |
1x Chambre | 13.8 m² |
Étage : 3ème Revêtement : Parquet |
1x Dressing | 3.41 m² |
Étage : 3ème Revêtement : Parquet |
Prestations
Bâtiment & Copropriété
Bâtiment |
---|
-
Construit en : 1900
-
Type : Béton
-
Nombre d'étages : 4
-
Niveau de qualité : Normal
Copropriété |
---|
Montant moyen annuel de la quote part de charges courantes : 2 280 €
Procédure en cours : Non
Rencontrez votre agence

Simulateur de financement
Calculez le montant des mensualités de votre prêt immobilier correspondant à l'emprunt que vous souhaitez effectuer.
Prix du bien HAI
690 000 €
€
par mois
Vous devez vendre pour acheter ?
Nos consultants immobiliers se tiennent à votre disposition pour réaliser une estimation de la valeur de votre bien. Toutes nos estimations sont offertes.
Je fais estimer mon bienUn lieu de vie à votre image
Junot vous fait visiter les quartiers dans lesquels nos agences vous accueillent, et vous présente les spécificités et bonnes adresses.
Parcourir les quartiers