Faisons un tour d'horizon
Référence de l’annonce : 3356MARDUP
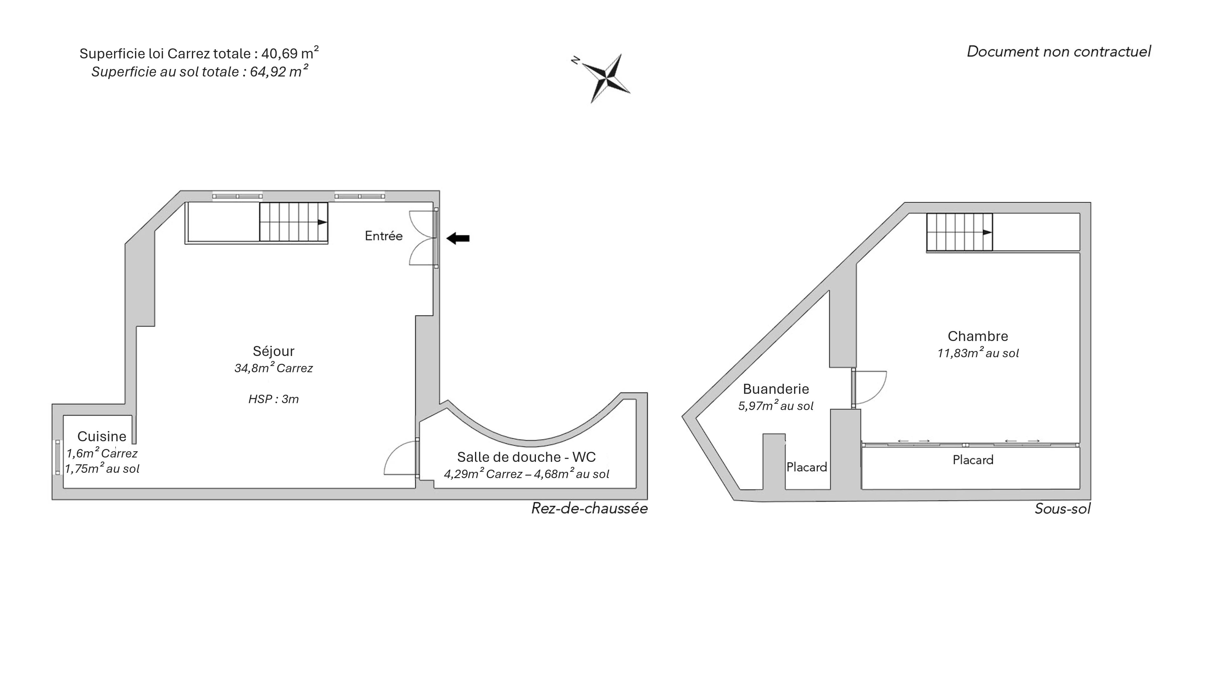
A deux pas de la rue des Martyrs, au sein d'un bel immeuble haussmannien, appartement deux pièces de 64.92m² au sol, 40.69m²loi Carrez situé au rez-de-chaussée sur cour en parfait état.
Ce bien, au calme absolu et aux volumes généreux (3m de hauteur sous plafond), a bénéficié d’une rénovation soignée. Réparti sur deux niveaux, il offre au rez-de-chaussée une belle pièce de vie de 35m² (cheminée et moulures d’origine, bibliothèque sur mesure), une cuisine attenante ainsi qu’une salle de douche avec toilettes. Le niveau inférieur est aménagé avec une chambre et un espace buanderie ainsi qu'un grand rangement. Chauffage au sol, nombreux rangements sur mesure. rénovation haut-de-gamme.
Vous serez séduit par son environnement de qualité à deux pas de la rue des Martyrs, ses volumes, et sa belle rénovation.
- Habitable : 52,00 m² Total : 64,92 m²
- 2 pièces
- 1 chambre
- 1 salle de douche
- Cheminée
- Exposition Est, Sud
- Excellent état
Ce qui nous séduit
- Adresse très recherchée
- Prestations exceptionnelles
- Calme
- Ascenseur
On vous en dit plus
Réglementations & éléments financiers
Les informations sur les risques auxquels ce bien est exposé sont disponibles sur le site Géorisques : www.georisques.gouv.fr
| Diagnostics |
|---|
Consommation énergie finale : C - 139 kWh/m²/an.
Montant estimé des dépenses annuelles d’énergie pour un usage standard : entre 1 090,00 € et 1 530,00 € /an (abonnement compris).
Prix moyen des énergies indexées au 01/01/2023.
| Éléments financiers |
|---|
Taxe foncière : 840,00 € /an
Détails de l’intérieur & de l’extérieur
| Pièce | Surface | Détail |
|---|---|---|
| 1x Buanderie | 3 m² | Étage : -1 |
| 1x Chambre | 10 m² |
Étage : -1 Revêtement : Parquet |
| 1x Séjour | 34.8 m² |
Étage : Rez-de-chaussée Revêtement : Parquet Plafond : 3.2m |
| 1x Cuisine | 1.6 m² |
Étage : Rez-de-chaussée Revêtement : Marbre |
| 1x Salle de douche / toilettes | 4.29 m² |
Étage : Rez-de-chaussée Revêtement : Marbre |
| 1x Placard | 7 m² | Étage : Entresol |
Prestations
Bâtiment & Copropriété
| Bâtiment |
|---|
-
Construit en : 1900
-
Type : Pierre de taille
-
Nombre d'étages : 6
-
Niveau de qualité : Luxe
| Copropriété |
|---|
44 lots d'habitation
Montant moyen annuel de la quote part de charges courantes : 612 €
Procédure en cours : Non
Rencontrez votre agence
Simulateur de financement
Calculez le montant des mensualités de votre prêt immobilier correspondant à l'emprunt que vous souhaitez effectuer.
Prix du bien HAI
590 000 €
€
par mois
Vous devez vendre pour acheter ?
Nos consultants immobiliers se tiennent à votre disposition pour réaliser une estimation de la valeur de votre bien. Toutes nos estimations sont offertes.
Je fais estimer mon bienUn lieu de vie à votre image
Junot vous fait visiter les quartiers dans lesquels nos agences vous accueillent, et vous présente les spécificités et bonnes adresses.
Parcourir les quartiers












