Faisons un tour d'horizon
Référence de l’annonce : 2216NEUPEL
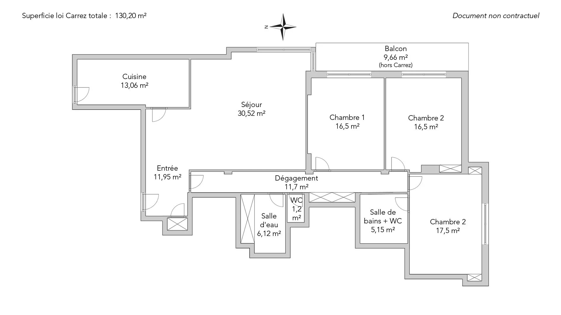
Très beau potentiel pour cet appartement de 130,20m² loi Carrez, baigné de lumière, exposé sud-est et très calme au deuxième étage, sans vis-à-vis, avec vue sur un jardin et un hôtel particulier.
Lumineux, il comporte une entrée, un double séjour, une cuisine séparée pouvant être ouverte, trois chambres dont deux donnant sur un large balcon, une salle de bains, une salle de douche et deux toilettes.
Une cave complète ce bien.
Possibilité d'acquérir un grand box en supplément.
Situation exceptionnelle à moins de cinq minutes du métro ligne 1, des commerces et du bois .
- Habitable : 130,20 m²
- 5 pièces
- 3 chambres
- 1 salle de bains
- 1 salle de douche
- Étage 2/5
- Exposition Sud-est
- À rénover
Ce qui nous séduit
- Balcon/Terrasse
- Adresse très recherchée
- Gardien
- Lumineux
- Calme
- Traversant
- Ascenseur
- Vue dégagée
On vous en dit plus
Réglementations & éléments financiers
Les informations sur les risques auxquels ce bien est exposé sont disponibles sur le site Géorisques : www.georisques.gouv.fr
| Diagnostics |
|---|
Consommation énergie finale : D - 232 kWh/m²/an.
Montant estimé des dépenses annuelles d’énergie pour un usage standard : entre 2 460,00 € et 3 340,00 € /an (abonnement compris).
Prix moyen des énergies indexées au 01/01/2021.
| Éléments financiers |
|---|
Taxe foncière : 1 963,00 € /an
Détails de l’intérieur & de l’extérieur
| Pièce | Surface | Détail |
|---|---|---|
| 1x Balcon | ||
| 1x Chambre | 16.5 m² | |
| 1x Chambre | 16.5 m² | |
| 1x Chambre | 17.5 m² | |
| 1x Entrée | 11.95 m² | |
| 1x Cuisine | 13.06 m² | |
| 1x Double réception | 30.52 m² | |
| 1x Salle de bains / toilettes | 5.15 m² | |
| 1x Salle de douche | 6.12 m² | |
| 1x Toilettes | 1.2 m² | |
| 1x Couloir | 11.7 m² |
Prestations
Bâtiment & Copropriété
| Bâtiment |
|---|
-
Construit en : 1965
-
Nombre d'étages : 5
-
Niveau de qualité : Standing
| Copropriété |
|---|
Montant moyen annuel de la quote part de charges courantes : 7 308 €
Procédure en cours : Non
Rencontrez votre agence
Simulateur de financement
Calculez le montant des mensualités de votre prêt immobilier correspondant à l'emprunt que vous souhaitez effectuer.
Prix du bien HAI
1 493 000 €
€
par mois
Vous devez vendre pour acheter ?
Nos consultants immobiliers se tiennent à votre disposition pour réaliser une estimation de la valeur de votre bien. Toutes nos estimations sont offertes.
Je fais estimer mon bienUn lieu de vie à votre image
Junot vous fait visiter les quartiers dans lesquels nos agences vous accueillent, et vous présente les spécificités et bonnes adresses.
Parcourir les quartiers












