Faisons un tour d'horizon
Référence de l’annonce : 3289MARLAC/2779WAG
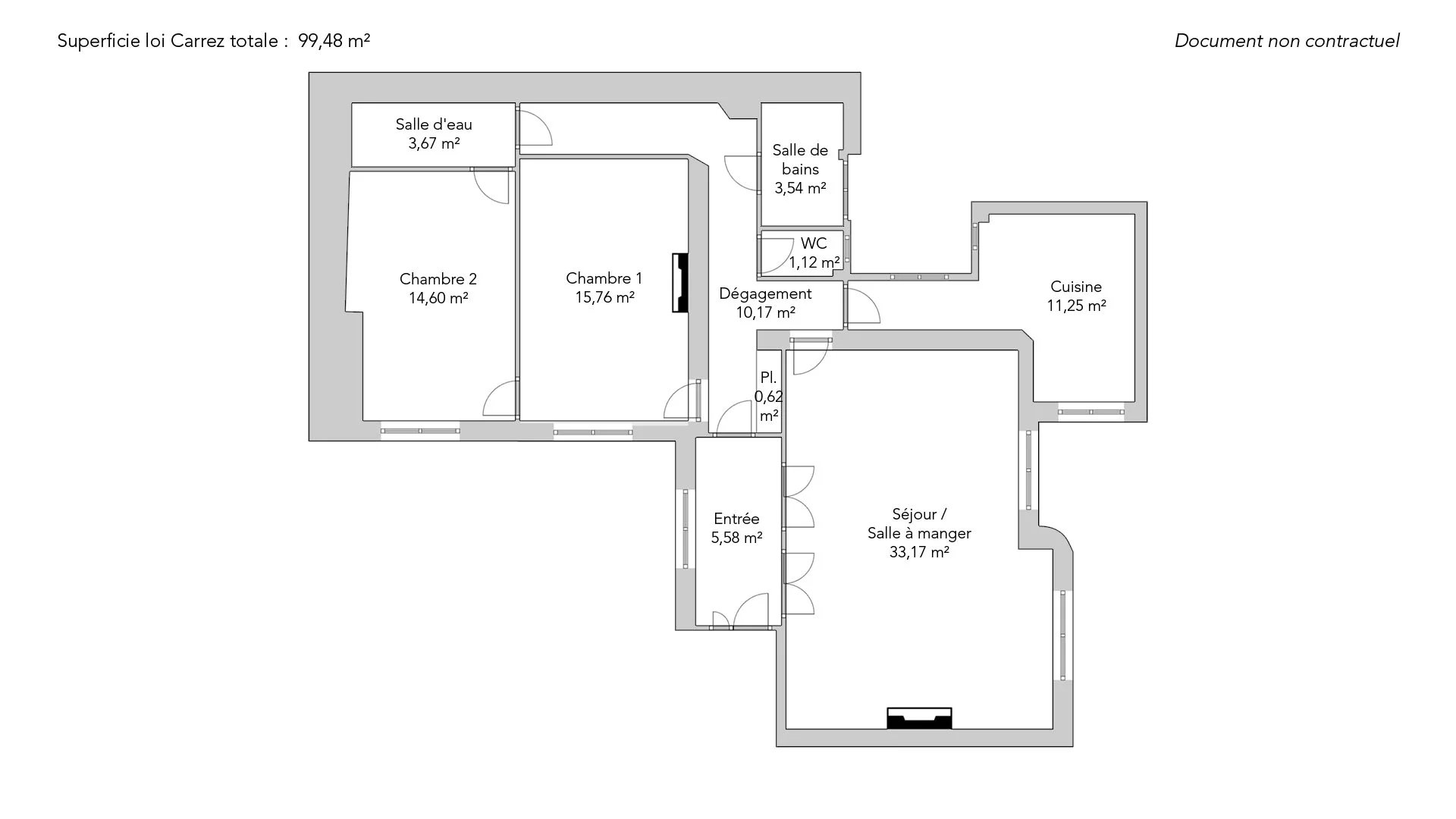
Dans un très bel immeuble en pierre de taille, au troisième étage avec ascenseur, magnifique appartement traversant de 99,48m² loi Carrez. Refait avec goût et élégance, il propose des prestations de qualité.
Au calme absolu, il comprend une entrée, un beau double séjour avec une cheminée fonctionnelle, deux chambres avec rangements et dressing, une salle de bains, une salle de douche, une cuisine indépendante et des toilettes séparées.
Très beaux volumes avec 3m de hauteur sous plafond.
Charme de l'ancien préservé: parquet, moulures et cheminées.
Nombreux rangements.
Une double cave complète cette offre.
Local à vélos.
Sectorisation Pierre de Ronsard.
- Habitable : 99,48 m²
- 4 pièces
- 2 chambres
- 1 salle de bains
- 1 salle de douche
- Étage 3/7
- Cheminée
- Exposition Sud-ouest
- Excellent état
Ce qui nous séduit
- Gardien
- Calme
- Traversant
- Ascenseur
- Cave
On vous en dit plus
Réglementations & éléments financiers
Les informations sur les risques auxquels ce bien est exposé sont disponibles sur le site Géorisques : www.georisques.gouv.fr
| Diagnostics |
|---|
Consommation énergie finale : D - 182 kWh/m²/an.
Montant estimé des dépenses annuelles d’énergie pour un usage standard : entre 1 690,00 € et 2 330,00 € /an (abonnement compris).
| Éléments financiers |
|---|
Taxe foncière : 2 300,00 € /an
Détails de l’intérieur & de l’extérieur
| Pièce | Surface | Détail |
|---|---|---|
| 1x Cave | ||
| 1x Entrée | 5.58 m² |
Étage : 3ème Revêtement : Parquet |
| 1x Séjour | 33.17 m² |
Étage : 3ème Revêtement : Parquet |
| 1x Cuisine | 11.25 m² |
Étage : 3ème Revêtement : Carrelage |
| 1x Chambre | 14.6 m² |
Étage : 3ème Revêtement : Parquet |
| 1x Chambre | 15.76 m² |
Étage : 3ème Revêtement : Parquet |
| 1x Salle de douche | 3.67 m² |
Étage : 3ème Revêtement : Carrelage |
| 1x Salle de bains | 3.54 m² |
Étage : 3ème Revêtement : Carrelage |
| 1x Toilettes | 1.12 m² |
Étage : 3ème Revêtement : Carrelage |
| 1x Dégagement | 10.17 m² | Étage : 3ème |
| 1x Placard | 0.62 m² | Étage : 3ème |
Prestations
Bâtiment & Copropriété
| Bâtiment |
|---|
-
Construit en : 1918
-
Nombre d'étages : 7
| Copropriété |
|---|
113 lots d'habitation
Montant moyen annuel de la quote part de charges courantes : 2 680 €
Procédure en cours : Non
Rencontrez votre agence
Simulateur de financement
Calculez le montant des mensualités de votre prêt immobilier correspondant à l'emprunt que vous souhaitez effectuer.
Prix du bien HAI
1 195 000 €
€
par mois
Vous devez vendre pour acheter ?
Nos consultants immobiliers se tiennent à votre disposition pour réaliser une estimation de la valeur de votre bien. Toutes nos estimations sont offertes.
Je fais estimer mon bienUn lieu de vie à votre image
Junot vous fait visiter les quartiers dans lesquels nos agences vous accueillent, et vous présente les spécificités et bonnes adresses.
Parcourir les quartiers













