Faisons un tour d'horizon
Référence de l’annonce : 3399BTLLEF15
Idéalement placé à proximité de la place de Breteuil, au sein d’un immeuble haussmannien bien entretenu avec gardienne, cet appartement de 100,64m² se situe au 4ᵉ étage par ascenseur.
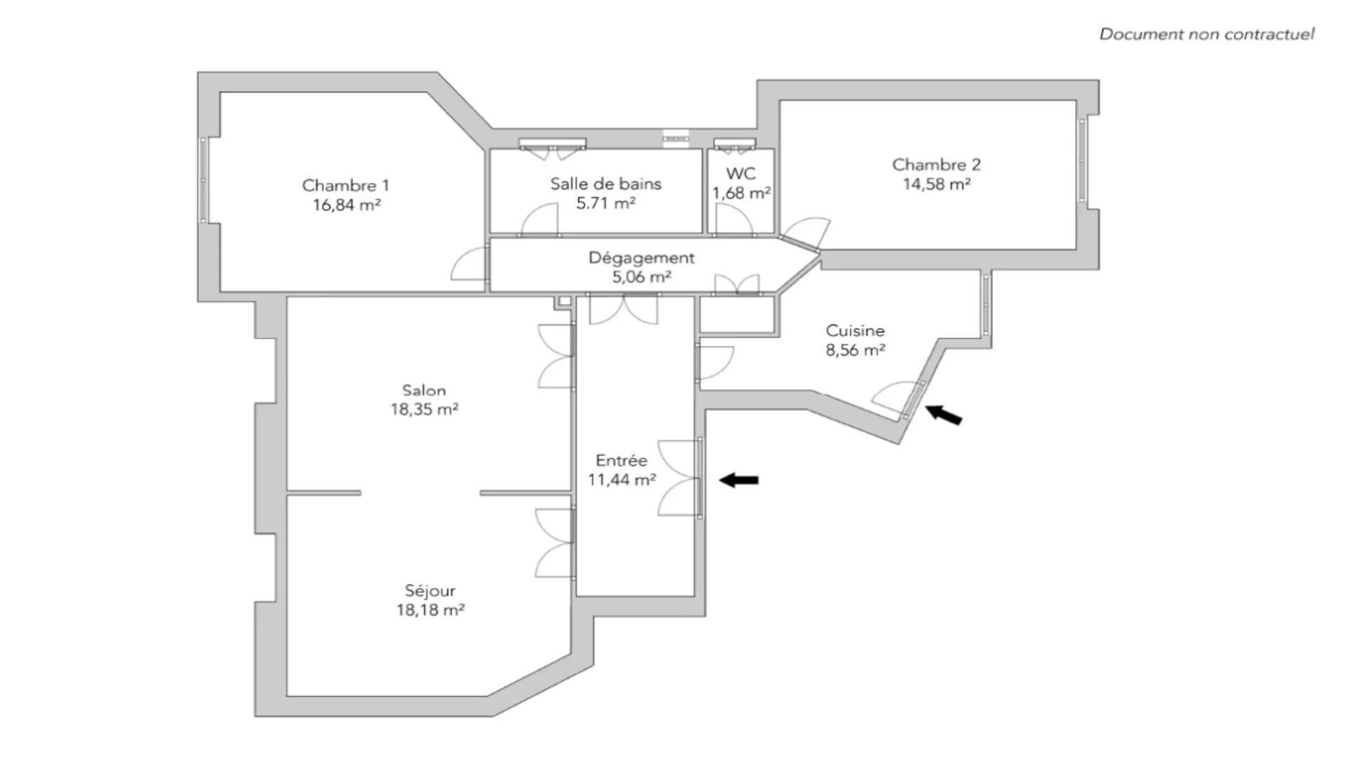
La distribution intérieure comprend une entrée, un double séjour, une cuisine indépendante aménagée et équipée, deux chambres spacieuses, une salle de bain ainsi que des toilettes séparées.
Ce bien se distingue par ses prestations anciennes : parquet en point de Hongrie, moulures d’époque, cheminées en marbre et hauteur sous plafond de 3,10 mètres, offrant de beaux volumes et une grande élégance.
Emplacement prisé au calme absolu.
Une cave complète l’ensemble.
- Habitable : 100,64 m²
- 3 pièces
- 2 chambres
- 1 salle de bains
- Étage 4/8
- Exposition Sud-ouest
- Bon état
Ce qui nous séduit
- Adresse très recherchée
- Gardien
- Calme
- Traversant
- Ascenseur
On vous en dit plus
Réglementations & éléments financiers
Les informations sur les risques auxquels ce bien est exposé sont disponibles sur le site Géorisques : www.georisques.gouv.fr
| Diagnostics |
|---|
Consommation énergie finale : E - 261 kWh/m²/an.
Montant estimé des dépenses annuelles d’énergie pour un usage standard : entre 2 076,00 € et 2 808,00 € /an (abonnement compris).
Prix moyen des énergies indexées au 01/01/2023.
| Éléments financiers |
|---|
Taxe foncière : 2 329,00 € /an
Détails de l’intérieur & de l’extérieur
| Pièce | Surface | Détail |
|---|---|---|
| 1x Entrée | 11.44 m² | Étage : 4ème |
| 1x Séjour | 18.35 m² | Étage : 4ème |
| 1x Séjour | 18.18 m² | Étage : 4ème |
| 1x Dégagement | 5.06 m² | Étage : 4ème |
| 1x Chambre | 16.84 m² | Étage : 4ème |
| 1x Salle de bains | 5.71 m² | Étage : 4ème |
| 1x Toilettes | 1.68 m² | Étage : 4ème |
| 1x Chambre | 14.58 m² | Étage : 4ème |
| 1x Cuisine | 8.56 m² | Étage : 4ème |
Prestations
Bâtiment & Copropriété
| Bâtiment |
|---|
-
Construit en : 1928
-
Nombre d'étages : 8
| Copropriété |
|---|
53 lots d'habitation
Montant moyen annuel de la quote part de charges courantes : 6 048 €
Procédure en cours : Non
Rencontrez votre agence
Simulateur de financement
Calculez le montant des mensualités de votre prêt immobilier correspondant à l'emprunt que vous souhaitez effectuer.
Prix du bien HAI
1 450 000 €
€
par mois
Vous devez vendre pour acheter ?
Nos consultants immobiliers se tiennent à votre disposition pour réaliser une estimation de la valeur de votre bien. Toutes nos estimations sont offertes.
Je fais estimer mon bienUn lieu de vie à votre image
Junot vous fait visiter les quartiers dans lesquels nos agences vous accueillent, et vous présente les spécificités et bonnes adresses.
Parcourir les quartiers










