
Faisons un tour d'horizon
Référence de l’annonce : 737JFPSOC
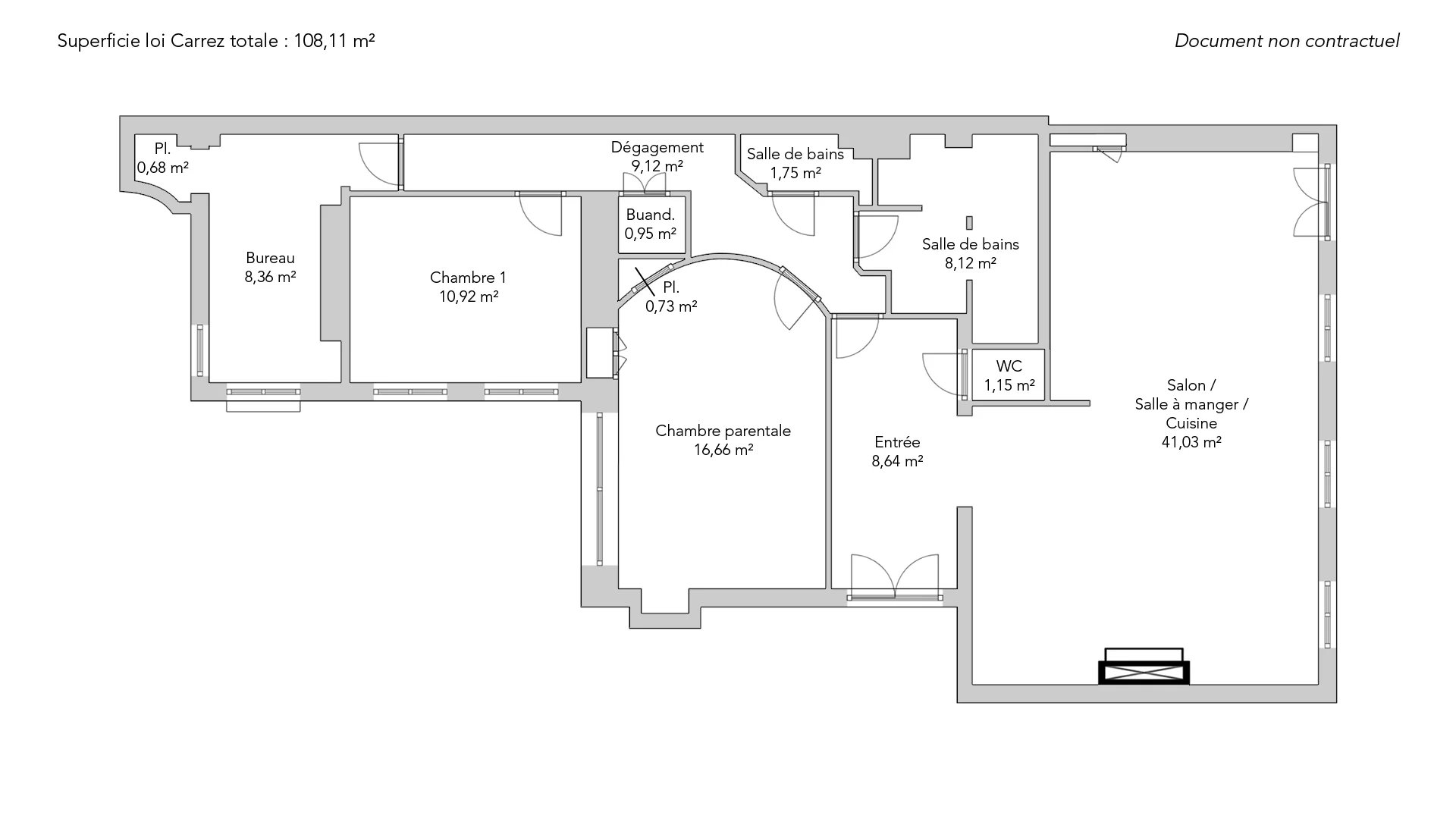
Idéalement situé au cœur du quartier prisé de la Nouvelle Athènes. Cet appartement d'exception de 108,11m² loi Carrez, entièrement repensé par un architecte, vous séduira par son agencement moderne et raffiné.
Niché au cinquième étage d'un immeuble haussmannien avec ascenseur et concierge, orienté plein sud, il bénéficie d'une vue panoramique sur Paris et la tour Eiffel. Baigné de lumière, l'espace à vivre comporte salon et salle à manger avec cuisine ouverte et toilettes invités. L'espace nuit comprend une grande chambre parentale avec salle de bains (douche, baignoire et toilettes), deux chambres et une salle de douche. Une cave complète ce bien.
- Habitable : 108,11 m²
- 4 pièces
- 3 chambres
- 1 salle de bains
- 1 salle de douche
- Étage 5/6
- Cheminée
- Exposition Sud
- Neuf
Ce qui nous séduit
- Vue exceptionnelle
- Adresse très recherchée
- Prestations exceptionnelles
- Gardien
- Vue monument historique
- Lumineux
- Calme
- Traversant
- Ascenseur
- Vue dégagée
On vous en dit plus
Réglementations & éléments financiers
Les informations sur les risques auxquels ce bien est exposé sont disponibles sur le site Géorisques : www.georisques.gouv.fr
Diagnostics |
---|
Consommation énergie finale : B - 103 kWh/m²/an.
Montant estimé des dépenses annuelles d’énergie pour un usage standard : entre 1 214,00 € et 1 642,00 € /an (abonnement compris).
Éléments financiers |
---|
Détails de l’intérieur & de l’extérieur
Pièce | Surface | Détail |
---|---|---|
1x Entrée | 8.64 m² | |
1x Salle à manger/Cuisine | 41.03 m² | |
1x Toilettes | 1.15 m² | |
1x Couloir | 9.12 m² | |
1x Salle de bains / toilettes | 8.12 m² | |
1x Salle de douche | 1.75 m² | |
1x Buanderie | 0.95 m² | |
1x Chambre | 16.66 m² | |
1x Placard | 0.73 m² | |
1x Chambre | 10.92 m² | |
1x Chambre d'enfants | 8.36 m² | |
1x Placard | 0.68 m² |
Prestations
Bâtiment & Copropriété
Bâtiment |
---|
-
Construit en : 1870
-
Type : Pierre de taille
-
Nombre d'étages : 6
-
Niveau de qualité : Grand Luxe
Copropriété |
---|
Montant moyen annuel de la quote part de charges courantes : 2 532 €
Procédure en cours : Non
Rencontrez votre agence

Simulateur de financement
Calculez le montant des mensualités de votre prêt immobilier correspondant à l'emprunt que vous souhaitez effectuer.
Prix du bien HAI
1 660 000 €
€
par mois
Vous devez vendre pour acheter ?
Nos consultants immobiliers se tiennent à votre disposition pour réaliser une estimation de la valeur de votre bien. Toutes nos estimations sont offertes.
Je fais estimer mon bienUn lieu de vie à votre image
Junot vous fait visiter les quartiers dans lesquels nos agences vous accueillent, et vous présente les spécificités et bonnes adresses.
Parcourir les quartiers