
Faisons un tour d'horizon
Référence de l’annonce : 3309BRESAT01
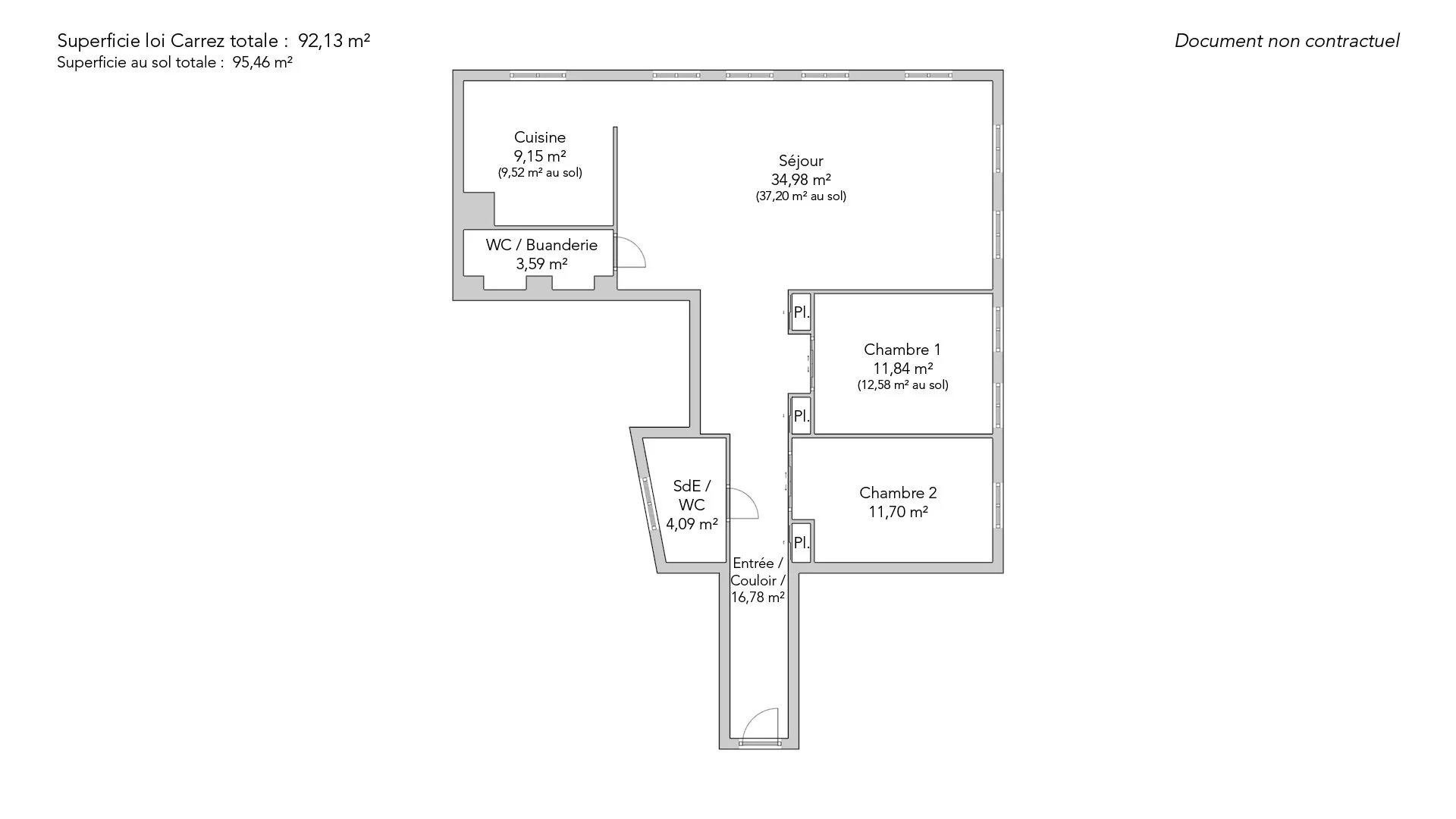
Au troisième étage par ascenseur d’un immeuble de standing réhabilité en pierre de taille. Elégant appartement de 92,13m² au troisième étage avec ascenseur composé d'une entrée, de nombreux rangements sur-mesure. Un vaste séjour de 45m² avec cuisine ouverte, cheminée et vues imprenables sur le palais Brongniart, deux chambres, une salle de douche avec toilettes et toilettes invités avec espace buanderie. Parquet au sol, 3.10m d'hauteur sous plafond, nombreuses ouvertures, double exposition. Une cave complète ce bien.
- Habitable : 92,13 m² Total : 95,46 m²
- 3 pièces
- 2 chambres
- 1 salle de douche
- Cheminée
- Exposition Est
- Bon état
Ce qui nous séduit
- Adresse très recherchée
- Vue monument historique
- Ascenseur
- Cave
- Vue dégagée
On vous en dit plus
Réglementations & éléments financiers
Les informations sur les risques auxquels ce bien est exposé sont disponibles sur le site Géorisques : www.georisques.gouv.fr
Diagnostics |
---|
Consommation énergie finale : D - 216 kWh/m²/an.
Montant estimé des dépenses annuelles d’énergie pour un usage standard : entre 2 040,00 € et 2 800,00 € /an (abonnement compris).
Prix moyen des énergies indexées au 01/01/2021.
Éléments financiers |
---|
Taxe foncière : 1 758,00 € /an
Détails de l’intérieur & de l’extérieur
Pièce | Surface | Détail |
---|---|---|
1x Cave | 5.05 m² | Étage : Sous-sol |
1x Entrée | 16.78 m² |
Étage : 3ème Revêtement : Parquet |
1x Salle de douche / toilettes | 4.09 m² |
Étage : 3ème Revêtement : Carrelage |
1x Séjour | 34.98 m² |
Étage : 3ème Revêtement : Parquet |
1x Toilettes | 3.59 m² |
Étage : 3ème Revêtement : Carrelage |
1x Cuisine | 9.15 m² |
Étage : 3ème Revêtement : Parquet |
1x Chambre | 11.84 m² |
Étage : 3ème Revêtement : Parquet |
1x Chambre | 11.7 m² |
Étage : 3ème Revêtement : Parquet |
Prestations
Bâtiment & Copropriété
Bâtiment |
---|
-
Type : Pierre de taille
Copropriété |
---|
57 lots d'habitation
Montant moyen annuel de la quote part de charges courantes : 3 980 €
Procédure en cours : Non
Rencontrez votre agence

Simulateur de financement
Calculez le montant des mensualités de votre prêt immobilier correspondant à l'emprunt que vous souhaitez effectuer.
Prix du bien HAI
1 690 000 €
€
par mois
Vous devez vendre pour acheter ?
Nos consultants immobiliers se tiennent à votre disposition pour réaliser une estimation de la valeur de votre bien. Toutes nos estimations sont offertes.
Je fais estimer mon bienUn lieu de vie à votre image
Junot vous fait visiter les quartiers dans lesquels nos agences vous accueillent, et vous présente les spécificités et bonnes adresses.
Parcourir les quartiers