Faisons un tour d'horizon
Référence de l’annonce : 3320BRECOU
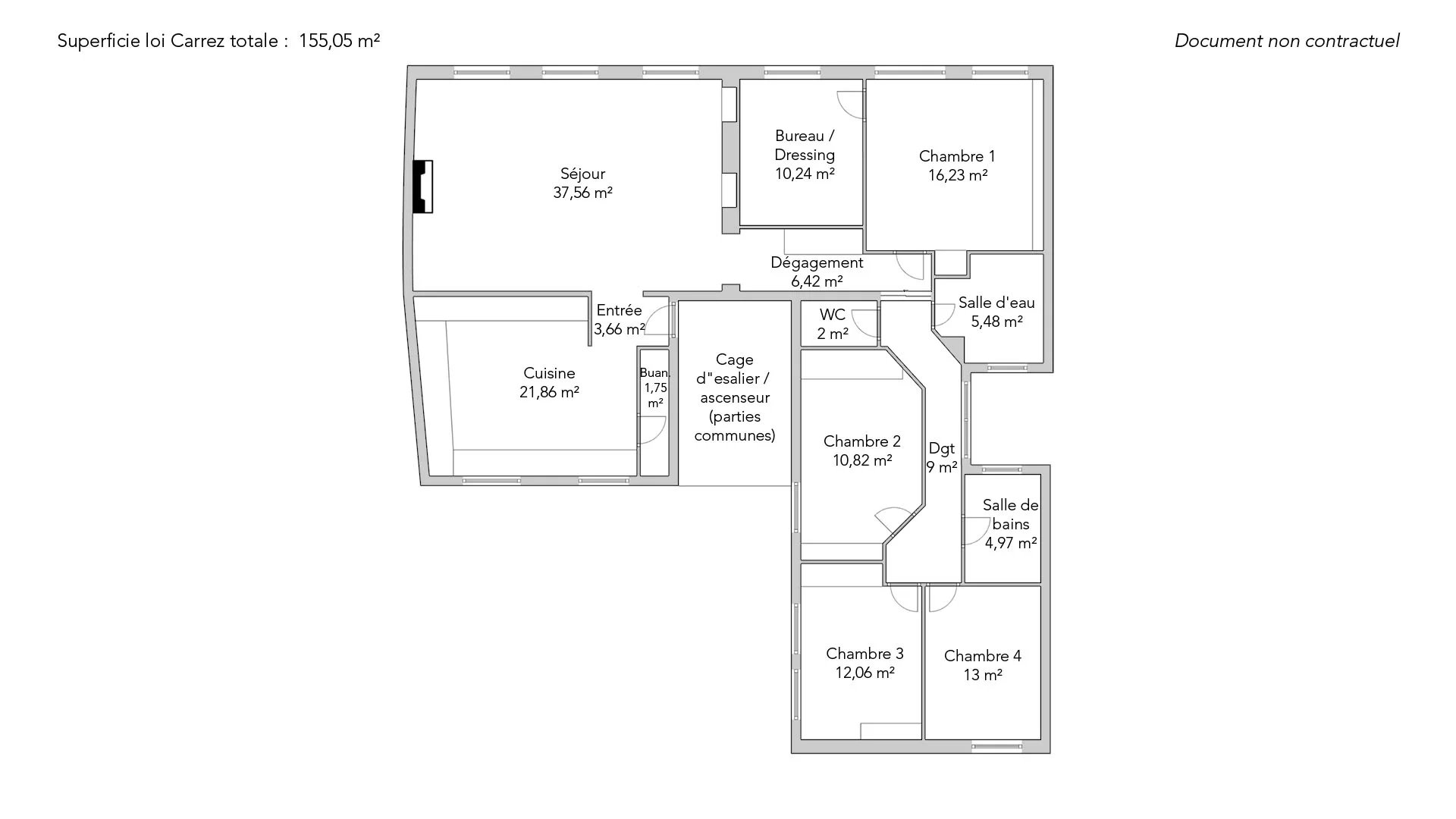
Très bien situé, en lisière du Marais, dans un bel immeuble haussmanien aux parties communes bien entretenues, au troisième étage par ascenseur donnant sur une rue calme, un très bel appartement familial rénové avec de belles prestations. Il se compose d'un grand séjour exposé est ouvrant sur un balcon filant, d'une grande cuisine dinatoire aménagée et équipée, d'une chambre en suite avec dressing/bureau (chambre supplémentaire possible) et salle de bains, de trois autres chambres avec salle de bains et toilettes au calme sur cour, d'une buanderie et de toilettes séparées. Vous serez séduits par la qualité de ses prestations, son plan compact et adapté aux familles nombreuses au sein d'une adresse recherchée. Une cave complète cette offre.
- Habitable : 155,05 m²
- 5 pièces
- 4 chambres
- 1 salle de bains
- 1 salle de douche
- Étage 2/6
- Exposition Est
- Excellent état
Ce qui nous séduit
- Balcon/Terrasse
- Adresse très recherchée
- Calme
- Traversant
- Ascenseur
On vous en dit plus
Réglementations & éléments financiers
Les informations sur les risques auxquels ce bien est exposé sont disponibles sur le site Géorisques : www.georisques.gouv.fr
| Diagnostics |
|---|
Consommation énergie finale : D - 222 kWh/m²/an.
Montant estimé des dépenses annuelles d’énergie pour un usage standard : entre 3 050,00 € et 4 160,00 € /an (abonnement compris).
Prix moyen des énergies indexées au 01/01/2021.
| Éléments financiers |
|---|
Taxe foncière : 2 678,00 € /an
Détails de l’intérieur & de l’extérieur
| Pièce | Surface | Détail |
|---|---|---|
| 1x Entrée | 3.66 m² | Étage : 2ème |
| 1x Cuisine | 21.86 m² | Étage : 2ème |
| 1x Buanderie | 1.75 m² | Étage : 2ème |
| 1x Séjour | 37.56 m² | Étage : 2ème |
| 1x Dégagement | 6.42 m² | Étage : 2ème |
| 1x Chambre | 16.23 m² | Étage : 2ème |
| 1x Dressing | 10.24 m² | Étage : 2ème |
| 1x Salle de douche | 5.48 m² | Étage : 2ème |
| 1x Dégagement | 9 m² | Étage : 2ème |
| 1x Salle de bains | 4.97 m² | Étage : 2ème |
| 1x Chambre | 10.82 m² | Étage : 2ème |
| 1x Chambre | 12.06 m² | Étage : 2ème |
| 1x Chambre | 13 m² | Étage : 2ème |
| 1x Toilettes | 2 m² | Étage : 2ème |
| 1x Balcon | 8.5 m² | Étage : 2ème |
Prestations
Bâtiment & Copropriété
| Bâtiment |
|---|
-
Construit en : 1876
-
Nombre d'étages : 6
| Copropriété |
|---|
110 lots d'habitation
Montant moyen annuel de la quote part de charges courantes : 2 920 €
Procédure en cours : Non
Rencontrez votre agence
Simulateur de financement
Calculez le montant des mensualités de votre prêt immobilier correspondant à l'emprunt que vous souhaitez effectuer.
Prix du bien HAI
1 890 000 €
€
par mois
Vous devez vendre pour acheter ?
Nos consultants immobiliers se tiennent à votre disposition pour réaliser une estimation de la valeur de votre bien. Toutes nos estimations sont offertes.
Je fais estimer mon bienUn lieu de vie à votre image
Junot vous fait visiter les quartiers dans lesquels nos agences vous accueillent, et vous présente les spécificités et bonnes adresses.
Parcourir les quartiers











