Faisons un tour d'horizon
Référence de l’annonce : 3473BREPRI10
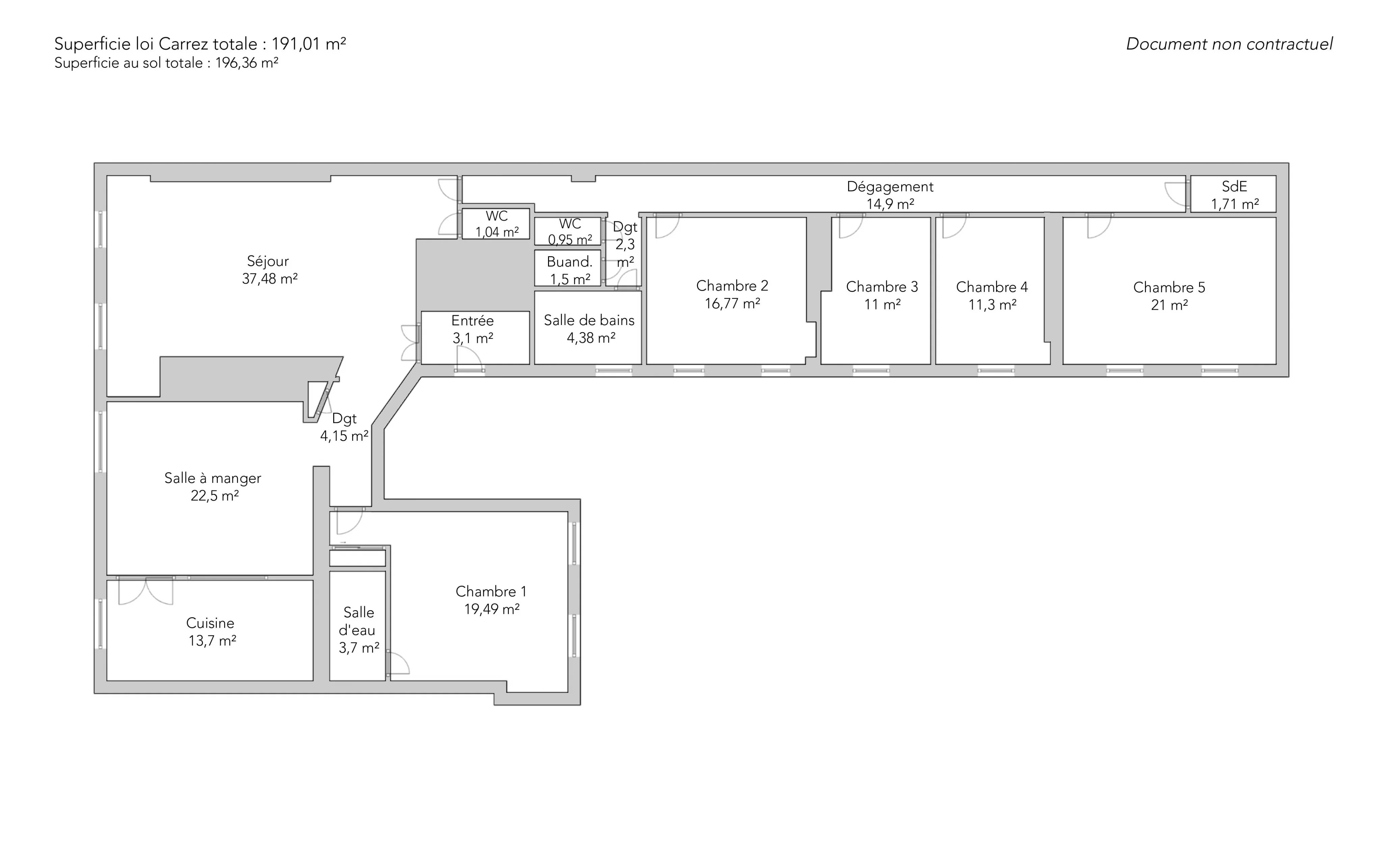
À quelques pas du Marais, donnant sur une rue semi-piétonne, dans un bel immeuble en pierre de taille bien entretenu, au deuxième étage noble, un appartement familial de 191,01m² Carrez, 196,36m² au sol.
Le plan parfait comporte une entrée, une vaste réception donnant plein sud sur la rue, d'une grande salle à manger et une cuisine séparée entièrement équipée.
Côté cour, la partie "parents" propose une chambre au calme absolu, de nombreux rangements et salle de douche en suite.
La partie "enfants", elle aussi au calme, comprend quatre chambres de belles taille (au total, six chambres possibles), une salle de bains et une salle de douche. Deux toilettes séparées.
Cet appartement bénéficie de beaux volumes, d'une double exposition et d'un emplacement recherché.
Rare dans le quartier.
- Habitable : 191,01 m² Total : 196,36 m²
- 7 pièces
- 5 chambres
- 1 salle de bains
- 2 salles de douche
- Étage 2/6
- Exposition Est, Nord, Sud
- Bon état
Ce qui nous séduit
- Calme
On vous en dit plus
Réglementations & éléments financiers
Les informations sur les risques auxquels ce bien est exposé sont disponibles sur le site Géorisques : www.georisques.gouv.fr
| Diagnostics |
|---|
Consommation énergie finale : D - 226 kWh/m²/an.
Montant estimé des dépenses annuelles d’énergie pour un usage standard : entre 3 840,00 € et 5 250,00 € /an (abonnement compris).
Prix moyen des énergies indexées au 01/01/2023.
| Éléments financiers |
|---|
Détails de l’intérieur & de l’extérieur
| Pièce | Surface | Détail |
|---|---|---|
| 1x Entrée | 3.1 m² |
Étage : 2ème Revêtement : Parquet |
| 1x Dégagement | 4.15 m² |
Étage : 2ème Revêtement : Parquet |
| 1x Chambre | 19.49 m² |
Étage : 2ème Revêtement : Moquette |
| 1x Salle de douche | 3.7 m² |
Étage : 2ème Revêtement : Carrelage |
| 1x Salle à manger | 22.5 m² |
Étage : 2ème Revêtement : Parquet |
| 1x Cuisine | 13.7 m² |
Étage : 2ème Revêtement : Carrelage |
| 1x Séjour | 37.48 m² |
Étage : 2ème Revêtement : Parquet |
| 1x Toilettes | 1.04 m² |
Étage : 2ème Revêtement : Carrelage |
| 1x Dégagement | 14.9 m² |
Étage : 2ème Revêtement : Parquet |
| 1x Dégagement | 2.3 m² |
Étage : 2ème Revêtement : Parquet |
| 1x Toilettes | 0.95 m² |
Étage : 2ème Revêtement : Carrelage |
| 1x Buanderie | 1.5 m² | Étage : 2ème |
| 1x Salle de bains | 4.38 m² |
Étage : 2ème Revêtement : Carrelage |
| 1x Chambre | 16.77 m² |
Étage : 2ème Revêtement : Moquette |
| 1x Chambre | 11 m² |
Étage : 2ème Revêtement : Moquette |
| 1x Chambre | 11.3 m² |
Étage : 2ème Revêtement : Moquette |
| 1x Chambre | 21 m² |
Étage : 2ème Revêtement : Moquette |
| 1x Salle de douche | 1.75 m² |
Étage : 2ème Revêtement : Carrelage |
Prestations
Bâtiment & Copropriété
| Bâtiment |
|---|
-
Construit en : 1890
-
Nombre d'étages : 6
| Copropriété |
|---|
47 lots d'habitation
Montant moyen annuel de la quote part de charges courantes : 4 852 €
Procédure en cours : Non
Rencontrez votre agence
Simulateur de financement
Calculez le montant des mensualités de votre prêt immobilier correspondant à l'emprunt que vous souhaitez effectuer.
Prix du bien HAI
2 090 000 €
€
par mois
Vous devez vendre pour acheter ?
Nos consultants immobiliers se tiennent à votre disposition pour réaliser une estimation de la valeur de votre bien. Toutes nos estimations sont offertes.
Je fais estimer mon bienUn lieu de vie à votre image
Junot vous fait visiter les quartiers dans lesquels nos agences vous accueillent, et vous présente les spécificités et bonnes adresses.
Parcourir les quartiers












