Faisons un tour d'horizon
Référence de l’annonce : 3316BTLGRA
Au cœur du Canal Saint-Martin, dans un immeuble parisien de belle facture, découvrez ce très bel appartement de 124,09 m², situé au 1er étage par ascenseur et bénéficiant d’une vue dégagée sur l’eau.
Ce bien se distingue par sa luminosité, ses beaux volumes et son agencement parfaitement optimisé. Il comprend une vaste pièce de vie avec cuisine ouverte, offrant un espace convivial et chaleureux, quatre chambres, dont deux sont des suites. En tout deux salles d’eau et une salle de bains.
L’appartement a conservé tout le charme de l’ancien : parquet, moulures, hauteur sous plafond, allié au confort contemporain d’un bien en bon état.
Un bien familial, offrant un cadre de vie privilégié au bord du Canal, dans l’un des quartiers les plus prisés du 10ᵉ arrondissement, à proximité immédiate, des commerces, restaurants, écoles et transports.
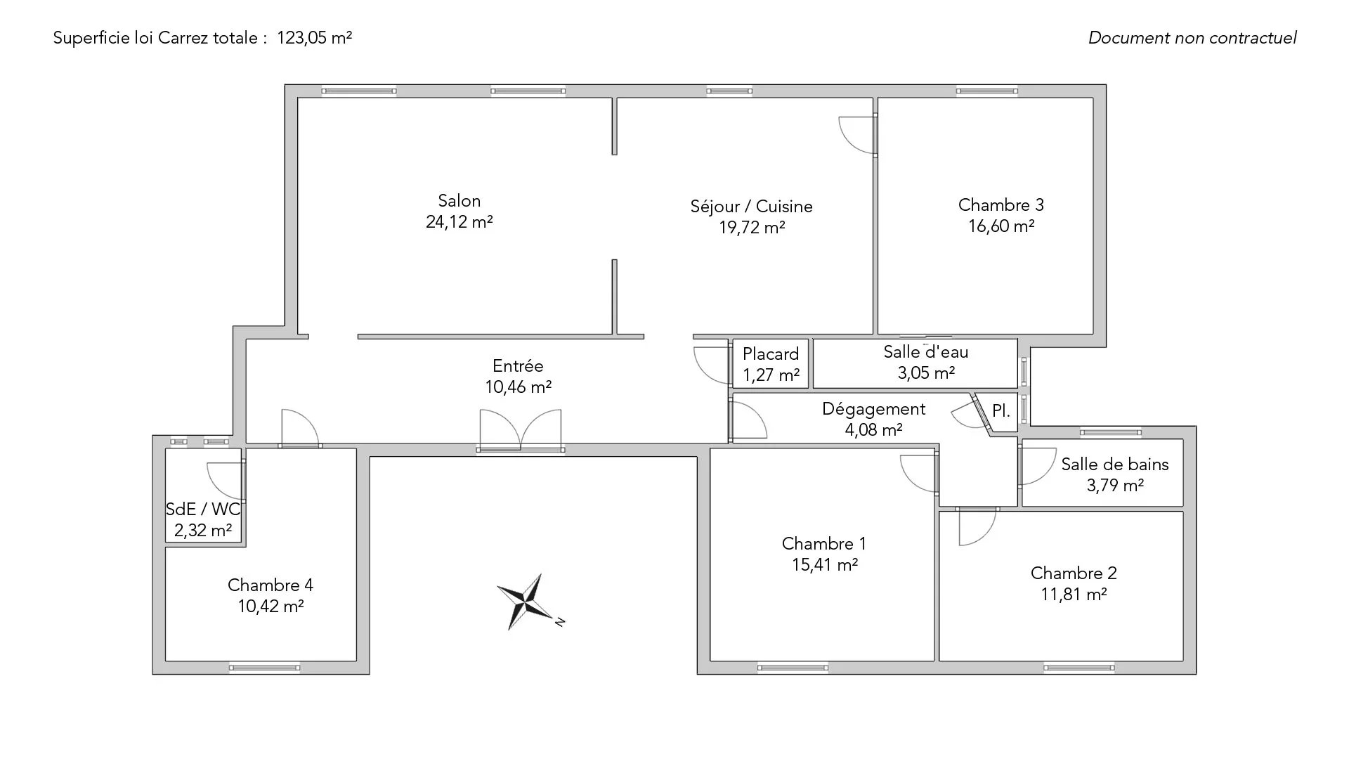
- Habitable : 124,09 m²
- 6 pièces
- 4 chambres
- 1 salle de bains
- 2 salles de douche
- Exposition Sud-ouest
- Bon état
Ce qui nous séduit
- Lumineux
- Ascenseur
- Vue dégagée
On vous en dit plus
Réglementations & éléments financiers
Les informations sur les risques auxquels ce bien est exposé sont disponibles sur le site Géorisques : www.georisques.gouv.fr
| Diagnostics |
|---|
Logement à consommation énergétique excessive : classe G
Montant estimé des dépenses annuelles d’énergie pour un usage standard : entre 4 620,00 € et 6 280,00 € /an (abonnement compris).
| Éléments financiers |
|---|
Taxe foncière : 1 803,00 € /an
Détails de l’intérieur & de l’extérieur
| Pièce | Surface | Détail |
|---|---|---|
| 1x Chambre | 15.41 m² | |
| 1x Chambre | 11.81 m² | |
| 1x Salle de bains | 3.79 m² | |
| 1x Toilettes | 1.04 m² | |
| 1x Dégagement | 4.08 m² | |
| 1x Entrée | 10.46 m² | |
| 1x Salon | 24.12 m² | |
| 1x Séjour/cuisine | 19.72 m² | |
| 1x Chambre | 16.6 m² | |
| 1x Salle de douche | 3.05 m² | |
| 1x Placard | 1.27 m² | |
| 1x Chambre | 10.42 m² | |
| 1x Salle de douche / toilettes | 2.32 m² |
Prestations
Bâtiment
| Bâtiment |
|---|
-
Construit en : 1900
Rencontrez votre agence
Simulateur de financement
Calculez le montant des mensualités de votre prêt immobilier correspondant à l'emprunt que vous souhaitez effectuer.
Prix du bien HAI
1 580 000 €
€
par mois
Vous devez vendre pour acheter ?
Nos consultants immobiliers se tiennent à votre disposition pour réaliser une estimation de la valeur de votre bien. Toutes nos estimations sont offertes.
Je fais estimer mon bienUn lieu de vie à votre image
Junot vous fait visiter les quartiers dans lesquels nos agences vous accueillent, et vous présente les spécificités et bonnes adresses.
Parcourir les quartiers












