Faisons un tour d'horizon
Référence de l’annonce : 3305ABBRAV
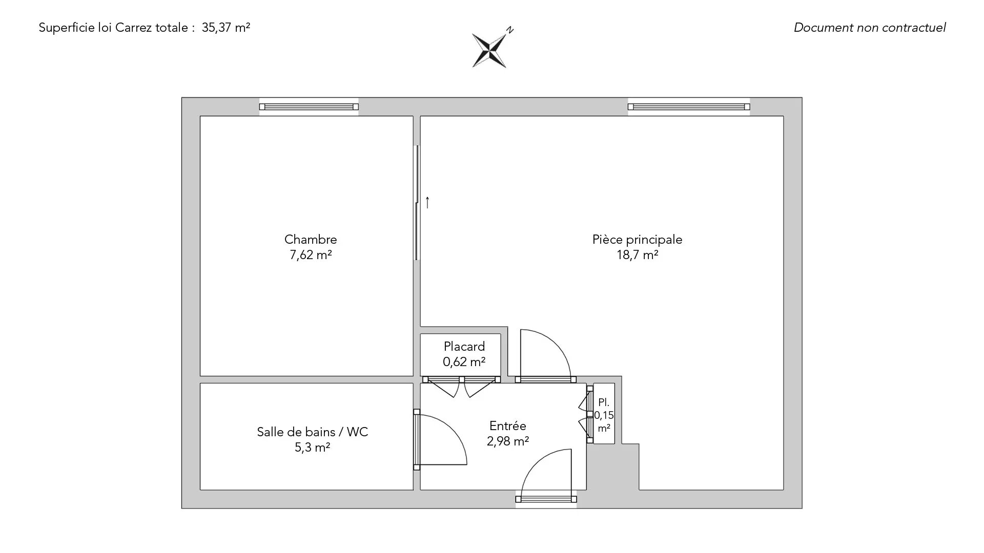
Idéalement situé, à quelques pas des commerces, des métros et des animations. Dans une petite rue calme et à l'abri des regards: rue Hégésippe Moreau, au deuxième étage par ascenseur d'une copropriété récente de grand standing (2013), "la Factory", très bien entretenue et sécurisée, joli deux pièces de 35,37m² loi Carrez.
Il comporte une entrée, un séjour, une cuisine ouverte aménagée et équipée, une chambre et une salle de bains avec toilettes.
Tout collectif. Proche toutes les commodités.
EXCLUSIVITÉ.
- Habitable : 35,37 m²
- 2 pièces
- 1 chambre
- 1 salle de bains
- Étage 2/6
- Exposition Nord
- Bon état
Ce qui nous séduit
- Adresse très recherchée
- Lumineux
- Calme
- Ascenseur
- Vue dégagée
On vous en dit plus
Réglementations & éléments financiers
Les informations sur les risques auxquels ce bien est exposé sont disponibles sur le site Géorisques : www.georisques.gouv.fr
| Diagnostics |
|---|
Consommation énergie finale : C - 157 kWh/m²/an.
Montant estimé des dépenses annuelles d’énergie pour un usage standard : entre 470,00 € et 690,00 € /an (abonnement compris).
| Éléments financiers |
|---|
Taxe foncière : 1 348,00 € /an
Détails de l’intérieur & de l’extérieur
| Pièce | Surface | Détail |
|---|---|---|
| 1x Entrée | 2.98 m² |
Étage : 2ème Revêtement : Parquet |
| 1x Placard | 0.62 m² | Étage : 2ème |
| 1x Placard | 0.15 m² | Étage : 2ème |
| 1x Salle de bains / toilettes | 5.3 m² |
Étage : 2ème Revêtement : Carrelage |
| 1x Séjour/cuisine | 18.7 m² |
Étage : 2ème Revêtement : Parquet Plafond : 2.5m |
| 1x Chambre | 7.62 m² |
Étage : 2ème Revêtement : Parquet |
Prestations
Bâtiment & Copropriété
| Bâtiment |
|---|
-
Construit en : 2013
-
Type : Béton
-
Nombre d'étages : 6
-
Niveau de qualité : Normal
| Copropriété |
|---|
Montant moyen annuel de la quote part de charges courantes : 2 556 €
Procédure en cours : Non
Rencontrez votre agence
Simulateur de financement
Calculez le montant des mensualités de votre prêt immobilier correspondant à l'emprunt que vous souhaitez effectuer.
Prix du bien HAI
440 000 €
€
par mois
Vous devez vendre pour acheter ?
Nos consultants immobiliers se tiennent à votre disposition pour réaliser une estimation de la valeur de votre bien. Toutes nos estimations sont offertes.
Je fais estimer mon bienUn lieu de vie à votre image
Junot vous fait visiter les quartiers dans lesquels nos agences vous accueillent, et vous présente les spécificités et bonnes adresses.
Parcourir les quartiers












