Faisons un tour d'horizon
Référence de l’annonce : 1140POIPLA
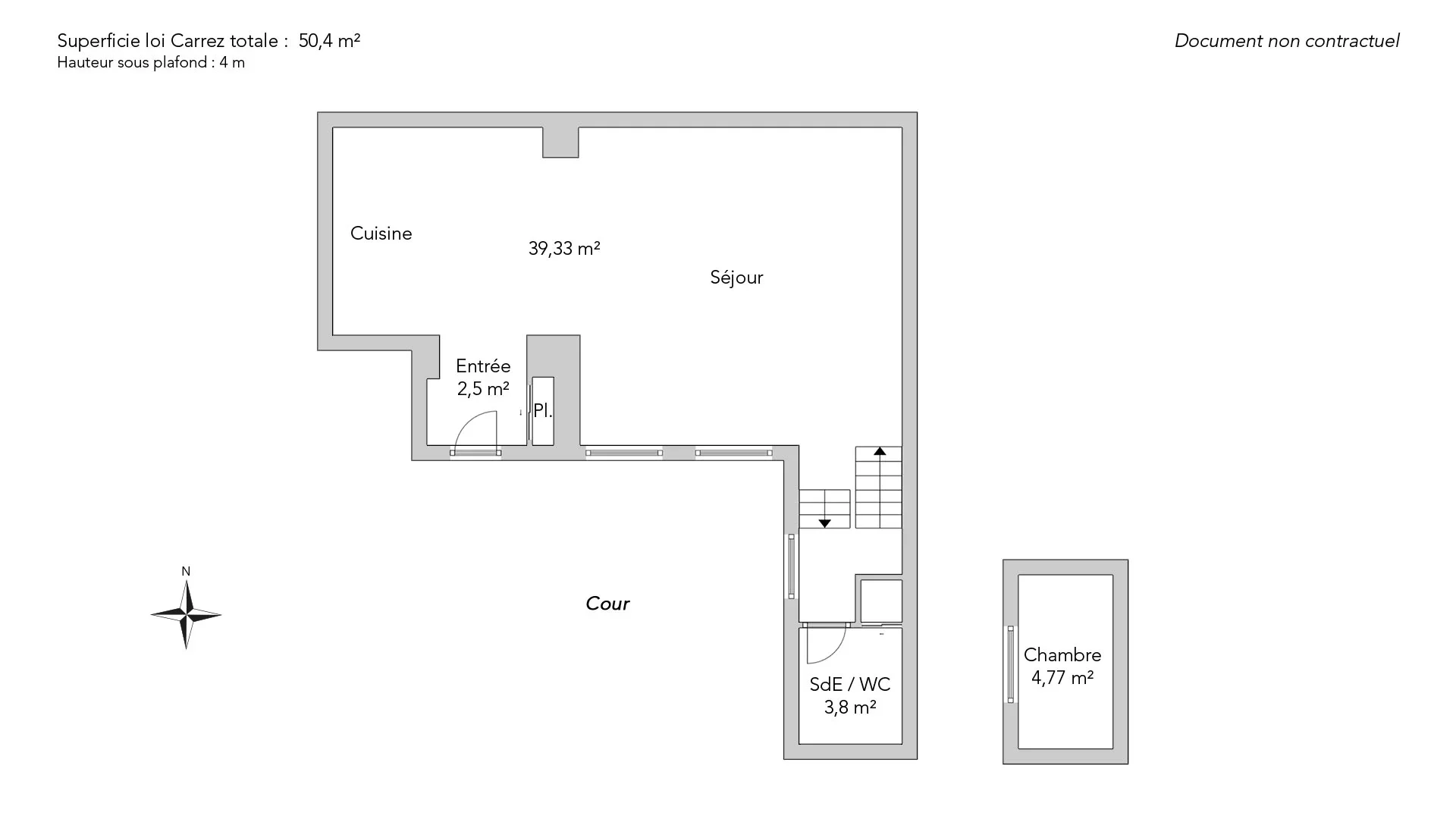
Au cœur du quartier Sentier, rue de Cléry, appartement de type loft de 50,40m² Carrez, 52,22 au sol, en rez-de-chaussée, parfaitement au calme sur cour végétalisée.
Le bien comporte une entrée, une belle pièce de vie de 39,33m² avec cuisine ouverte, une chambre en mezzanine et une salle de douche avec toilettes (sanibroyeur).
Cet appartement offre de beaux volumes avec une hauteur sous plafond de 4m et beaucoup de potentiel.
Rafraîchissement à prévoir.
Ce bien atypique vous séduira par son cachet, ses volumes et son emplacement central au cœur du 2e arrondissement, à proximité immédiate des commerces et des transports.
Professions libérales possibles.
- Habitable : 50,40 m² Total : 52,22 m²
- 2 pièces
- 1 chambre
- 1 salle de douche
- Exposition Sud
- À rafraîchir
Ce qui nous séduit
- Calme
On vous en dit plus
Réglementations & éléments financiers
Les informations sur les risques auxquels ce bien est exposé sont disponibles sur le site Géorisques : www.georisques.gouv.fr
| Diagnostics |
|---|
Consommation énergie finale : a - 177 kWh/m²/an.
Logement à consommation énergétique excessive : classe F
Montant estimé des dépenses annuelles d’énergie pour un usage standard : entre 1 590,00 € et 2 190,00 € /an (abonnement compris).
Prix moyen des énergies indexées au 01/01/2021.
| Éléments financiers |
|---|
Détails de l’intérieur & de l’extérieur
| Pièce | Surface | Détail |
|---|---|---|
| 1x Entrée | 2.5 m² |
Étage : Rez-de-chaussée Revêtement : Carrelage |
| 1x Séjour/cuisine | 39.33 m² |
Étage : Rez-de-chaussée Exposition : Sud Revêtement : Carrelage Plafond : 4m |
| 1x Chambre | 4.77 m² |
Étage : Rez-de-chaussée Exposition : Ouest Revêtement : Moquette Plafond : 2.12m |
| 1x Salle de douche / toilettes | 3.8 m² |
Étage : Rez-de-chaussée Revêtement : Carrelage Plafond : 2.1m |
Prestations
Bâtiment & Copropriété
| Bâtiment |
|---|
-
Construit en : 1800
-
Nombre d'étages : 6
| Copropriété |
|---|
26 lots d'habitation
Montant moyen annuel de la quote part de charges courantes : 2 160 €
Procédure en cours : Non
Rencontrez votre agence
Simulateur de financement
Calculez le montant des mensualités de votre prêt immobilier correspondant à l'emprunt que vous souhaitez effectuer.
Prix du bien HAI
450 000 €
€
par mois
Vous devez vendre pour acheter ?
Nos consultants immobiliers se tiennent à votre disposition pour réaliser une estimation de la valeur de votre bien. Toutes nos estimations sont offertes.
Je fais estimer mon bienUn lieu de vie à votre image
Junot vous fait visiter les quartiers dans lesquels nos agences vous accueillent, et vous présente les spécificités et bonnes adresses.
Parcourir les quartiers













