Faisons un tour d'horizon
Référence de l’annonce : 5795JASPAS
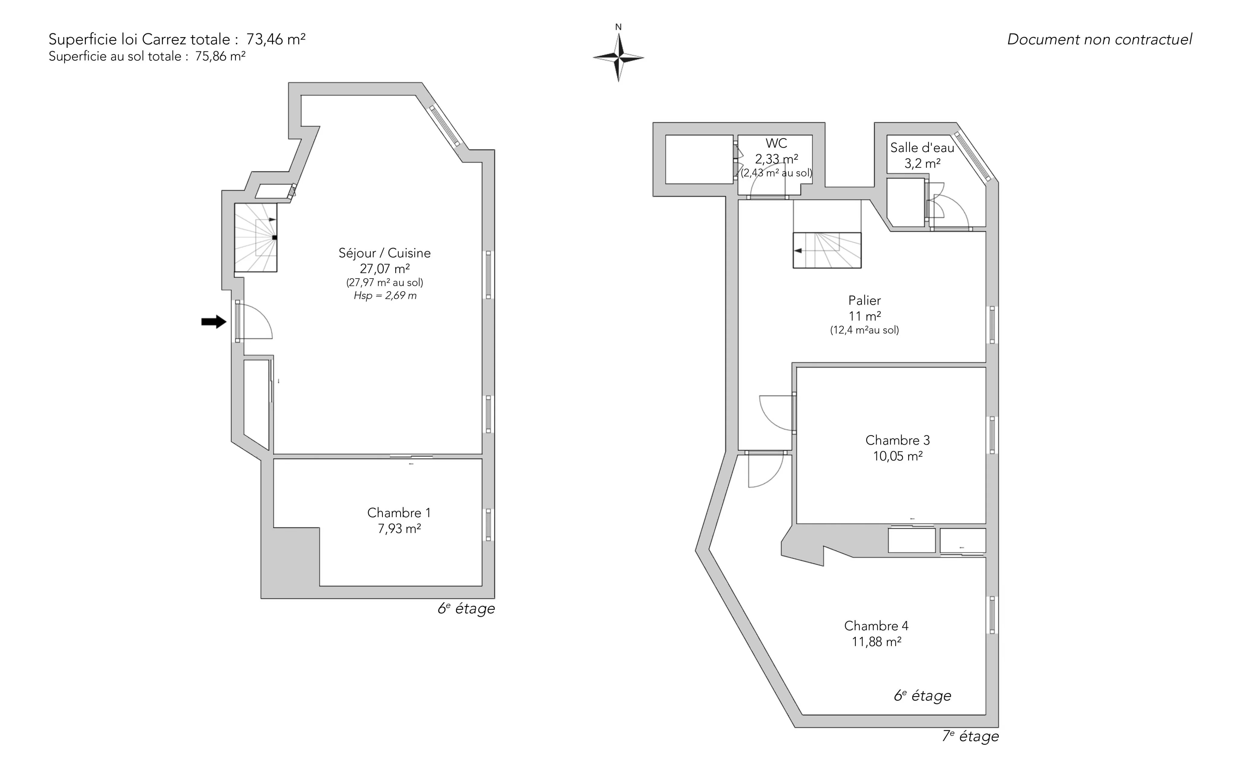
Niché aux deux derniers étages d’un bel immeuble Art déco avec ascenseur, parfaitement entretenu, ce duplex de 73,46m² séduit par son caractère, sa luminosité et son calme absolu.
Orienté à l'est, l’appartement profite d’une belle lumière dès le matin et d’une vue dégagée, notamment sur la tour Eiffel.
Son plan optimisé comporte une entrée qui ouvre sur une cuisine contemporaine et fonctionnelle s’intégrant dans l’espace de vie du séjour. Une chambre complète ce niveau.
On monte à l’espace nuit par un très bel escalier en colimaçon composé de deux chambres, un espace bureau ainsi qu'une salle de douche et des toilettes séparées.
L’appartement procure une véritable sensation de maison sur les toits.
Une cave de 14m², rare par sa taille, complète ce bien.
- Habitable : 73,46 m² Total : 75,86 m²
- 4 pièces
- 3 chambres
- 1 salle de douche
- Étage 7/8
- Exposition Est
- Excellent état
Ce qui nous séduit
- Dernier étage
- Vue monument historique
- Calme
- Ascenseur
- Cave
- Vue dégagée
On vous en dit plus
Réglementations & éléments financiers
Les informations sur les risques auxquels ce bien est exposé sont disponibles sur le site Géorisques : www.georisques.gouv.fr
| Diagnostics |
|---|
Consommation énergie finale : E - 300.6 kWh/m²/an.
Montant estimé des dépenses annuelles d’énergie pour un usage standard : entre 2 020,00 € et 2 740,00 € /an (abonnement compris).
Prix moyen des énergies indexées au 01/01/2021.
| Éléments financiers |
|---|
Détails de l’intérieur & de l’extérieur
| Pièce | Surface | Détail |
|---|---|---|
| 1x Cave | ||
| 1x Séjour/cuisine | 27.07 m² | Étage : 6ème |
| 1x Chambre | 7.93 m² | Étage : 6ème |
| 1x Palier | 11 m² | Étage : 7ème |
| 1x Chambre | 10.05 m² | Étage : 7ème |
| 1x Chambre | 11.88 m² | Étage : 7ème |
| 1x Salle de douche | 3.2 m² | Étage : 7ème |
| 1x Toilettes | 2.33 m² | Étage : 7ème |
Prestations
Bâtiment & Copropriété
| Bâtiment |
|---|
-
Construit en : 1927
-
Type : Pierre de taille
-
Nombre d'étages : 8
-
Niveau de qualité : Standing
| Copropriété |
|---|
30 lots d'habitation
Montant moyen annuel de la quote part de charges courantes : 1 572 €
Procédure en cours : Non
Rencontrez votre agence
Simulateur de financement
Calculez le montant des mensualités de votre prêt immobilier correspondant à l'emprunt que vous souhaitez effectuer.
Prix du bien HAI
900 000 €
€
par mois
Vous devez vendre pour acheter ?
Nos consultants immobiliers se tiennent à votre disposition pour réaliser une estimation de la valeur de votre bien. Toutes nos estimations sont offertes.
Je fais estimer mon bienUn lieu de vie à votre image
Junot vous fait visiter les quartiers dans lesquels nos agences vous accueillent, et vous présente les spécificités et bonnes adresses.
Parcourir les quartiers











