Faisons un tour d'horizon
Référence de l’annonce : 2012VHUVID
Avenue Foch, au dernier étage par ascenseur d’une copropriété de très grand standing avec service de conciergerie 24/24, superbe appartement traversant entièrement rénové.
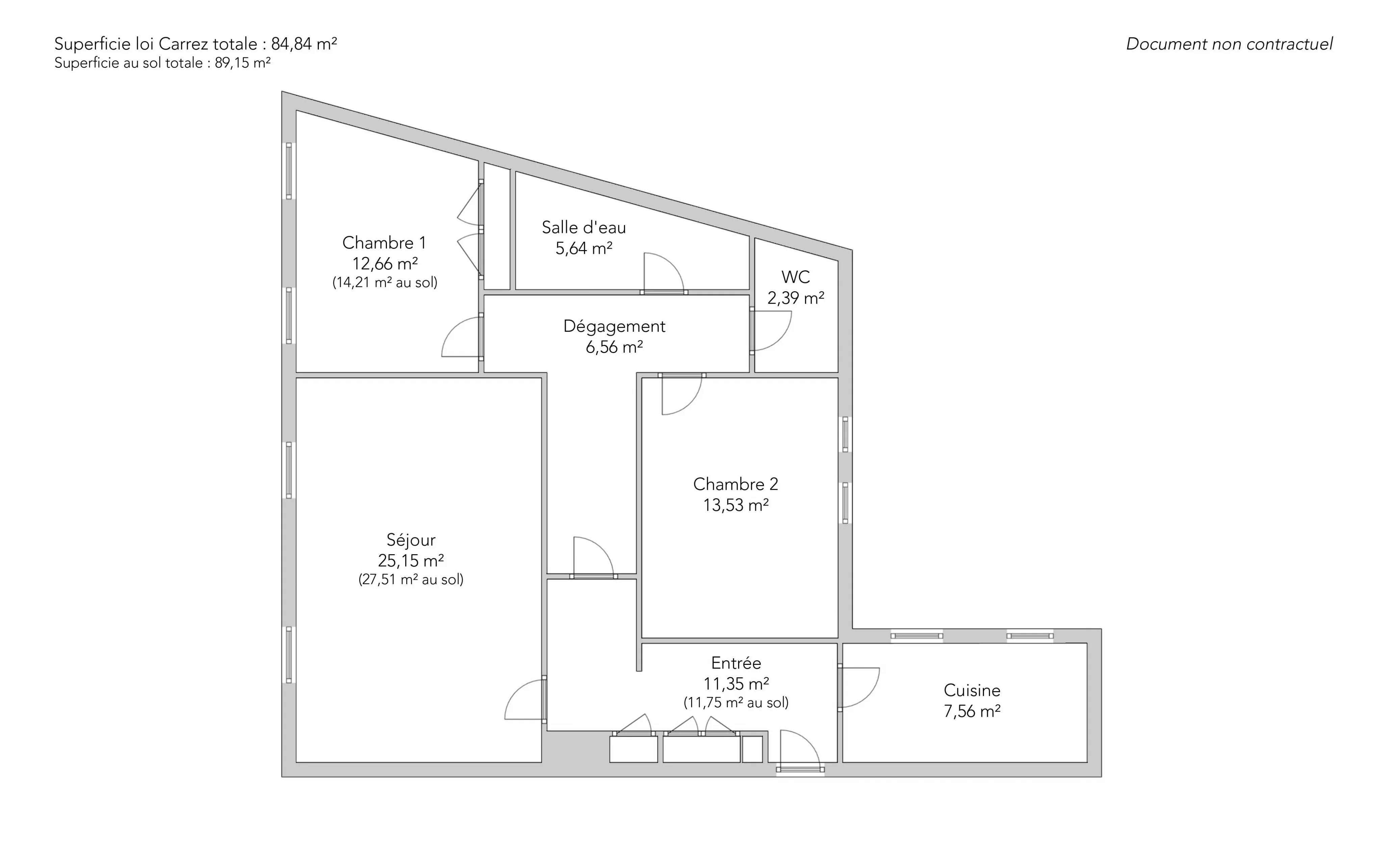
D’une superficie de 84,84m² loi Carrez (89,15m² au sol), il se compose d’un vaste salon / salle à manger baigné de lumière, offrant trois fenêtres avec une agréable vue dégagée sur l’avenue Foch et le bois de Boulogne.
Une cuisine indépendante, entièrement équipée et aménagée, bénéficiant d’une vue Tour Eiffel, tout comme l’une des chambres.
L’espace nuit comprend deux grandes chambres avec rangements sur mesure, une élégante salle de douche avec grande douche à l’italienne, ainsi que des toilettes séparées.
L’appartement séduit par son plan parfaitement optimisé, sa rénovation de qualité et ses prestations soignées.
À proximité immédiate des transports, commerces et écoles.
Une cave complète ce bien.
EXCLUSIVITÉ.
- Habitable : 84,84 m² Total : 89,15 m²
- 4 pièces
- 2 chambres
- 1 salle de douche
- Étage 6/6
- Exposition Sud-est, Nord-ouest
- Bon état
Ce qui nous séduit
- Vue exceptionnelle
- Adresse très recherchée
- Dernier étage
- Gardien
- Vue monument historique
- Lumineux
- Ascenseur
- Cave
- Vue dégagée
On vous en dit plus
Réglementations & éléments financiers
Les informations sur les risques auxquels ce bien est exposé sont disponibles sur le site Géorisques : www.georisques.gouv.fr
| Diagnostics |
|---|
Consommation énergie finale : a - 115 kWh/m²/an.
Montant estimé des dépenses annuelles d’énergie pour un usage standard : entre 1 740,00 € et 2 370,00 € /an (abonnement compris).
Prix moyen des énergies indexées au 01/01/2021.
| Éléments financiers |
|---|
Taxe foncière : 1 972,00 € /an
Détails de l’intérieur & de l’extérieur
| Pièce | Surface | Détail |
|---|---|---|
| 1x Cave | ||
| 1x Entrée | 11.35 m² | Étage : 6ème |
| 1x Séjour | 25.15 m² | Étage : 6ème |
| 1x Dégagement | 6.56 m² | Étage : 6ème |
| 1x Chambre | 12.66 m² | Étage : 6ème |
| 1x Salle de douche | 5.64 m² | Étage : 6ème |
| 1x Toilettes | 2.39 m² | Étage : 6ème |
| 1x Chambre | 13.53 m² | Étage : 6ème |
| 1x Cuisine | 7.56 m² | Étage : 6ème |
Prestations
Bâtiment & Copropriété
| Bâtiment |
|---|
-
Construit en : 1893
-
Type : Pierre de taille
-
Nombre d'étages : 6
-
Niveau de qualité : Standing
| Copropriété |
|---|
Montant moyen annuel de la quote part de charges courantes : 4 848 €
Procédure en cours : Non
Rencontrez votre agence
Simulateur de financement
Calculez le montant des mensualités de votre prêt immobilier correspondant à l'emprunt que vous souhaitez effectuer.
Prix du bien HAI
1 150 000 €
€
par mois
Vous devez vendre pour acheter ?
Nos consultants immobiliers se tiennent à votre disposition pour réaliser une estimation de la valeur de votre bien. Toutes nos estimations sont offertes.
Je fais estimer mon bienUn lieu de vie à votre image
Junot vous fait visiter les quartiers dans lesquels nos agences vous accueillent, et vous présente les spécificités et bonnes adresses.
Parcourir les quartiers












