Faisons un tour d'horizon
Référence de l’annonce : 3472ABBBOI
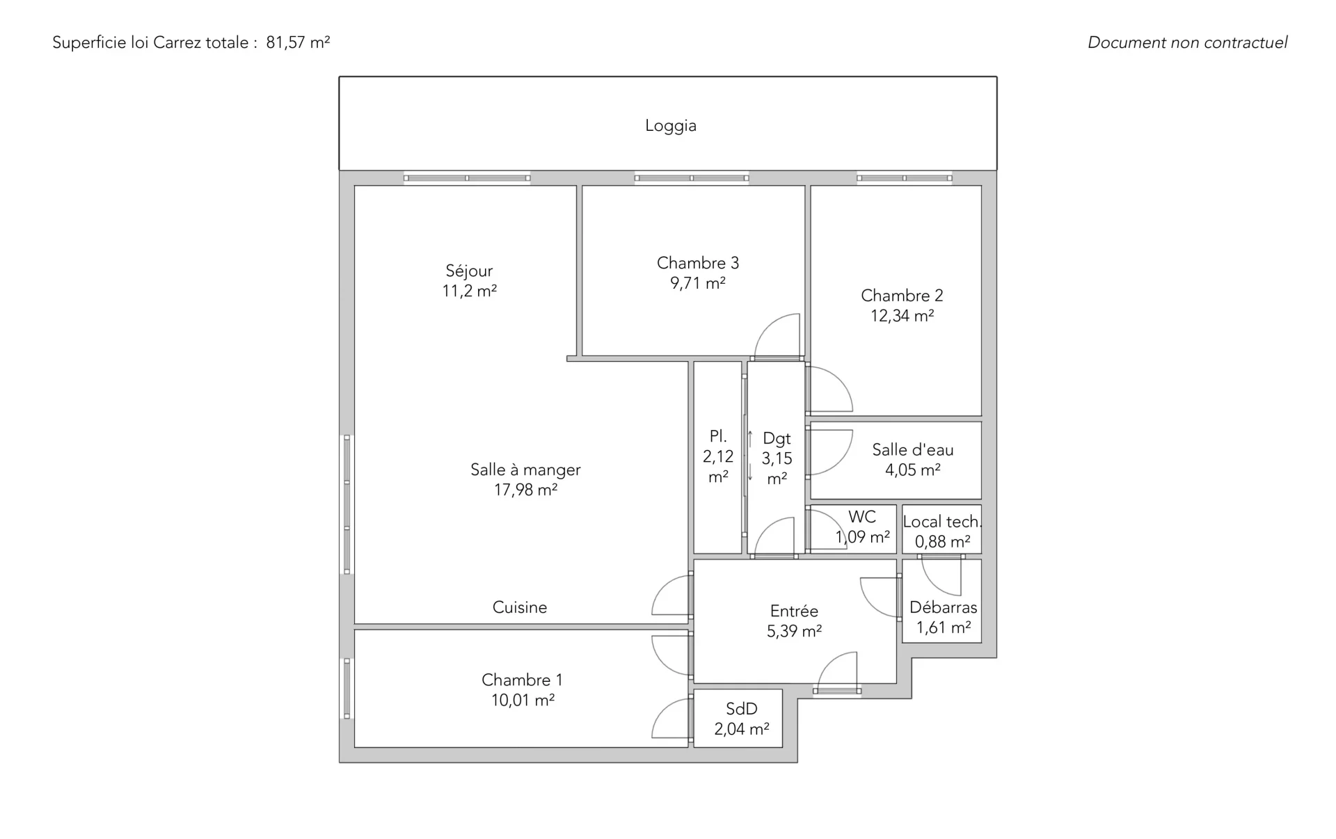
Situé au calme d'une résidence sécurisée et gardiennée au pied du métro et des commerces, au cinquième étage par ascenseur, appartement de 81,57m² loi Carrez baigné de soleil, agrémenté d'un grand balcon offrant des vues dégagées sur le Sacré-Cœur.
Son plan parfaitement optimisé comprend une entrée, un séjour, une cuisine, trois chambres, une salle de bains (possibilité d'une seconde salle de douche).
Une cave complète ce bien à rénover.
- Habitable : 81,57 m²
- 4 pièces
- 2 chambres
- 1 salle de bains
- Étage 5/9
- Exposition Ouest, Sud
- À rénover
Ce qui nous séduit
- Gardien
- Lumineux
- Calme
- Ascenseur
- Vue dégagée
On vous en dit plus
Réglementations & éléments financiers
Les informations sur les risques auxquels ce bien est exposé sont disponibles sur le site Géorisques : www.georisques.gouv.fr
| Diagnostics |
|---|
Consommation énergie finale : D - 185 kWh/m²/an.
Montant estimé des dépenses annuelles d’énergie pour un usage standard : entre 1 190,00 € et 1 650,00 € /an (abonnement compris).
Prix moyen des énergies indexées au 01/01/2023.
| Éléments financiers |
|---|
Taxe foncière : 1 352,00 € /an
Détails de l’intérieur & de l’extérieur
| Pièce | Surface | Détail |
|---|---|---|
| 1x Cellier | 2.04 m² | |
| 1x Local technique | 0.88 m² | |
| 1x Séjour | 17.98 m² | Étage : 5ème |
| 1x Salle à manger | 11.2 m² | Étage : 5ème |
| 1x Cuisine | 10.01 m² | Étage : 5ème |
| 1x Chambre | 12.34 m² | Étage : 5ème |
| 1x Chambre | 9.71 m² | Étage : 5ème |
| 1x Salle de bains | 4.05 m² | Étage : 5ème |
| 1x Toilettes | 1.09 m² | Étage : 5ème |
| 1x Débarras | 1.61 m² | Étage : 5ème |
| 1x Dégagement | 3.15 m² | Étage : 5ème |
| 1x Placard | 2.12 m² | Étage : 5ème |
Prestations
Bâtiment & Copropriété
| Bâtiment |
|---|
-
Construit en : 1970
-
Nombre d'étages : 9
-
Niveau de qualité : Normal
| Copropriété |
|---|
Montant moyen annuel de la quote part de charges courantes : 2 640 €
Procédure en cours : Non
Rencontrez votre agence
Simulateur de financement
Calculez le montant des mensualités de votre prêt immobilier correspondant à l'emprunt que vous souhaitez effectuer.
Prix du bien HAI
610 000 €
€
par mois
Vous devez vendre pour acheter ?
Nos consultants immobiliers se tiennent à votre disposition pour réaliser une estimation de la valeur de votre bien. Toutes nos estimations sont offertes.
Je fais estimer mon bienUn lieu de vie à votre image
Junot vous fait visiter les quartiers dans lesquels nos agences vous accueillent, et vous présente les spécificités et bonnes adresses.
Parcourir les quartiers










