Appartement
Paris 8e - AVENUE MONTAIGNE

3 250 000 €

Honoraires à la charge du vendeur

Barème des prestations Simuler votre financement

Ce bien vous plaît ?

Faisons un tour d'horizon

Référence de l’annonce : 786JFPILL

Idéalement situé sur la prestigieuse avenue Montaigne.

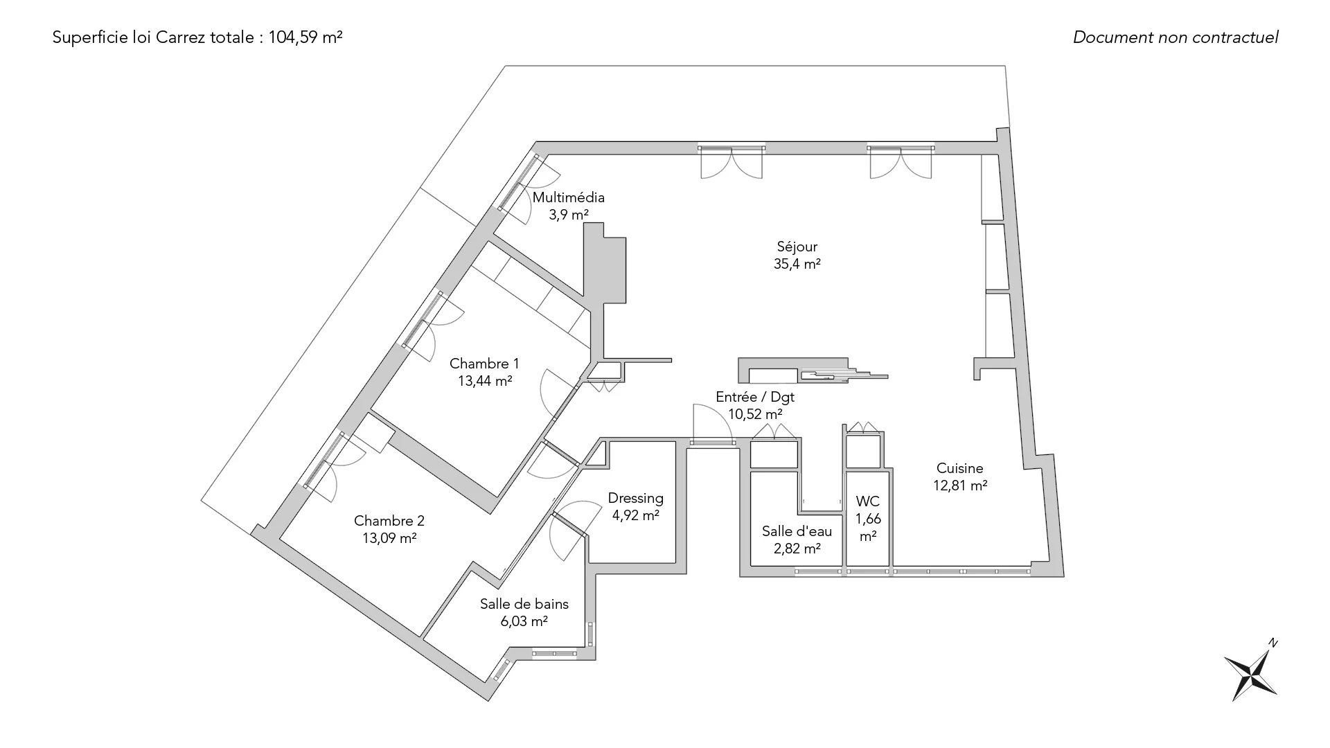
Au septième et dernier étage par ascenseur d'un immeuble de grand standing gardienné et sécurisé. Cet appartement de 104,59m² loi Carrez, a été entièrement rénové par architecte. Climatisé, il comporte une entrée, un salon-salle à manger ouvrant sur un large balcon, une suite de maître avec dressing et salle de bains, une deuxième chambre, une salle de douche et des toilettes invités.

Une cave complète ce bien rare.
Un double box est disponible en supplément du prix.

  • Habitable : 104,59 m²
  • 4 pièces
  • 2 chambres
  • 1 salle de bains
  • 1 salle de douche
  • Exposition Sud-est, Nord-ouest
  • Neuf

Ce qui nous séduit

  • Vue exceptionnelle
  • Balcon/Terrasse
  • Adresse très recherchée
  • Vue monument historique
  • Lumineux
  • Traversant
  • Ascenseur
  • Cave
  • Vue dégagée

On vous en dit plus

Réglementations & éléments financiers

Les informations sur les risques auxquels ce bien est exposé sont disponibles sur le site Géorisques : www.georisques.gouv.fr


Diagnostics

DPE Graph GES Graph

Consommation énergie finale : C - 117 kWh/m²/an.
Montant estimé des dépenses annuelles d’énergie pour un usage standard : entre 1 719,00 € et 2 326,00 € /an (abonnement compris).
Prix moyen des énergies indexées au 01/01/2021.


Éléments financiers
Montant moyen annuel de la quote part de charges courantes : 6 304 €

Taxe foncière : 2 366,00 € /an

Détails de l’intérieur & de l’extérieur

Pièce Surface Détail
1x Entrée 10.52 m²
1x Séjour 35.4 m²
1x Bureau 3.9 m²
1x Chambre 13.44 m²
1x Chambre 13.09 m²
1x Cuisine 12.81 m²
1x Dressing 4.92 m²
1x Salle de bains 6.03 m²
1x Salle de douche 2.82 m²
1x Toilettes 1.66 m²
1x Cave
1x Box
1x Balcon

Prestations

☑ Internet
☑ Air conditionné
☑ Alarme
☑ Ascenseur
☑ Double vitrage
☑ Interphone
☑ Porte blindée
☑ Fenêtres coulissantes
☑ Volets roulants électriques
☑ Vidéophone
☑ Domotique
☑ Fibre optique
☑ Concierge

Bâtiment & Copropriété

Bâtiment
  • Construit en : 1955
  • Niveau de qualité : Grand Luxe

Copropriété

Montant moyen annuel de la quote part de charges courantes : 6 304 €
Procédure en cours : Non

Rencontrez votre agence

Simulateur de financement

Calculez le montant des mensualités de votre prêt immobilier correspondant à l'emprunt que vous souhaitez effectuer.

Prix du bien HAI

3 250 000 €

Ce calcul prend en compte des droits d'enregistrement de 7 %.

par mois

Ceci est une simulation, seule votre banque peut vous donner une valeur précise. Nos consultants sont à votre disposition pour vous accompagner.
Être recontacté

Ces biens pourraient aussi vous intéresser

    Vous devez vendre pour acheter ?

    Nos consultants immobiliers se tiennent à votre disposition pour réaliser une estimation de la valeur de votre bien. Toutes nos estimations sont offertes.

    Je fais estimer mon bien

    Un lieu de vie à votre image

    Junot vous fait visiter les quartiers dans lesquels nos agences vous accueillent, et vous présente les spécificités et bonnes adresses.

    Parcourir les quartiers
Je souhaite visiter
Souhaitez-vous vraiment quitter la page ?
Souhaitez-vous vraiment quitter la page ?
Souhaitez-vous vraiment quitter la page ?
Souhaitez-vous vraiment quitter la page ?
Souhaitez-vous vraiment quitter la page ?
Souhaitez-vous vraiment quitter la page ?
Souhaitez-vous vraiment quitter la page ?
Souhaitez-vous vraiment quitter la page ?
Souhaitez-vous vraiment quitter la page ?
Souhaitez-vous vraiment quitter la page ?
Souhaitez-vous vraiment quitter la page ?