Faisons un tour d'horizon
Référence de l’annonce : 3277GREANN
Situé au cœur du prestigieux Triangle d’Or.
Au deuxième étage d’un élégant immeuble haussmannien par ascenseur avec service de conciergerie, cet appartement de caractère de 155,25m² loi Carrez offre tout le charme de l’ancien: parquet point de Hongrie, moulures, cheminées et belle hauteur sous plafond.
Ce bien comporte une double réception lumineuse, une suite parentale avec salle de bains, deux chambres supplémentaires, une salle de douche, une cuisine séparée et deux toilettes.
Il bénéficie d'un système de climatisation pour un confort optimal.
Une cave complète cette offre.
En option deux chambres de service dans la copropriété.
- Habitable : 155,25 m²
- 6 pièces
- 3 chambres
- 2 salles de bains
- Étage 2/5
- Cheminée
- Exposition Nord-ouest
- À rafraîchir
Ce qui nous séduit
- Adresse très recherchée
- Gardien
- Lumineux
- Calme
- Ascenseur
- Cave
- Vue dégagée
On vous en dit plus
Réglementations & éléments financiers
Les informations sur les risques auxquels ce bien est exposé sont disponibles sur le site Géorisques : www.georisques.gouv.fr
| Diagnostics |
|---|
Consommation énergie finale : D - 231 kWh/m²/an.
Montant estimé des dépenses annuelles d’énergie pour un usage standard : entre 3 530,00 € et 4 790,00 € /an (abonnement compris).
Prix moyen des énergies indexées au 01/01/2021.
| Éléments financiers |
|---|
Détails de l’intérieur & de l’extérieur
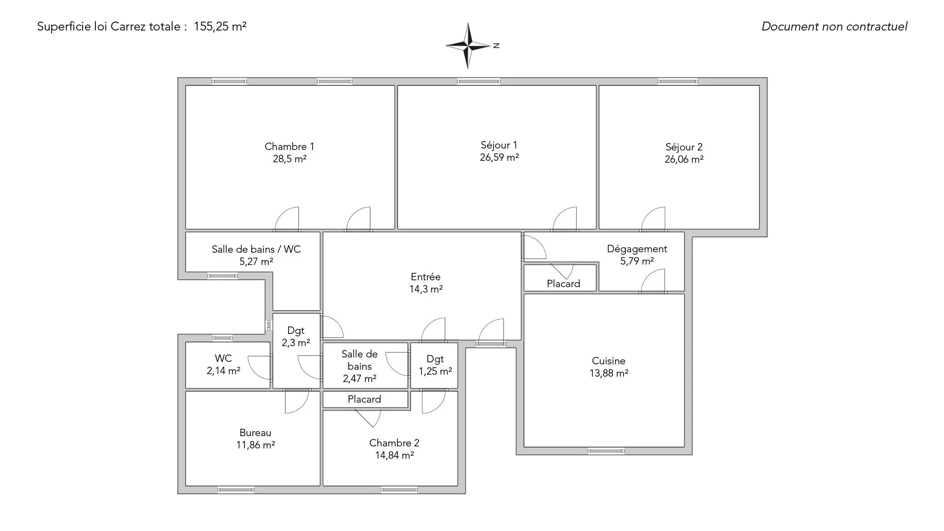
| Pièce | Surface | Détail |
|---|---|---|
| 1x Cave | ||
| 1x Entrée | 14.3 m² |
Étage : 2ème Revêtement : Parquet |
| 1x Séjour | 26.59 m² |
Étage : 2ème Exposition : Nord-ouest Revêtement : Parquet |
| 1x Séjour | 26.06 m² |
Étage : 2ème Exposition : Nord-ouest Revêtement : Parquet |
| 1x Cuisine | 13.88 m² |
Étage : 2ème Revêtement : Carrelage |
| 1x Chambre | 28.5 m² |
Étage : 2ème Revêtement : Parquet |
| 1x Salle de bains / toilettes | 5.27 m² |
Étage : 2ème Revêtement : Carrelage |
| 1x Toilettes | 2.14 m² |
Étage : 2ème Revêtement : Parquet |
| 1x Chambre | 11.86 m² |
Étage : 2ème Revêtement : Parquet |
| 1x Chambre | 14.84 m² |
Étage : 2ème Revêtement : Parquet |
| 1x Salle de bains | 2.47 m² |
Étage : 2ème Revêtement : Carrelage |
| 1x Dégagement | 5.79 m² |
Étage : 2ème Revêtement : Parquet |
| 1x Dégagement | 2.3 m² |
Étage : 2ème Revêtement : Parquet |
| 1x Dégagement | 1.25 m² |
Étage : 2ème Revêtement : Parquet |
Prestations
Bâtiment & Copropriété
| Bâtiment |
|---|
-
Construit en : 1880
-
Nombre d'étages : 5
| Copropriété |
|---|
Montant moyen annuel de la quote part de charges courantes : 8 040 €
Procédure en cours : Non
Rencontrez votre agence
Simulateur de financement
Calculez le montant des mensualités de votre prêt immobilier correspondant à l'emprunt que vous souhaitez effectuer.
Prix du bien HAI
3 158 000 €
€
par mois
Vous devez vendre pour acheter ?
Nos consultants immobiliers se tiennent à votre disposition pour réaliser une estimation de la valeur de votre bien. Toutes nos estimations sont offertes.
Je fais estimer mon bienUn lieu de vie à votre image
Junot vous fait visiter les quartiers dans lesquels nos agences vous accueillent, et vous présente les spécificités et bonnes adresses.
Parcourir les quartiers












