Faisons un tour d'horizon
Référence de l’annonce : 2736MONRAF
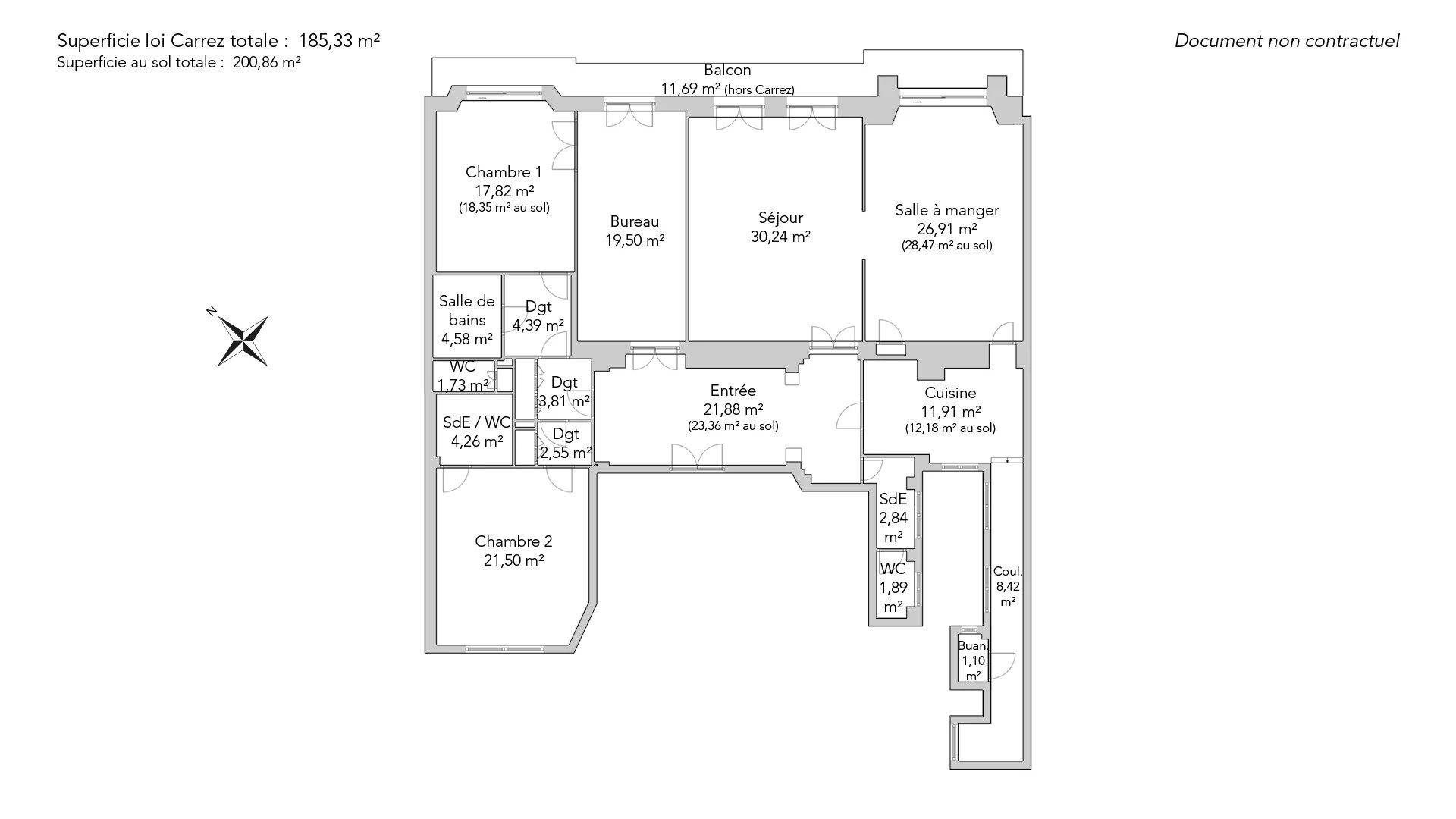
Adresse prestigieuse à proximité du parc Monceau. Au cinquième étage par ascenseur d’un immeuble en pierre de taille gardienné, cet appartement familial d’exception offre une surface de 185,33m² loi Carrez et 200,86 m² au sol.
Il s’ouvre sur une élégante galerie d’entrée menant à un vaste séjour et une salle à manger avec 3,50m de hauteur sous plafond, donnant sur un large balcon filant de 11,69m², une cuisine aménagée et équipée, un espace buanderie, une salle de douches et des toilettes invités.
Côté nuit, deux spacieuses chambres sur rue, dont une avec dressing, une salle de bain ainsi que des toilettes.
Au calme, l'appartement offre également une suite parentale sur cour avec dressing, salle de bains et toilettes.
Cet appartement en étage élevé bénéficie d'une grande luminosité, d'une agréable vue dégagée ainsi que de nombreux rangements.
Une double cave complète cette offre.
EXCLUSIVITÉ.
- Habitable : 185,33 m² Total : 200,86 m²
- 5 pièces
- 3 chambres
- 1 salle de bains
- 2 salles de douche
- Étage 5/7
- Exposition Nord-est
- Bon état
Ce qui nous séduit
- Vue exceptionnelle
- Balcon/Terrasse
- Adresse très recherchée
- Calme
- Traversant
- Ascenseur
- Vue dégagée
On vous en dit plus
Réglementations & éléments financiers
Les informations sur les risques auxquels ce bien est exposé sont disponibles sur le site Géorisques : www.georisques.gouv.fr
| Diagnostics |
|---|
Consommation énergie finale : a - 137 kWh/m²/an.
Montant estimé des dépenses annuelles d’énergie pour un usage standard : entre 2 300,00 € et 3 160,00 € /an (abonnement compris).
Prix moyen des énergies indexées au 01/01/2021.
| Éléments financiers |
|---|
Taxe foncière : 3 951,00 € /an
Détails de l’intérieur & de l’extérieur
| Pièce | Surface | Détail |
|---|---|---|
| 1x Hall d'entrée | 21.88 m² | Étage : 5ème |
| 1x Cuisine | 11.91 m² | Étage : 5ème |
| 1x Buanderie | 1.1 m² | Étage : 5ème |
| 1x Salle à manger | 26.91 m² | Étage : 5ème |
| 1x Séjour | 30.24 m² | Étage : 5ème |
| 1x Balcon | 11.69 m² | Étage : 5ème |
| 1x Couloir | 8.42 m² | Étage : 5ème |
| 1x Toilettes | 1.89 m² | Étage : 5ème |
| 1x Salle de douche | 2.84 m² | Étage : 5ème |
| 1x Chambre | 19.5 m² | Étage : 5ème |
| 1x Dégagement | 3.81 m² | Étage : 5ème |
| 1x Dégagement | 4.39 m² | Étage : 5ème |
| 1x Chambre | 17.82 m² | Étage : 5ème |
| 1x Salle de bains | 4.58 m² | Étage : 5ème |
| 1x Toilettes | 1.73 m² | Étage : 5ème |
| 1x Dégagement | 2.55 m² | Étage : 5ème |
| 1x Chambre | 21.5 m² | Étage : 5ème |
| 1x Salle de douche / toilettes | 4.26 m² | Étage : 5ème |
Prestations
Bâtiment & Copropriété
| Bâtiment |
|---|
-
Construit en : 1900
-
Type : Pierre de taille
-
Nombre d'étages : 7
-
Niveau de qualité : Standing
| Copropriété |
|---|
54 lots d'habitation
Montant moyen annuel de la quote part de charges courantes : 9 192 €
Procédure en cours : Non
Rencontrez votre agence
Simulateur de financement
Calculez le montant des mensualités de votre prêt immobilier correspondant à l'emprunt que vous souhaitez effectuer.
Prix du bien HAI
3 675 000 €
€
par mois
Vous devez vendre pour acheter ?
Nos consultants immobiliers se tiennent à votre disposition pour réaliser une estimation de la valeur de votre bien. Toutes nos estimations sont offertes.
Je fais estimer mon bienUn lieu de vie à votre image
Junot vous fait visiter les quartiers dans lesquels nos agences vous accueillent, et vous présente les spécificités et bonnes adresses.
Parcourir les quartiers









