Faisons un tour d'horizon
Référence de l’annonce : 3622STGMIC
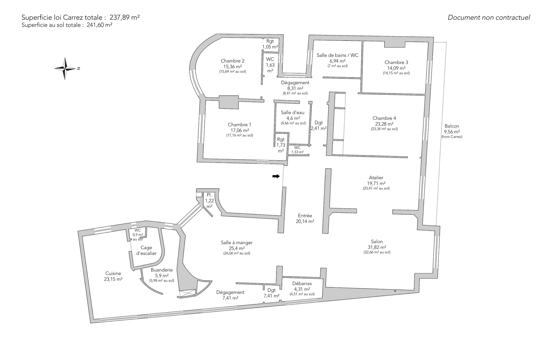
Au cœur de la Nouvelle-Athènes, au cinquième étage d’un immeuble de grand standing avec ascenseur, superbe appartement familial en bon état de 237,09m² loi Carrez, agrémenté d’un large balcon.
Son plan optimisé et sans perte d’espace comprend une galerie d’entrée, une double réception, une salle à manger, une spacieuse cuisine et des toilettes invités. L’espace nuit comporte quatre chambres confortables, une salle de douche et une salle de bains avec douche et toilettes.
Ce bien traversant bénéficie d’une triple exposition, d’une belle hauteur sous plafond de 3,05m, de nombreux rangements intégrés, d’un plan optimisé et du charme de l’ancien.
Sectorisation Condorcet. Cave et gardienne.
Emplacement idéal, à proximité des commerces et des transports en commun. Rare dans le quartier.
- Habitable : 237,89 m² Total : 241,60 m²
- 7 pièces
- 4 chambres
- 1 salle de bains
- 1 salle de douche
- Étage 5/6
- Exposition Est
- À rafraîchir
Ce qui nous séduit
- Balcon/Terrasse
- Dernier étage
- Gardien
- Lumineux
- Traversant
- Ascenseur
- Cave
On vous en dit plus
Réglementations & éléments financiers
Les informations sur les risques auxquels ce bien est exposé sont disponibles sur le site Géorisques : www.georisques.gouv.fr
| Diagnostics |
|---|
Consommation énergie finale : a - 314 kWh/m²/an.
Logement à consommation énergétique excessive : classe F
Montant estimé des dépenses annuelles d’énergie pour un usage standard : entre 6 470,00 € et 8 760,00 € /an (abonnement compris).
Prix moyen des énergies indexées au 01/01/2023.
| Éléments financiers |
|---|
Détails de l’intérieur & de l’extérieur
| Pièce | Surface | Détail |
|---|---|---|
| 1x Cave | ||
| 1x Salle à manger | 25.4 m² |
Étage : 15ème Revêtement : Parquet |
| 1x Galerie | 20.14 m² |
Étage : 5ème Revêtement : Parquet |
| 1x Séjour | 51.53 m² |
Étage : 5ème Revêtement : Parquet |
| 1x Cuisine | 23.15 m² |
Étage : 5ème Revêtement : Carrelage |
| 1x Chambre | 17.06 m² |
Étage : 5ème Revêtement : Parquet |
| 1x Chambre | 15.36 m² |
Étage : 5ème Revêtement : Parquet |
| 1x Chambre | 14.09 m² |
Étage : 5ème Revêtement : Parquet |
| 1x Chambre | 23.28 m² |
Étage : 5ème Revêtement : Parquet |
| 1x Salle de bains / toilettes | 6.94 m² |
Étage : 5ème Revêtement : Carrelage |
| 1x Salle de douche | 4.6 m² |
Étage : 5ème Revêtement : Carrelage |
| 1x Toilettes | 1.33 m² |
Étage : 5ème Revêtement : Carrelage |
| 1x Toilettes | 1.63 m² |
Étage : 5ème Revêtement : Carrelage |
| 1x Balcon | 9.56 m² | Étage : 5ème |
| 1x Dégagement | 19.17 m² |
Étage : 5ème Revêtement : Parquet |
| 1x Buanderie | 5.9 m² |
Étage : 5ème Revêtement : Carrelage |
| 1x Placard | 1.73 m² |
Étage : 5ème Revêtement : Parquet |
| 1x Placard | 1.05 m² |
Étage : 5ème Revêtement : Parquet |
| 1x Placard | 1.22 m² |
Étage : 5ème Revêtement : Parquet |
| 1x Débarras | 4.31 m² |
Étage : 5ème Revêtement : Parquet |
Prestations
Bâtiment & Copropriété
| Bâtiment |
|---|
-
Construit en : 1902
-
Nombre d'étages : 6
-
Niveau de qualité : Luxe
| Copropriété |
|---|
17 lots d'habitation
Montant moyen annuel de la quote part de charges courantes : 12 000 €
Procédure en cours : Non
Rencontrez votre agence
Simulateur de financement
Calculez le montant des mensualités de votre prêt immobilier correspondant à l'emprunt que vous souhaitez effectuer.
Prix du bien HAI
3 300 000 €
€
par mois
Vous devez vendre pour acheter ?
Nos consultants immobiliers se tiennent à votre disposition pour réaliser une estimation de la valeur de votre bien. Toutes nos estimations sont offertes.
Je fais estimer mon bienUn lieu de vie à votre image
Junot vous fait visiter les quartiers dans lesquels nos agences vous accueillent, et vous présente les spécificités et bonnes adresses.
Parcourir les quartiers











