Faisons un tour d'horizon
Référence de l’annonce : 3339BRECOU
Idéalement situé au cœur du Triangle d'Or et à deux pas de la célèbre avenue Montaigne.
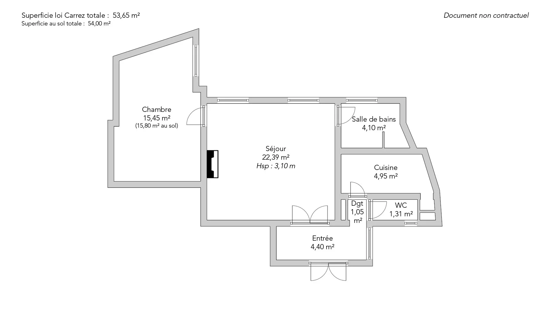
Au sein d'un bel immeuble en pierre de taille, au quatrième étage par ascenseur, appartement de 53,65m² loi Carrez.
Inondé de lumière, il comporte un séjour avec une magnifique vue dégagée, une grande chambre offrant une vue imprenable sur la cathédrale Saint-Jean-Baptiste ainsi qu'une salle de bains et des toilettes invités.
Au calme absolu, il dispose de beaux volumes avec 3m de hauteur sous plafond.
Vous serez séduit par ce bien d'exception qui a su conserver tout le charme de l'architecture haussmannienne.
Une cave complète cette offre.
- Habitable : 53,65 m² Total : 54,00 m²
- 2 pièces
- 1 chambre
- 1 salle de bains
- Étage 4/5
- Exposition Ouest
- Bon état
Ce qui nous séduit
- Adresse très recherchée
- Lumineux
- Calme
- Ascenseur
- Cave
- Vue dégagée
On vous en dit plus
Réglementations & éléments financiers
Les informations sur les risques auxquels ce bien est exposé sont disponibles sur le site Géorisques : www.georisques.gouv.fr
| Diagnostics |
|---|
Consommation énergie finale : F - 375 kWh/m²/an.
Logement à consommation énergétique excessive : classe F
Montant estimé des dépenses annuelles d’énergie pour un usage standard : entre 1 830,00 € et 2 540,00 € /an (abonnement compris).
Prix moyen des énergies indexées au 01/01/202.
| Éléments financiers |
|---|
Taxe foncière : 1 520,00 € /an
Détails de l’intérieur & de l’extérieur
| Pièce | Surface | Détail |
|---|---|---|
| 1x Cave | 10.7 m² |
Étage : Sous-sol Revêtement : Terre battue |
| 1x Entrée | 4.4 m² |
Étage : 4ème Revêtement : Parquet |
| 1x Dégagement | 1.05 m² |
Étage : 4ème Revêtement : Carrelage |
| 1x Séjour | 22.39 m² |
Étage : 4ème Revêtement : Parquet |
| 1x Cuisine | 4.95 m² |
Étage : 4ème Revêtement : Carrelage |
| 1x Salle de bains | 4.1 m² |
Étage : 4ème Revêtement : Carrelage |
| 1x Toilettes | 1.31 m² |
Étage : 4ème Revêtement : Carrelage |
| 1x Chambre | 15.45 m² |
Étage : 4ème Revêtement : Parquet |
Prestations
Bâtiment & Copropriété
| Bâtiment |
|---|
-
Nombre d'étages : 5
| Copropriété |
|---|
77 lots d'habitation
Montant moyen annuel de la quote part de charges courantes : 2 273 €
Procédure en cours : Non
Rencontrez votre agence
Simulateur de financement
Calculez le montant des mensualités de votre prêt immobilier correspondant à l'emprunt que vous souhaitez effectuer.
Prix du bien HAI
990 000 €
€
par mois
Vous devez vendre pour acheter ?
Nos consultants immobiliers se tiennent à votre disposition pour réaliser une estimation de la valeur de votre bien. Toutes nos estimations sont offertes.
Je fais estimer mon bienUn lieu de vie à votre image
Junot vous fait visiter les quartiers dans lesquels nos agences vous accueillent, et vous présente les spécificités et bonnes adresses.
Parcourir les quartiers













