Faisons un tour d'horizon
Référence de l’annonce : 3457BTLVIL/3025MON
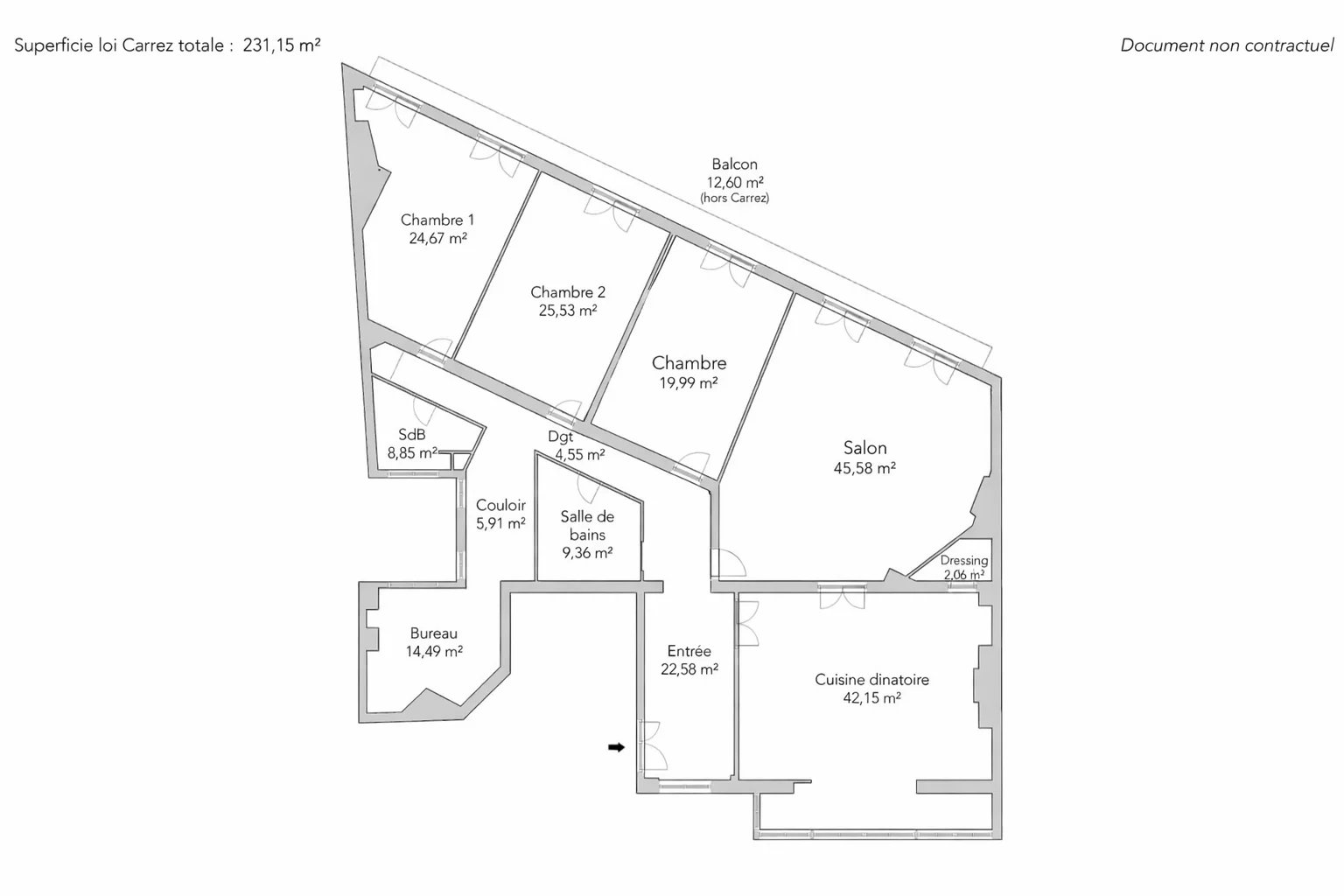
À deux pas du parc Monceau, au sein d’un magnifique immeuble haussmannien, cet appartement de 230,88m² loi Carrez situé au deuxième étage par ascenseur s’impose comme un véritable joyau de l’architecture haussmannienne.
Sa hauteur sous plafond exceptionnelle de 4 mètres confère aux espaces une prestance rare et une sensation de volume remarquable.
L’entrée en étoile distribue harmonieusement les pièces de réception, dont une spectaculaire salle à manger de 46m² avec cuisine ouverte, sublimée par un bow-window, ainsi qu’un salon de 45m² exposé plein sud et prolongé par un balcon, baigné de lumière.
La partie nuit accueille trois chambres, accompagnées de deux salles de bains. Un espace bureau complète l’ensemble et peut aisément être aménagé en buanderie, zone de rangement ou petite chambre d’appoint selon les besoins.
Un bien d’exception, alliant le cachet de l’ancien, des volumes majestueux et une adresse très recherchée à proximité immédiate du parc Monceau.
Deux caves saines de très grande taille complètent ce bien.
- Habitable : 230,88 m² Total : 234,09 m²
- 7 pièces
- 3 chambres
- 1 salle de bains
- 1 salle de douche
- Étage 2/6
- Cheminée
- Exposition Sud
- Excellent état
Ce qui nous séduit
- Balcon/Terrasse
- Adresse très recherchée
- Prestations exceptionnelles
- Gardien
- Lumineux
- Traversant
- Ascenseur
- Cave
- Vue dégagée
On vous en dit plus
Réglementations & éléments financiers
Les informations sur les risques auxquels ce bien est exposé sont disponibles sur le site Géorisques : www.georisques.gouv.fr
| Diagnostics |
|---|
Consommation énergie finale : a - 103 kWh/m²/an.
Montant estimé des dépenses annuelles d’énergie pour un usage standard : entre 2 530,00 € et 3 490,00 € /an (abonnement compris).
Prix moyen des énergies indexées au 01/01/2023.
| Éléments financiers |
|---|
Taxe foncière : 3 111,00 € /an
Détails de l’intérieur & de l’extérieur
| Pièce | Surface | Détail |
|---|---|---|
| 1x Balcon | ||
| 1x Cave | Étage : Sous-sol | |
| 1x Cave | Étage : Sous-sol | |
| 1x Entrée | 22.72 m² |
Étage : 2ème Plafond : 3.98m |
| 1x Couloir | 12.72 m² |
Étage : 2ème Plafond : 3.98m |
| 1x Salle de bains / toilettes | 11.73 m² |
Étage : 2ème Plafond : 3.5m |
| 1x Bureau | 12.53 m² |
Étage : 2ème Plafond : 3.25m |
| 1x Salle de douche | 6.1 m² |
Étage : 2ème Plafond : 3.6m |
| 1x Chambre | 23.51 m² |
Étage : 2ème Plafond : 4m |
| 1x Chambre | 25.42 m² |
Étage : 2ème Plafond : 4m |
| 1x Chambre | 20.89 m² |
Étage : 2ème Plafond : 4m |
| 1x Séjour | 45.07 m² |
Étage : 2ème Exposition : Sud Plafond : 4m |
| 1x Dressing | 1.9 m² |
Étage : 2ème Plafond : 4m |
| 1x Salle à manger/Cuisine | 46.29 m² |
Étage : 2ème Plafond : 4m |
| 1x Cellier | 2 m² |
Étage : 2ème Plafond : 4m |
Prestations
Bâtiment & Copropriété
| Bâtiment |
|---|
-
Construit en : 1860
-
Nombre d'étages : 6
-
Niveau de qualité : Grand Luxe
| Copropriété |
|---|
Montant moyen annuel de la quote part de charges courantes : 6 932 €
Procédure en cours : Non
Rencontrez votre agence
Simulateur de financement
Calculez le montant des mensualités de votre prêt immobilier correspondant à l'emprunt que vous souhaitez effectuer.
Prix du bien HAI
3 770 000 €
€
par mois
Vous devez vendre pour acheter ?
Nos consultants immobiliers se tiennent à votre disposition pour réaliser une estimation de la valeur de votre bien. Toutes nos estimations sont offertes.
Je fais estimer mon bienUn lieu de vie à votre image
Junot vous fait visiter les quartiers dans lesquels nos agences vous accueillent, et vous présente les spécificités et bonnes adresses.
Parcourir les quartiers








