Faisons un tour d'horizon
Référence de l’annonce : 5716JASPAS
Idéalement localisé dans le quartier Jasmin.
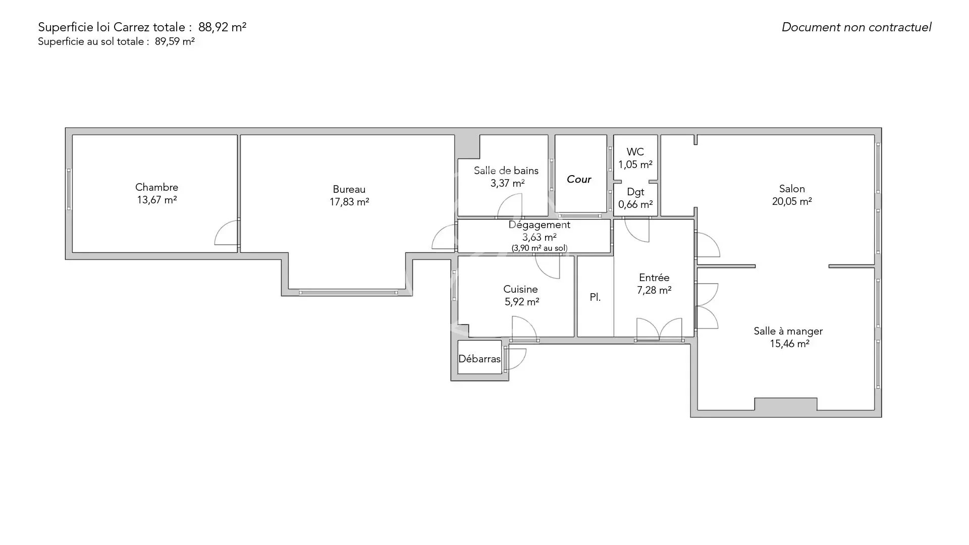
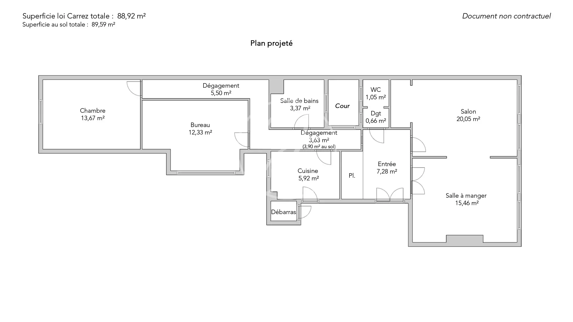
Situé au cinquième étage par ascenseur d'un bel immeuble haussmannien construit en 1870, cet élégant appartement traversant de 88,92m² loi Carrez a conservé tout le charme de l'ancien avec son parquet et ses cheminées.
Il comprend une entrée qui dessert un agréable salon, une salle à manger ouvrant un balcon filant avec vue dégagée. Deux chambres en enfilade constituent la partie nuit. Une cuisine indépendante, une salle de bains et des toilettes séparées complètent l'ensemble.
Une cave est incluse.
- Habitable : 88,92 m² Total : 89,59 m²
- 5 pièces
- 2 chambres
- 1 salle de bains
- Cheminée
- Exposition Nord-ouest
- À rafraîchir
Ce qui nous séduit
- Balcon/Terrasse
- Adresse très recherchée
- Gardien
- Calme
- Ascenseur
- Cave
- Vue dégagée
On vous en dit plus
Réglementations & éléments financiers
Les informations sur les risques auxquels ce bien est exposé sont disponibles sur le site Géorisques : www.georisques.gouv.fr
| Diagnostics |
|---|
Consommation énergie finale : E - 311 kWh/m²/an.
Logement à consommation énergétique excessive : classe F
Montant estimé des dépenses annuelles d’énergie pour un usage standard : entre 2 830,00 € et 3 840,00 € /an (abonnement compris).
Prix moyen des énergies indexées au 01/01/2021.
| Éléments financiers |
|---|
Taxe foncière : 1 626,00 € /an
Détails de l’intérieur & de l’extérieur
| Pièce | Surface | Détail |
|---|---|---|
| 1x Débarras | ||
| 1x Cave | ||
| 1x Entrée | 7.28 m² | Étage : 5ème |
| 1x Salon | 20.05 m² | Étage : 5ème |
| 1x Balcon | 6.08 m² | Étage : 5ème |
| 1x Salle à manger | 15.46 m² | Étage : 5ème |
| 1x Cuisine | 5.92 m² | Étage : 5ème |
| 1x Chambre | 17.83 m² | Étage : 5ème |
| 1x Chambre | 13.67 m² | Étage : 5ème |
| 1x Salle de bains | 3.37 m² | Étage : 5ème |
| 1x Toilettes | 1.05 m² | Étage : 5ème |
| 1x Dégagement | 3.63 m² | Étage : 5ème |
| 1x Dégagement | 0.66 m² | Étage : 5ème |
Prestations
Bâtiment & Copropriété
| Bâtiment |
|---|
-
Construit en : 1870
-
Type : Pierre de taille
-
Niveau de qualité : Normal
| Copropriété |
|---|
33 lots d'habitation
Montant moyen annuel de la quote part de charges courantes : 4 056 €
Procédure en cours : Non
Rencontrez votre agence
Simulateur de financement
Calculez le montant des mensualités de votre prêt immobilier correspondant à l'emprunt que vous souhaitez effectuer.
Prix du bien HAI
1 150 000 €
€
par mois
Vous devez vendre pour acheter ?
Nos consultants immobiliers se tiennent à votre disposition pour réaliser une estimation de la valeur de votre bien. Toutes nos estimations sont offertes.
Je fais estimer mon bienUn lieu de vie à votre image
Junot vous fait visiter les quartiers dans lesquels nos agences vous accueillent, et vous présente les spécificités et bonnes adresses.
Parcourir les quartiers










