Faisons un tour d'horizon
Référence de l’annonce : 5728JUNDEL
Idéalement situé en plein cœur des Abbesses et à proximité du théâtre de l'Atelier, superbe loft avec terrasse de 15m².
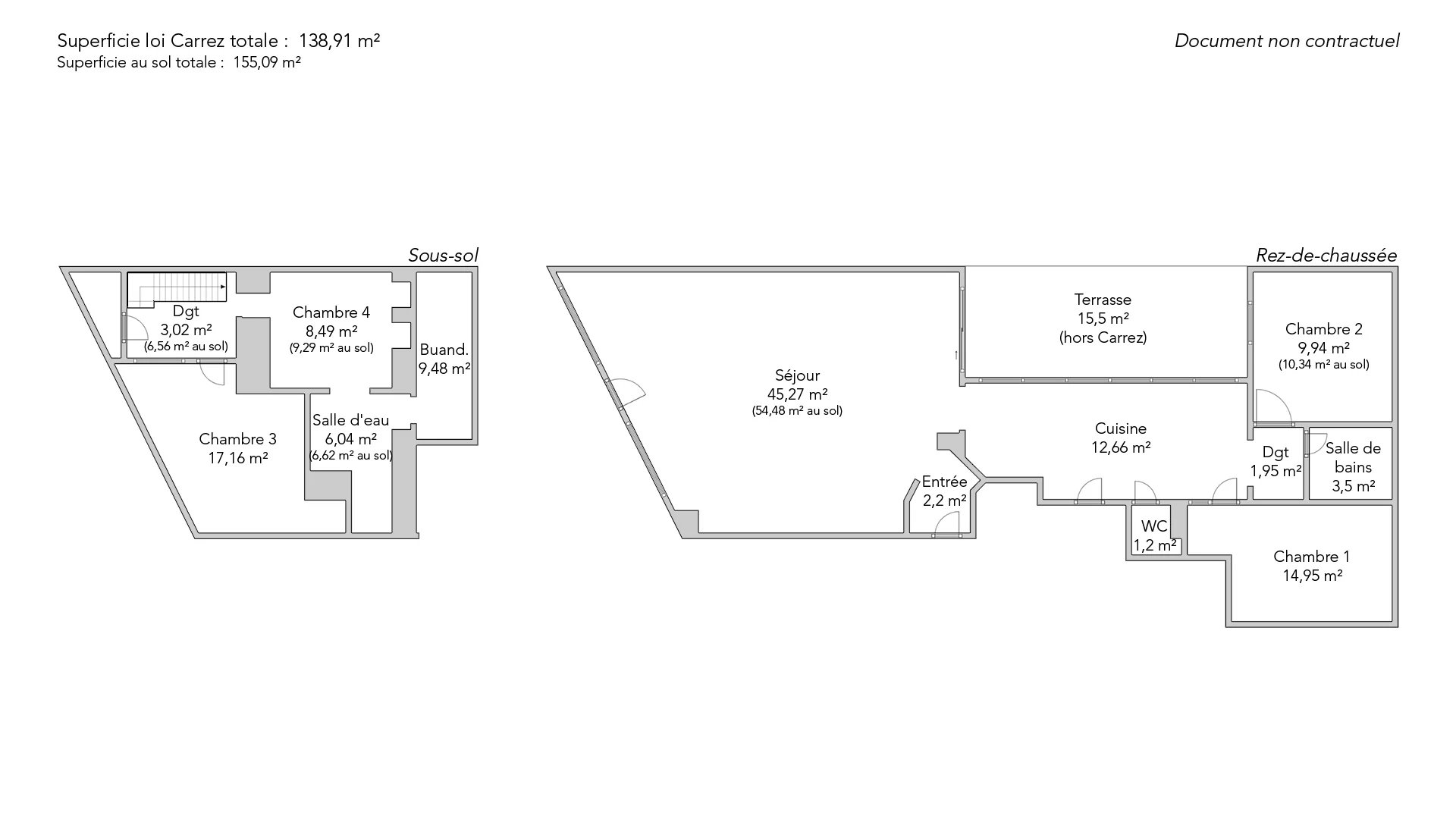
D'une surface totale de 155m² au sol et 138,91m² loi Carrez il comprend au rez-de-chaussée un très grande pièce de vie dotée de beaux volumes avec sa cuisine équipée et sa verrière le tout donnant sur une belle terrasse de 15,5m², deux chambres au calme sur cour, une salle de bains ainsi que des toilettes séparées.
Au niveau inférieur, une grande chambre avec rangements, une petite chambre (ou bureau), une salle de douche, des toilettes séparées et une buanderie.
Calme et lumineux, ce loft saura séduire par son originalité et ses beaux volumes.
- Habitable : 138,91 m² Total : 155,09 m²
- 5 pièces
- 4 chambres
- 1 salle de bains
- 1 salle de douche
- Exposition Est
- À rafraîchir
Ce qui nous séduit
- Balcon/Terrasse
- Adresse très recherchée
On vous en dit plus
Réglementations & éléments financiers
Les informations sur les risques auxquels ce bien est exposé sont disponibles sur le site Géorisques : www.georisques.gouv.fr
| Diagnostics |
|---|
Consommation énergie finale : C - 166 kWh/m²/an.
Logement à consommation énergétique excessive : classe F
Montant estimé des dépenses annuelles d’énergie pour un usage standard : entre 3 990,00 € et 5 410,00 € /an (abonnement compris).
Prix moyen des énergies indexées au 01/01/2021.
| Éléments financiers |
|---|
Taxe foncière : 1 628,00 € /an
Détails de l’intérieur & de l’extérieur
| Pièce | Surface | Détail |
|---|---|---|
| 1x Dégagement | 3.02 m² | Étage : Sous-sol |
| 1x Toilettes | 0.75 m² | Étage : Sous-sol |
| 1x Chambre | 17.16 m² | Étage : Sous-sol |
| 1x Chambre | 8.49 m² | Étage : Sous-sol |
| 1x Salle de douche | 6.04 m² | Étage : Sous-sol |
| 1x Buanderie | 9.48 m² | Étage : Sous-sol |
| 1x Séjour | 45.27 m² |
Étage : Rez-de-chaussée Exposition : Est |
| 1x Cuisine | 12.66 m² | Étage : Rez-de-chaussée |
| 1x Toilettes | 1.2 m² | Étage : Rez-de-chaussée |
| 1x Chambre | 14.95 m² | Étage : Rez-de-chaussée |
| 1x Dégagement | 1.95 m² | Étage : Rez-de-chaussée |
| 1x Salle de bains | 3.5 m² | Étage : Rez-de-chaussée |
| 1x Chambre | 9.94 m² | Étage : Rez-de-chaussée |
| 1x Mezzanine | 4.5 m² | Étage : Rez-de-chaussée |
| 1x Terrasse | 15.5 m² | Étage : Rez-de-chaussée |
Prestations
Bâtiment & Copropriété
| Bâtiment |
|---|
-
Construit en : 2000
-
Nombre d'étages : 5
| Copropriété |
|---|
Montant moyen annuel de la quote part de charges courantes : 3 348 €
Procédure en cours : Non
Rencontrez votre agence
Simulateur de financement
Calculez le montant des mensualités de votre prêt immobilier correspondant à l'emprunt que vous souhaitez effectuer.
Prix du bien HAI
1 340 000 €
€
par mois
Vous devez vendre pour acheter ?
Nos consultants immobiliers se tiennent à votre disposition pour réaliser une estimation de la valeur de votre bien. Toutes nos estimations sont offertes.
Je fais estimer mon bienUn lieu de vie à votre image
Junot vous fait visiter les quartiers dans lesquels nos agences vous accueillent, et vous présente les spécificités et bonnes adresses.
Parcourir les quartiers








