Faisons un tour d'horizon
Référence de l’annonce : OA5718JUNBEA
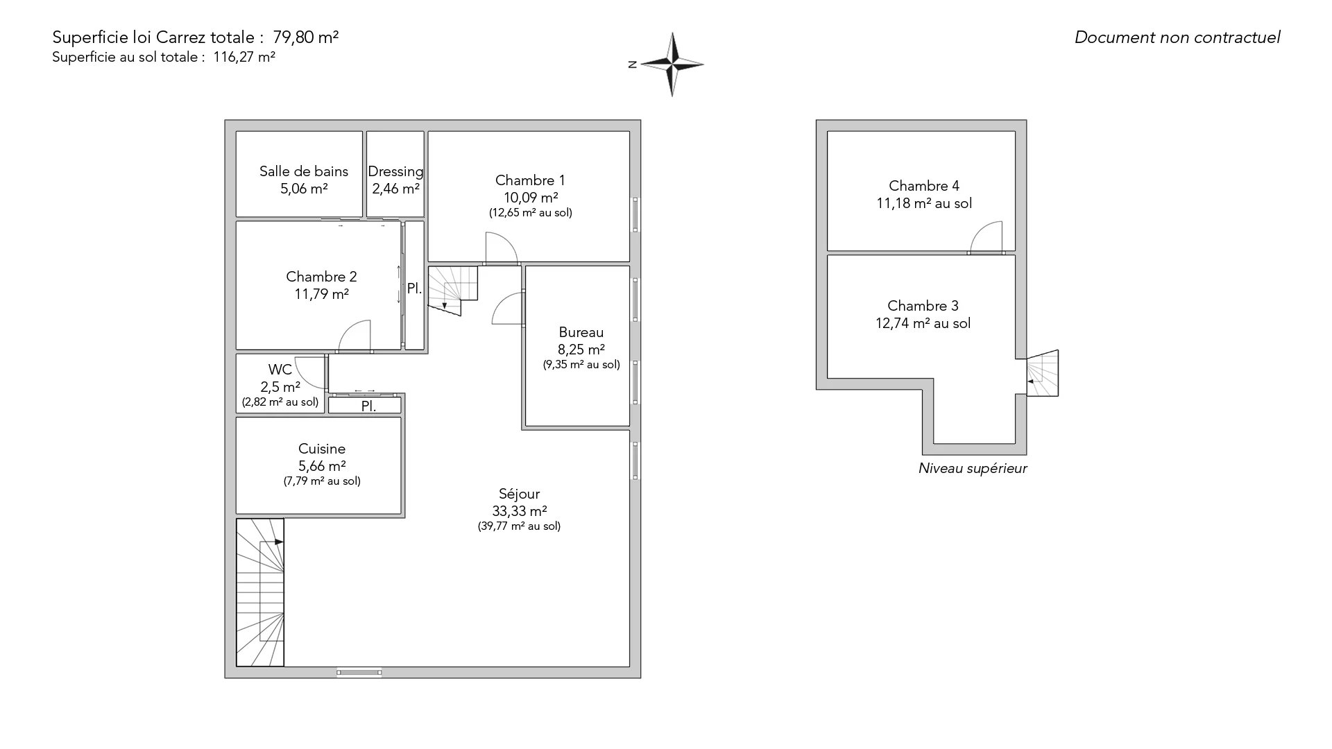
En plein cœur de Montmartre, au deuxième et dernier étage d'un bel immeuble ancien, superbe appartement traversant de 79,80m² loi Carrez et 116,27m² au sol.
L'excellent plan sans perte de place comporte, au premier niveau, un salon cathédrale traversant avec cuisine ouverte, une chambre parentale avec dressing et salle de douche, deux autres chambres, une salle de bains et des toilettes séparées.
L'étage comprend un bureau et une chambre mansardée avec rangements.
Comme une maison, cet appartement allie charme et lumière.
EXCLUSIVITÉ.
- Habitable : 116,27 m²
- 5 pièces
- 3 chambres
- 1 salle de bains
- Exposition Ouest, Sud
- Bon état
Ce qui nous séduit
- Adresse très recherchée
- Dernier étage
- Lumineux
- Calme
- Vue dégagée
On vous en dit plus
Réglementations & éléments financiers
Les informations sur les risques auxquels ce bien est exposé sont disponibles sur le site Géorisques : www.georisques.gouv.fr
| Diagnostics |
|---|
Consommation énergie finale : a - 128 kWh/m²/an.
Montant estimé des dépenses annuelles d’énergie pour un usage standard : entre 1 800,00 € et 2 470,00 € /an (abonnement compris).
Prix moyen des énergies indexées au 01/01/2021.
| Éléments financiers |
|---|
Taxe foncière : 1 271,00 € /an
Détails de l’intérieur & de l’extérieur
| Pièce | Surface | Détail |
|---|---|---|
| 1x Entrée | 0.66 m² | Étage : 2ème |
| 1x Séjour | 23.29 m² | Étage : 2ème |
| 1x Cuisine | 5.66 m² | Étage : 2ème |
| 1x Dégagement | 10.04 m² | Étage : 2ème |
| 1x Bureau | 8.25 m² | Étage : 2ème |
| 1x Chambre | 10.09 m² | Étage : 2ème |
| 1x Chambre | 11.79 m² | Étage : 2ème |
| 1x Toilettes | 2.5 m² | Étage : 2ème |
| 1x Salle de bains | 5.06 m² | Étage : 2ème |
| 1x Dressing | 2.46 m² | Étage : 2ème |
| 1x Bureau | 11.18 m² | Étage : 2ème |
| 1x Chambre | 12.74 m² | Étage : 2ème |
Prestations
Bâtiment & Copropriété
| Bâtiment |
|---|
-
Construit en : 1880
-
Type : Pierre
-
Nombre d'étages : 3
| Copropriété |
|---|
24 lots d'habitation
Montant moyen annuel de la quote part de charges courantes : 2 688 €
Procédure en cours : Non
Rencontrez votre agence
Simulateur de financement
Calculez le montant des mensualités de votre prêt immobilier correspondant à l'emprunt que vous souhaitez effectuer.
Prix du bien HAI
1 250 000 €
€
par mois
Vous devez vendre pour acheter ?
Nos consultants immobiliers se tiennent à votre disposition pour réaliser une estimation de la valeur de votre bien. Toutes nos estimations sont offertes.
Je fais estimer mon bienUn lieu de vie à votre image
Junot vous fait visiter les quartiers dans lesquels nos agences vous accueillent, et vous présente les spécificités et bonnes adresses.
Parcourir les quartiers









