Faisons un tour d'horizon
Référence de l’annonce : 5769JUNVAG / 2884MON
Saint-Augustin. Emplacement prisé à deux pas du square Louis XVI.
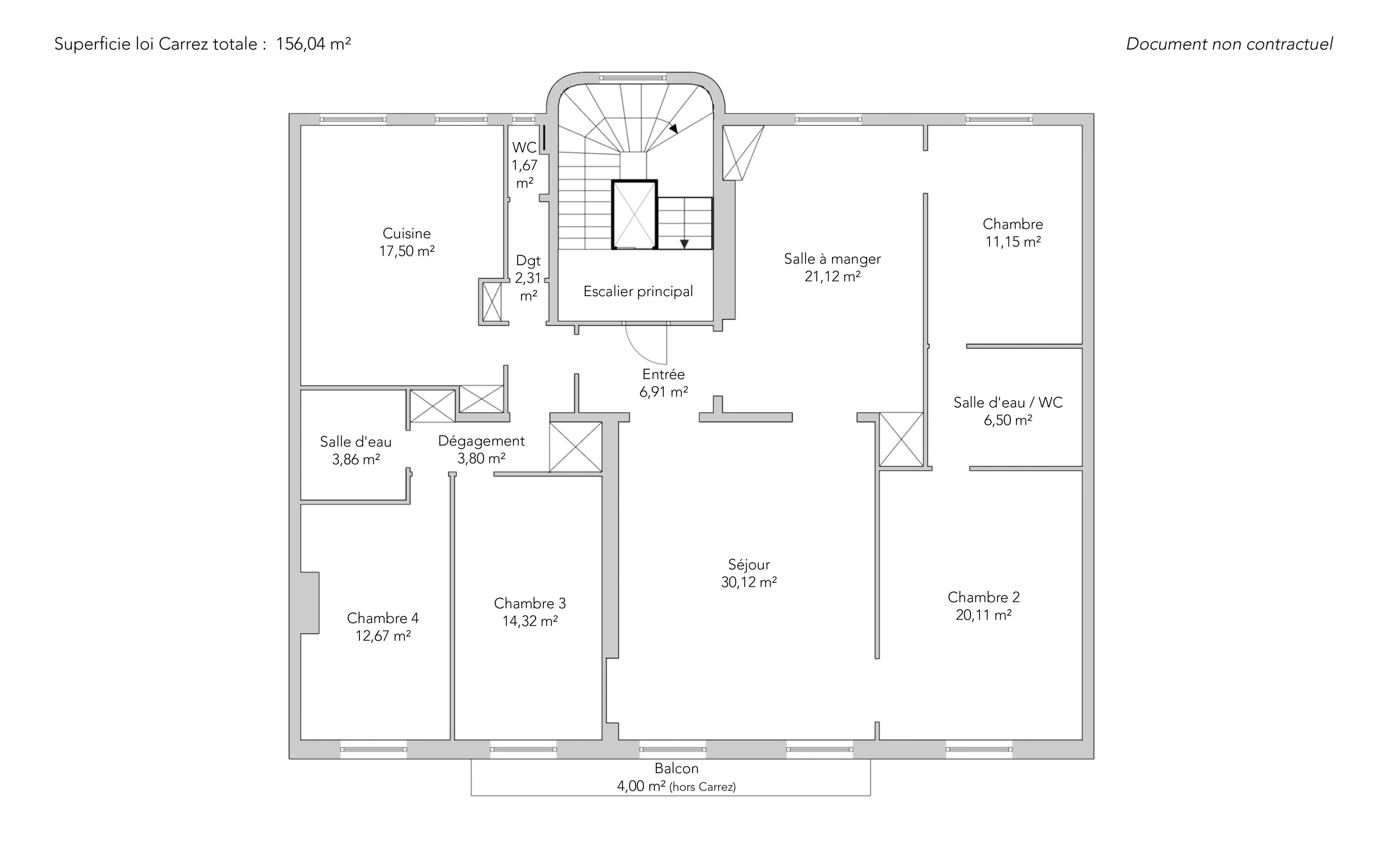
Au quatrième étage par ascenseur d’un élégant immeuble en pierre de taille, ce superbe appartement traversant de 152,04m² loi Carrez bénéficie d’un balcon filant accessible depuis le salon et plusieurs chambres.
Baigné de lumière grâce à sa double exposition nord-sud, ce bien de caractère offre des volumes généreux et un charme de l'ancien préservé: parquets, cheminées, moulures et belles hauteurs sous plafond.
Le plan parfaitement agencé comporte : une belle entrée, un vaste séjour ouvrant sur le balcon, une magnifique cuisine dinatoire entièrement équipée, une salle à manger, quatre chambres idéalement réparties, ainsi que deux salles de douche dont une avec toilettes, un vestibule avec toilettes indépendantes.
L'appartement a été rénové en 2023 incluant la cuisine, les salles de bains et l'installation électrique ainsi que les peintures.
Charme classique et rénovation contemporaine se marient harmonieusement.
Une Cave en sous-sol complète cette offre.
- Habitable : 152,04 m² Total : 156,04 m²
- 6 pièces
- 4 chambres
- 2 salles de douche
- Étage 4/6
- Cheminée
- Exposition Nord, Sud
- Excellent état
Ce qui nous séduit
- Balcon/Terrasse
- Adresse très recherchée
- Lumineux
- Calme
- Traversant
- Ascenseur
- Cave
On vous en dit plus
Réglementations & éléments financiers
Les informations sur les risques auxquels ce bien est exposé sont disponibles sur le site Géorisques : www.georisques.gouv.fr
| Diagnostics |
|---|
Consommation énergie finale : C - 129 kWh/m²/an.
Montant estimé des dépenses annuelles d’énergie pour un usage standard : entre 1 840,00 € et 2 540,00 € /an (abonnement compris).
| Éléments financiers |
|---|
Taxe foncière : 3 156,00 € /an
Détails de l’intérieur & de l’extérieur
| Pièce | Surface | Détail |
|---|---|---|
| 1x Cave | Étage : Sous-sol | |
| 1x Chambre de maître | 20.11 m² |
Étage : 4ème Exposition : Nord Revêtement : Parquet |
| 1x Vestiaire | 2.31 m² | Étage : 4ème |
| 1x Dégagement | 3.8 m² | Étage : 4ème |
| 1x Entrée | 6.91 m² |
Étage : 4ème Revêtement : Parquet |
| 1x Séjour | 30.12 m² |
Étage : 4ème Exposition : Nord Revêtement : Parquet Plafond : 2.8m |
| 1x Salle à manger | 21.12 m² |
Étage : 4ème Exposition : Sud Revêtement : Parquet |
| 1x Cuisine équipée | 17.5 m² |
Étage : 4ème Exposition : Sud Revêtement : Carreau ciment |
| 1x Salle de douche / toilettes | 6.5 m² | Étage : 4ème |
| 1x Chambre | 11.15 m² |
Étage : 4ème Exposition : Sud Revêtement : Parquet |
| 1x Chambre d'enfants | 14.32 m² |
Étage : 4ème Exposition : Nord Revêtement : Parquet |
| 1x Chambre d'enfants | 12.67 m² |
Étage : 4ème Exposition : Nord Revêtement : Parquet |
| 1x Salle de douche | 3.86 m² | Étage : 4ème |
| 1x Toilettes | 1.67 m² |
Étage : 4ème Exposition : Sud |
| 1x Balcon | 4 m² |
Étage : 4ème Exposition : Nord |
Prestations
Bâtiment & Copropriété
| Bâtiment |
|---|
-
Construit en : 1870
-
Type : Pierre de taille
-
Nombre d'étages : 6
-
Niveau de qualité : Standing
| Copropriété |
|---|
Montant moyen annuel de la quote part de charges courantes : 4 600 €
Procédure en cours : Non
Rencontrez votre agence
Simulateur de financement
Calculez le montant des mensualités de votre prêt immobilier correspondant à l'emprunt que vous souhaitez effectuer.
Prix du bien HAI
2 300 000 €
€
par mois
Vous devez vendre pour acheter ?
Nos consultants immobiliers se tiennent à votre disposition pour réaliser une estimation de la valeur de votre bien. Toutes nos estimations sont offertes.
Je fais estimer mon bienUn lieu de vie à votre image
Junot vous fait visiter les quartiers dans lesquels nos agences vous accueillent, et vous présente les spécificités et bonnes adresses.
Parcourir les quartiers












