Faisons un tour d'horizon
Référence de l’annonce : 3456BREPRI
Entre la Place Vendôme et le Jardin des Tuileries, près de la très active Place du Marché Saint-Honoré, un duplex au 5eme et 6eme étage, par ascenseur, dans un immeuble de 1782 dont la façade est inscrite à l’Inventaire des Monuments Historiques, construit rue Saint-Honoré par Denis Antoine, fameux architecte du XVIIIème.
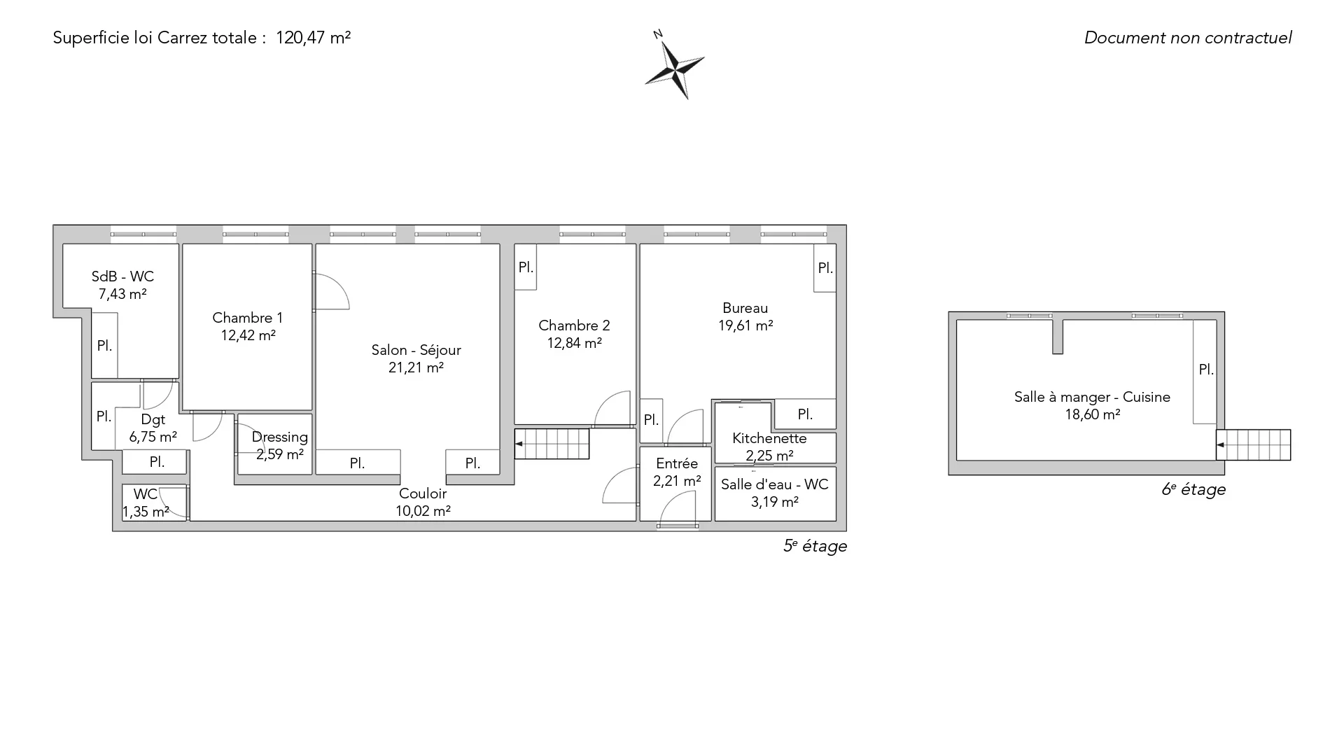
L’appartement, de 128,25m2 et 120,47m2 loi Carrez très clair, grâce aux 7 fenêtres sur rue du 5ème étage et 3 fenêtres au 6ème et au dégagement sur les toits, comporte :
Au 5ème étage : une entrée, un salon, deux chambres, deux dressings doublés de bois, une grande salle de bain, des toilettes invités, un bureau/bibliothèque aménagé en studio avec kitchenette équipée, salle de douche et WC. Nombreux rangements et prises électriques dans chaque pièce.
Au 6ème étage, accès par un escalier intérieur : une cuisine complètement équipée, y compris avec machine à laver le linge et séchoir et un espace salle à manger avec comme table, un grand plateau de granit fixe ; grès cérame au sol sur tout le 6ème. Nombreux rangements.
En annexe : 2 caves dont l’intérieur de l’une est protégé de l’humidité.
De plus, non inclus : possibilité de parking : Place Vendôme, Place du Marché Saint-Honoré ou dans un immeuble tout près sur le même trottoir que l’appartement.
Un appartement dans un quartier chargé d’histoire, central (métro Tuileries ligne no.1) calme et confortable dans un bel immeuble, idéal comme pied à terre, pour de courts ou longs séjours parisiens.
- Habitable : 120,47 m² Total : 128,25 m²
- 5 pièces
- 3 chambres
- 1 salle de bains
- 1 salle de douche
- Étage 5/7
- Exposition Nord-est
- Excellent état
Ce qui nous séduit
- Dernier étage
- Gardien
- Calme
- Ascenseur
- Cave
On vous en dit plus
Réglementations & éléments financiers
Les informations sur les risques auxquels ce bien est exposé sont disponibles sur le site Géorisques : www.georisques.gouv.fr
| Diagnostics |
|---|
Consommation énergie finale : a - 115 kWh/m²/an.
Montant estimé des dépenses annuelles d’énergie pour un usage standard : entre 2 440,00 € et 3 310,00 € /an (abonnement compris).
Prix moyen des énergies indexées au 01/01/2021.
| Éléments financiers |
|---|
Détails de l’intérieur & de l’extérieur
| Pièce | Surface | Détail |
|---|---|---|
| 1x Cave | 10.18 m² | Étage : Sous-sol |
| 1x Cave | 4.89 m² | Étage : Sous-sol |
| 1x Entrée | 2.21 m² |
Étage : 5ème Revêtement : Carrelage |
| 1x Chambre | 19.61 m² |
Étage : 5ème Revêtement : Moquette |
| 1x Kitchenette | 2.25 m² |
Étage : 5ème Revêtement : Carrelage |
| 1x Salle de douche / toilettes | 3.19 m² |
Étage : 5ème Revêtement : Carrelage |
| 1x Couloir | 10.02 m² |
Étage : 5ème Revêtement : Moquette |
| 1x Toilettes | 1.35 m² |
Étage : 5ème Revêtement : Carrelage |
| 1x Dégagement | 6.75 m² |
Étage : 5ème Revêtement : Moquette |
| 1x Dressing | 2.59 m² |
Étage : 5ème Revêtement : Moquette |
| 1x Salle de bains / toilettes | 7.43 m² |
Étage : 5ème Revêtement : Carrelage |
| 1x Chambre | 12.42 m² |
Étage : 5ème Revêtement : Moquette |
| 1x Séjour | 21.21 m² |
Étage : 5ème Revêtement : Moquette |
| 1x Chambre | 12.84 m² |
Étage : 5ème Revêtement : Moquette |
| 1x Séjour/cuisine | 18.6 m² |
Étage : 6ème Revêtement : Carrelage |
Prestations
Bâtiment & Copropriété
| Bâtiment |
|---|
-
Construit en : 1782
-
Nombre d'étages : 7
| Copropriété |
|---|
57 lots d'habitation
Montant moyen annuel de la quote part de charges courantes : 4 876 €
Procédure en cours : Non
Rencontrez votre agence
Simulateur de financement
Calculez le montant des mensualités de votre prêt immobilier correspondant à l'emprunt que vous souhaitez effectuer.
Prix du bien HAI
2 650 000 €
€
par mois
Vous devez vendre pour acheter ?
Nos consultants immobiliers se tiennent à votre disposition pour réaliser une estimation de la valeur de votre bien. Toutes nos estimations sont offertes.
Je fais estimer mon bienUn lieu de vie à votre image
Junot vous fait visiter les quartiers dans lesquels nos agences vous accueillent, et vous présente les spécificités et bonnes adresses.
Parcourir les quartiers












