Faisons un tour d'horizon
Référence de l’annonce : 2227PASTHI
Au calme et à proximité immédiate des commerces de la rue de Passy.
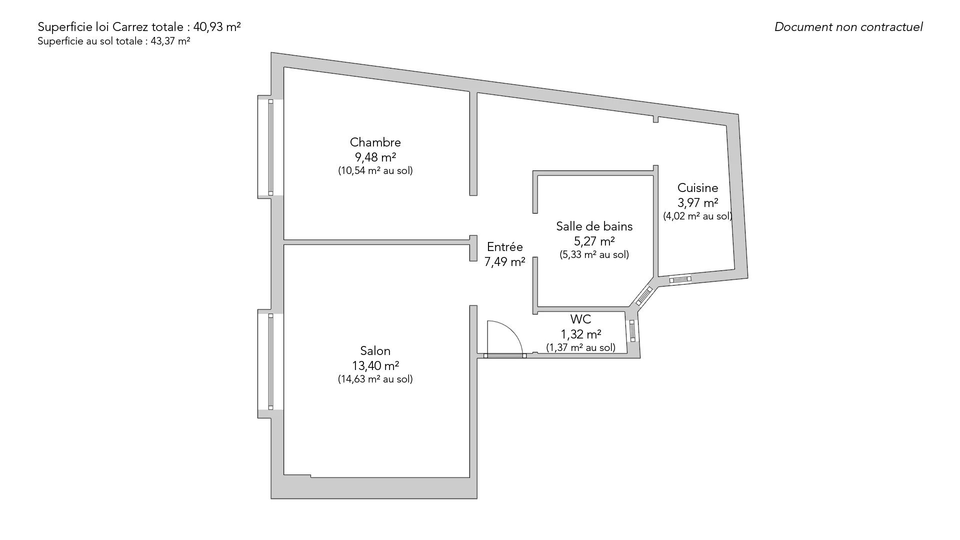
Au cinquième et dernier étage par ascenseur, ce charmant appartement d'une superficie de 40,93m² loi Carrez avec parquet et cheminée est un format particulièrement recherché.
Son plan en étoile comporte une entrée, un séjour lumineux, une chambre, une cuisine séparée, une salle de bains et un cabinet de toilettes.
Fenêtres double vitrage.
Sectorisation Janson de Sailly.
Une cave complète cette offre.
EXCLUSIVITÉ
- Habitable : 40,93 m² Total : 43,47 m²
- 2 pièces
- 1 chambre
- 1 salle de bains
- Étage 5/5
- Cheminée
- Exposition Ouest
- À rafraîchir
Ce qui nous séduit
- Adresse très recherchée
- Dernier étage
- Lumineux
- Calme
- Traversant
- Ascenseur
- Cave
- Vue dégagée
On vous en dit plus
Réglementations & éléments financiers
Les informations sur les risques auxquels ce bien est exposé sont disponibles sur le site Géorisques : www.georisques.gouv.fr
| Diagnostics |
|---|
Consommation énergie finale : D - 185 kWh/m²/an.
Logement à consommation énergétique excessive : classe F
Montant estimé des dépenses annuelles d’énergie pour un usage standard : entre 1 260,00 € et 1 740,00 € /an (abonnement compris).
Prix moyen des énergies indexées au 01/01/2021.
| Éléments financiers |
|---|
Détails de l’intérieur & de l’extérieur
| Pièce | Surface | Détail |
|---|---|---|
| 1x Cave | ||
| 1x Salon | 13.4 m² | Étage : 5ème |
| 1x Cuisine | 3.97 m² | Étage : 5ème |
| 1x Chambre | 9.48 m² | Étage : 5ème |
| 1x Salle de bains | 5.27 m² | Étage : 5ème |
| 1x Toilettes | 1.32 m² | Étage : 5ème |
| 1x Dégagement | 7.49 m² | Étage : 5ème |
Prestations
Bâtiment & Copropriété
| Bâtiment |
|---|
-
Construit en : 1870
-
Nombre d'étages : 5
-
Niveau de qualité : Normal
| Copropriété |
|---|
Procédure en cours : Non
Rencontrez votre agence
Simulateur de financement
Calculez le montant des mensualités de votre prêt immobilier correspondant à l'emprunt que vous souhaitez effectuer.
Prix du bien HAI
575 000 €
€
par mois
Vous devez vendre pour acheter ?
Nos consultants immobiliers se tiennent à votre disposition pour réaliser une estimation de la valeur de votre bien. Toutes nos estimations sont offertes.
Je fais estimer mon bienUn lieu de vie à votre image
Junot vous fait visiter les quartiers dans lesquels nos agences vous accueillent, et vous présente les spécificités et bonnes adresses.
Parcourir les quartiers













